

作品包括:
word说明书一份,共53页,约18000字
任务书一份
开题报告一份
外文翻译一套
UG三维版本图纸,一套
摘 要
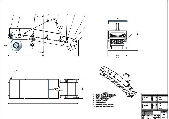
随着公路建设的突飞猛进,大规模的机械养护时代就随之到来了。公路铣刨机是路面养护和再生设备的机种之一,现在正越来越引起道路养护专家,施工单位的关注。
铣刨机现在被广泛应用于公路,城市道路的养护,公路铣刨机是一种高效的沥青或混凝土路面维修养护机械。铣刨机的原理是利用滚动铣削的方法把路面局部全部破坏。为了减轻疲铣刨机的劳强度,机器设有回收装置,是铣削的物料直接输送到运载卡车上。皮带传动机构作为铣刨机最总要的一部分,它的主要作用是将铣刨的碎料传递出去,其结构的设计直接影响着铣刨机的性能。
为了提高铣刨机的使用性能和工作可靠性,保证铣刨机具有较高的生产率和作业质量,使铣刨机具备良好的经济效益,推动铣刨机性能的全面提升。本文对4.3米铣刨机的输送机构进行了分析研究与设计。
本说明书与图纸配套使用。
关键词:铣刨机; 输料装置; 沥青
目 录
摘 要 III
ABSTRACT IV
1 绪论 1
1.1 路面铣刨机及其发展概况 1
1.1.1 路面铣刨机的分类 1
1.1.2 路面铣刨机的应用特点 2
1.1.3 路面铣刨机的主要结构及工作原理 3
1.1.4 国内外路面铣刨机发展概况 3
1.2 路面铣刨机设计的指导思想 4
1.3 路面铣刨机设计的设计原则 4
2 沥青输送装置的总体设计 4
2.1 输送机构的功能 4
2.2 输送机构总体设计的设计标准 4
2.3 输送机构的工作原理 4
2.4 输送机构总体设计主要需完成一下几项工作 4
3 输送机构的组成及功能分析 4
3.1 输料系统的主要功能部件 4
3.1.1 输送带 4
3.1.2 支撑托辊 4
3.1.3 张紧装置 4
3.1.4 驱动装置 4
3.1.5 集料系统的设计 4
3.1.6 改向装置 4
3.1.7 装料装置 4
3.1.8 卸料装置 4
3.1.9 清扫装置 4
3.1.10 防跑偏装置 4
3.1.11 机架结构 4
3.1.12 工字钢钢架的皮带传动机构有限元结果 4
3.2 带式输送机的设计流程 4
3.2.1 原始数据及工作条件的确定 4
3.2.2 带式输送机的设计计算 4
3.2.3 部件选型 4
3.2.4 撰写工程数据表 4
4 带式输送机的设计计算理论和方法 4
4.1 带式输送机的基本功能参数 4
4.1.1 输送带最大的物料横截面积 4
4.1.2 最大输送能力Q(t/h)的计算 4
4.1.3 输送带宽度校核 4
4.2 圆周驱动力与驱动圆周驱动力计算 4
4.2.1 主要阻力 4
4.2.2 C的取值 4
4.2.3 主要特种阻力 4
4.2.4 倾斜阻力 4
4.3 驱动功率的计算 4
4.4 输送带张力 4
4.4.1 带式输送机的布置形式 4
4.4.2 输送带张紧力计算的一般流程 4
5 输送机构的选型方法与分析 4
5.1 托辊的选型 4
5.1.1 托辊的选型方法 4
5.2 输送带的选型计算 4
5.3 滚筒的选型 4
5.4 拉紧装置的选型 4
5.5 支架类装置的选型 4
6 结论与展望 4
6.1结论 4
6.2不足之处及未来展望 4
致谢 4
参考文献 4
附录 主要符号及意义 4
温馨提示:
1、题目前面的备注【字母数字编号】为本站整理分类的编号,与课题内容无关,请选题时忽视;
2、若题目上备注三维,则表示文件里包含三维源文件,由于三维组成零件数量较多,为保证预览截图的简洁性,本站将三维文件夹进行了打包。三维及CAD预览截图,均为本站电脑打开软件进行截图的,保证能够打开,下载原件超高清,下载后解压即可;
3、本站所有资源如无特殊说明,都需要本地电脑安装Office2007。图纸软件为AutoCAD,PROE,UG,SolidWorks,CATIA等;
4、本站所有图文资料仅供用户学习参考,不作为任何商用或其他用途;
5、本站不保证下载资源的准确性、安全性和完整性, 不包修改,不支持退换,同时也不承担用户因使用这些下载资源对自己和他人造成任何形式的伤害或损失;
6、 下载文件中如有侵权或不适当内容,请与我们联系,我们立即纠正。