

作品包括:
Word版说明书1份,共40页,约15000字
CAD版本图纸,共13张
UG三维图一份
摘要
玉米脱粒机是当今应用于对玉米穗进行脱粒再将玉米粒和玉米芯分离的主要设备之一。玉米脱粒机在保证生产质量的同时极大的提高了生产效率。如今玉米脱粒机已成为了农村必不可少的农用机械。本次设计以旧式脱粒机为基础通过对其入料部分,脱粒部分,筛选部分以及机架部分的结构优化来提升玉米脱粒机的结构稳定性以及其纯净率,工作效率等各项性能。
本次设计采用齿钉式脱粒,该设备主要由入料口、钉齿滚筒、栅格式凹板、轴流风机、出粒斜板以及出料口等部件组成。该设备在电力驱动下玉米穗通过入料口进入机体内部并平稳掉落到栅格式凹板上,主轴带动钉齿滚筒做高速回转运动,滚筒上的钉齿配合栅格式凹板通过两者对玉米的高频率的挤压与碰撞以实现玉米的脱粒过程。其中玉米粒从栅格式凹板间的缝隙滑落并经由轴流风机去除其中的杂质,最后经由出料口排出得到纯净度较高的玉米粒,而玉米芯在滚筒的螺旋推力作用下从出料口排出机体之外。此次设计将在不影响设备工作效率的前提下降低种子破碎率并进一步提升产品的纯净率。
关键词:玉米;脱粒机;结构;纯净率;
目录
第一章 绪论--------------------------------------------(1)
1.1 选题的目的与意义-----------------------------------------------(1)
1.2 国内外研究现状及存在的问题 ------------------------------------(1)
1.2.1 国外研究现状分析 -----------------------------------------(1)
1.2.2 国内研究现状分析 -----------------------------------------(2)
1.2.3研究目前存在的问题 ---------------------------------------(2)
1.3 本课题研究内容 ------------------------------------------------(3)
第二章 玉米脱粒机总体结构 -------------------------------(3)
2.1 入料部分-------------------------------------------------------(4)
2.2 脱粒部分-------------------------------------------------------(4)
2.3 筛选部分-------------------------------------------------------(4)
2.4 机架部分-------------------------------------------------------(4)
2.5 总体设计方案---------------------------------------------------(5)
第三章 玉米脱粒机的初步设计 ----------------------------(5)
3.1 电动机的选择 ------------------------------------------------(5)
3.2 钉齿条的钉齿转速-----------------------------------------------(5)
3.3 玉米脱粒机的功率-----------------------------------------------(6)
3.4 电动机的功率 ------------------------------------------------(6)
3.5 电动机的转速 ------------------------------------------------(6)
第四章 V带与带轮的设计-----------------------------------(7)
4.1 V带的设计-----------------------------------------------------(7)
4.1.1 确定计算功率-----------------------------------------------(7)
4.1.2 确定V带型号-----------------------------------------------(8)
4.1.3确定带轮的基准直径 -----------------------------------------(8)
4.1.4 确定中心距和带长 ------------------------------------------(8)
4.1.5 验算主动轮上的包角 --------------------------------------(9)
4.1.6 确定V带的根数---------------------------------------------(9)
4.1.7 确定带的初拉力---------------------------------------------(10)
4.1.8 确定V带作用在轴上的压力-----------------------------------(10)
第五章 V带带轮的设计 ---------------------------------(10)
5.1 带轮的材料选择------------------------------------------------(10)
5.2 主动轮的设计--------------------------------------------------(10)
5.3 从动轮的设计--------------------------------------------------(12)
第六章 主轴的设计---------------------------------------(12)
6.1确定轴的各段直径和长度 ----------------------------------------(13)
6.2 初步选择输出轴系----------------------------------------------(13)
6.3 确定轴的倒角--------------------------------------------------(14)
6.4 对轴的工作强度校核 --------------------------------------------(14)
6.4.1 作轴的整体受力简图 --------------------------------------(14)
6.4.2 计算轴的受力----------------------------------------------(14)
6.4.3 计算钉齿条的受力------------------------------------------(14)
6.4.4 计算轴在水平面内的支撑反力 -------------------------------(15)
6.4.5 计算轴在垂直面内的支撑反力--------------------------------(15)
6.4.6 作轴弯矩图-------------------------------------------------(15)
6.4.7 作轴转矩图-------------------------------------------------(16)
6.4.8 作当量弯矩图(弯矩、扭矩合成图)--------------------------(16)
6.5 校核轴的强度 ------------------------------------------------(17)
第七章 钉齿条的设计 ---------------------------------(18)
7.1 钉齿条的设计--------------------------------------------------(18)
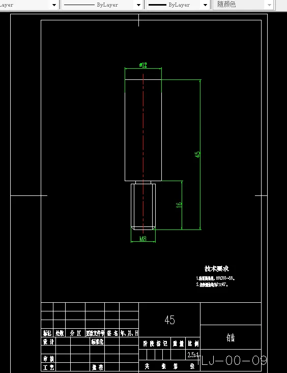
7.2 钉齿的设计----------------------------------------------------(19)
7.3 圆盘的设计----------------------------------------------------(20)
第八章 栅格式凹板的设计 ----------------------------(21)
第九章 入料口和脱粒机上盖的设计 --------------------(22)
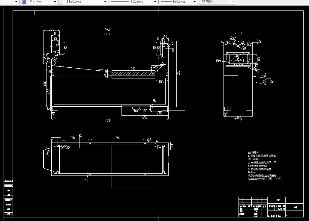
第十章 机架和出料口的设计 -----------------------------(24)
第十一章 轴承座的设计 -------------------------------(26)
第十二章 玉米脱粒机上的标准件的选择 -----------------(27)
12.1螺栓及螺母的选择 -------------------------------------------(27)
12.2钩头楔键的选择 -----------------------------------------------(27)
12.3 联轴器的选择-------------------------------------------------(27)
12.4 轴流风机的选择------------------------------------------------(28)
结论 ------------------------------------------------(29)
致谢 ------------------------------------------------(30)
参考文献 ---------------------------------------------(31)
温馨提示:
1、题目前面的备注【字母数字编号】为本站整理分类的编号,与课题内容无关,请选题时忽视;
2、若题目上备注三维,则表示文件里包含三维源文件,由于三维组成零件数量较多,为保证预览截图的简洁性,本站将三维文件夹进行了打包。三维及CAD预览截图,均为本站电脑打开软件进行截图的,保证能够打开,下载原件超高清,下载后解压即可;
3、本站所有资源如无特殊说明,都需要本地电脑安装Office2007。图纸软件为AutoCAD,PROE,UG,SolidWorks,CATIA等;
4、本站所有图文资料仅供用户学习参考,不作为任何商用或其他用途;
5、本站不保证下载资源的准确性、安全性和完整性, 不包修改,不支持退换,同时也不承担用户因使用这些下载资源对自己和他人造成任何形式的伤害或损失;
6、 下载文件中如有侵权或不适当内容,请与我们联系,我们立即纠正。