

作品包括:
说明书1份,共35页,约9000字左右
CAD版本本图纸,共5张
摘要
老式带式输送机在生产过程中工作效率下降,已然不能满足生产需求,在输送过程中无法发挥其定量称重作用,它有一定的局限只能在较小的载重量和距离不太长的场合中应用。为了进一步改善这些问题,称重技术对环境的适应性有所优化。带宽选用较宽带型可以提高一定的效率,在称重部分主要采用的是PLC电气控制,用电动机和减速器配合来实现驱动,还需要磁弹性传感器来做到定量称重。对称重设计进行优化不仅体现在传统带式输送机上,也用在了皮带支撑上,使结构更加平整,安全性能更高。
关键词 称重作用;带式输送机;传感器;PLC技术分析;载重量
目 录
摘要 I
Abstract II
1 绪论 1
1.1定量装载设备的研究背景 1
1.2装载设备定量称重的原理分析 1
1.3带式输送机 3
1.3.1工作原理及特点分类 3
1.3.2皮带式输送机的运用前景 4
1.3.3胶式皮带机的主要构成结构分析与介绍 4
1.4带输送机的可持续称重 5
1.4.1主要的工作运行原理 5
1.4.2称重的精准准则 5
2胶带式输送机的定量称重系统总体设计 7
2.1胶带式输送机的运行原理及选型方案 7
2.2核心参数和零部件的选择 7
2.3皮带输送机机头的结构 8
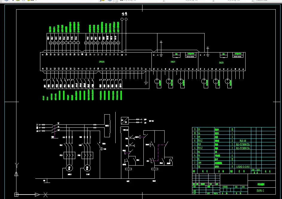
2.4控制系统的硬件构成及其原理 8
3胶带式输送机传动部分方案设计 10
3.1 胶带输送机的设计 10
3.2 电动机的选择 12
3.3 减速器的选择 14
3.4 联轴器的选取 15
3.5 离合器的选型 16
4 称重部分设计 18
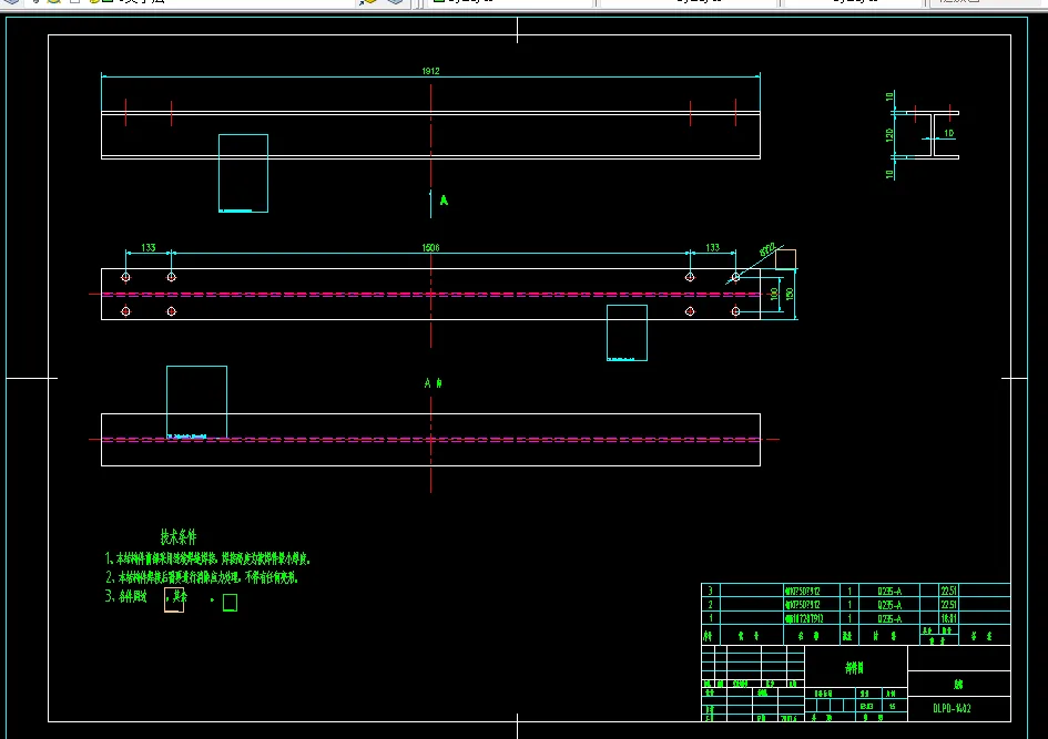
4.1底梁设计 18
4.2称重传感器的选用 20
4.3定量称重控制系统设计 21
4.3.1选型设计 21
4.3.2控制系统硬件的选择 22
4.3.3选择输入信号和输出信号 24
4.3.4定量称重流程图 27
4.3.5控制系统的标定 30
结论 31
致谢 32
参考文献 33
附录 34
温馨提示:
1、题目前面的备注【字母数字编号】为本站整理分类的编号,与课题内容无关,请选题时忽视;
2、若题目上备注三维,则表示文件里包含三维源文件,由于三维组成零件数量较多,为保证预览截图的简洁性,本站将三维文件夹进行了打包。三维及CAD预览截图,均为本站电脑打开软件进行截图的,保证能够打开,下载原件超高清,下载后解压即可;
3、本站所有资源如无特殊说明,都需要本地电脑安装Office2007。图纸软件为AutoCAD,PROE,UG,SolidWorks,CATIA等;
4、本站所有图文资料仅供用户学习参考,不作为任何商用或其他用途;
5、本站不保证下载资源的准确性、安全性和完整性, 不包修改,不支持退换,同时也不承担用户因使用这些下载资源对自己和他人造成任何形式的伤害或损失;
6、 下载文件中如有侵权或不适当内容,请与我们联系,我们立即纠正。