

作品包括:
Word版说明书1份,共85页,约9300字
CAD版本图纸,共4张
S7-200 PLC程序一份
Wincc组态画面一份
IO分配

摘 要
本课题是基于PLC的锅炉燃烧自动控制系统的设计,采用SIEMENS的S7-200系列PLC为下位机,和Wincc组态软件作为上位机监控,并采用各种传感器(主要为压力传感器、温度传感器、液位传感器、负压传感器,点火检测等),MM430变频器等,锅炉燃烧的炉排自动控制,引风自动控制,鼓风自动控制,点火自动控制,供煤自动控制,供水自动控制等。系统具有可靠性高,使用维护简单,容易操作等特点,到达了预期的设计目标
关键词:PLC、锅炉燃烧、自动控制。
目录
摘 要 1
Abstract 2
1 绪 论 3
2 总体设计 4
3 硬件设计 5
3.1 PLC选择 5
3.2主电路图 5
3.3电源分配图 7
3.4控制电路图 8
3.5地址分配 10
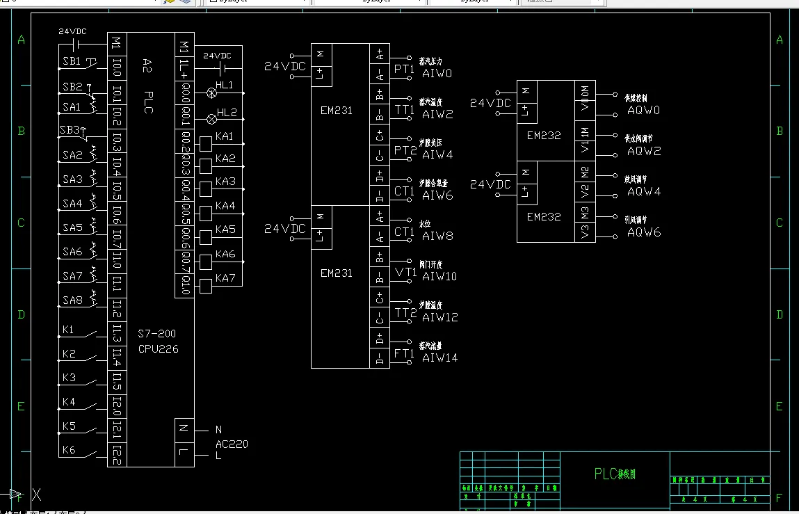
3.7 PLC输入和输出接线图 11
4 软件设计 15
4.1内部使用地址 15
4.2 程序流程图 17
4.3 程序结构 19
4.4 梯形图程序 20
4.5 语句表程序 54
5 Wincc组态 74
5.1 新建项目 74
5.2 建立PC Access OPC 74
5.3 Wincc中变量定义 75
5.4 组态画面 77
总结 79
致谢 80
参考文献 81
温馨提示:
1、题目前面的备注【字母数字编号】为本站整理分类的编号,与课题内容无关,请选题时忽视;
2、若题目上备注三维,则表示文件里包含三维源文件,由于三维组成零件数量较多,为保证预览截图的简洁性,本站将三维文件夹进行了打包。三维及CAD预览截图,均为本站电脑打开软件进行截图的,保证能够打开,下载原件超高清,下载后解压即可;
3、本站所有资源如无特殊说明,都需要本地电脑安装Office2007。图纸软件为AutoCAD,PROE,UG,SolidWorks,CATIA等;
4、本站所有图文资料仅供用户学习参考,不作为任何商用或其他用途;
5、本站不保证下载资源的准确性、安全性和完整性, 不包修改,不支持退换,同时也不承担用户因使用这些下载资源对自己和他人造成任何形式的伤害或损失;
6、 下载文件中如有侵权或不适当内容,请与我们联系,我们立即纠正。