

作品包括:
Word版说明书1份,共39页,约11000字
任务书一份
开题报告一份
PPT答辩一份
文献综述一份
外文翻译一份
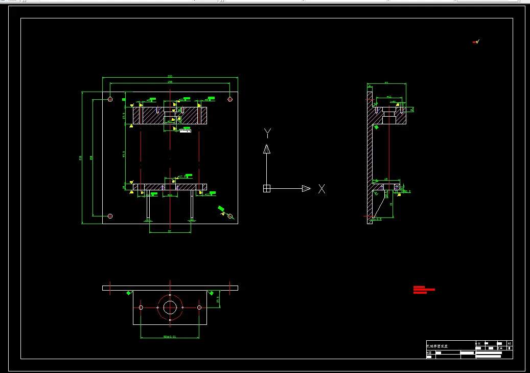
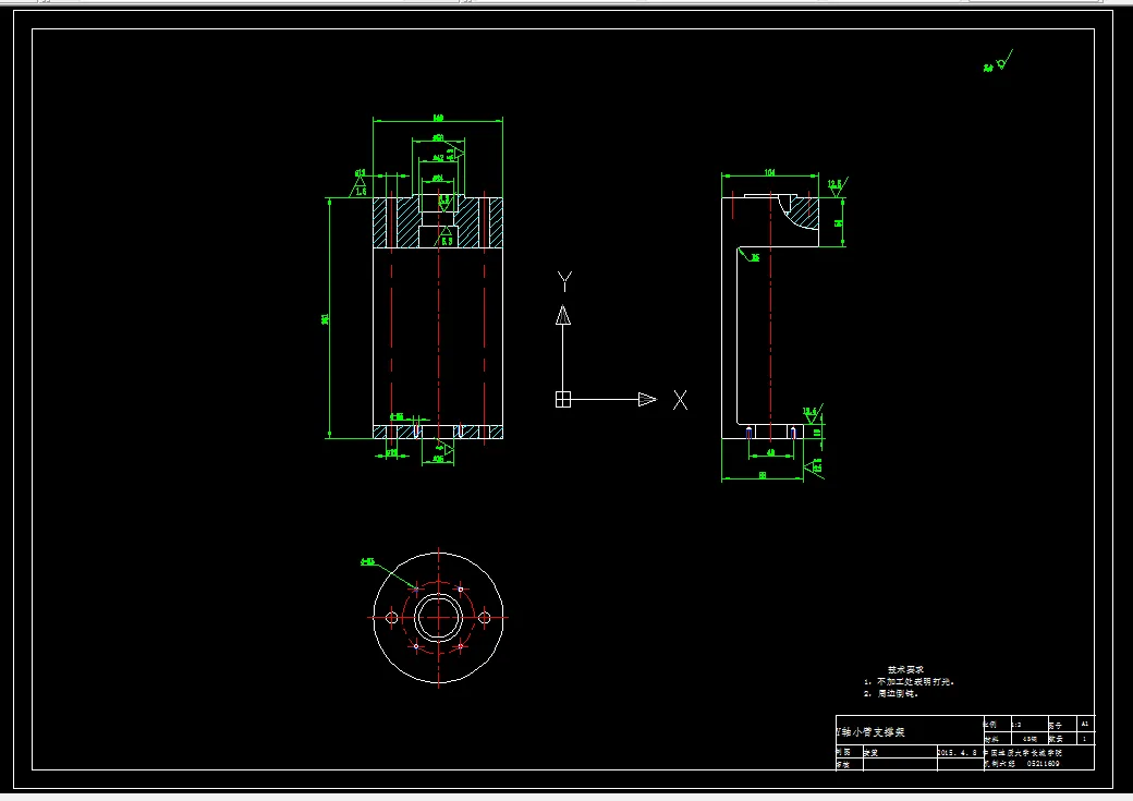
CAD版本图纸,共6张
摘 要
在工业上,自动控制系统有着广泛的应用,如工业自动化机床控制、计算机系统、机器人等。
工业机械手能模仿人手臂和手的某些动作,能搬运,抓取物体或操作工具,机械手主要是由手部和运动机构所组成。按照物件尺寸、形状、材料、重量和作业环境等要求不同,手部有几种结构形式,托持型,吸附型和夹持型等。运动机构的功能是使手部完成各种动作:移动、转动等运动来实现规定的动作。机构的伸缩、升降和旋转等运动方式,称为机械手的自由度。本设计选用直角坐标型机械手,有三个自由度,是通过滚珠丝杠来实现小臂与大臂的伸缩,升降。这些动作主要是通过步进电机的带动,通过控制器的控制,将工件从一个坐标抓取并运送到另一坐标完成预定动作。
本论文主要对机械手的传动部分中的滚珠丝杠与步进电机进行了计算,计算内容主要包括机械手的传动机构的设计,以及其机械传动装置的选择。对于控制部分的设计主要包括单片机的控制的方案,接线的原理图以及程序流程图等。
关键词:三自由度; 直角坐标; 机械手; 滚珠丝杠; 进步电机
目 录
1绪论 1
1.1机械手的概述 1
1.2 设计背景与应用意义 1
2 直角坐标机械手的总体设计 2
2.1 直角坐标机械手的组成及各部分关系概述 2
2.2 直角坐标机械手的设计分析 3
2.2.1 设计要求 3
2.2.2 总体方案拟定 3
2.2.3 直角坐标系机械手主要技术性能参数 4
2.3 控制系统的设计分析 4
3 直角坐标系机械手的机械系统设计 5
3.1 直角坐标系机械手的运动系统分析 6
3.2机械手的执行机构设计 6
3.2.1 末端执行机构设计 6
3.2.2气缸的确定 8
3.2.3 手臂机构的设计 11
3.2.4 轴承的选取 15
3.3 直角坐标机械手的机械传动装置的选择 16
3.3.1联轴器的选择 16
3.3.2 滚珠丝杠的选择 16
4 机械手的单片机控制系统设计 17
4.1 机械手单片机控制方案 17
4.1.1 控制系统的工作原理及控制要求 17
4.1.2 机械手的工作流程 18
4.1.3 驱动器的选择 20
4.2 机械手单片机接线原理图的设计 21
4.2.1 电源电路 21
4.2.2 复位电路 22
4.2.3 接线原理电路 22
4.3 机械手单片机程序流程图的设计 23
5结论 33
致 谢 34
参考文献 35
温馨提示:
1、题目前面的备注【字母数字编号】为本站整理分类的编号,与课题内容无关,请选题时忽视;
2、若题目上备注三维,则表示文件里包含三维源文件,由于三维组成零件数量较多,为保证预览截图的简洁性,本站将三维文件夹进行了打包。三维及CAD预览截图,均为本站电脑打开软件进行截图的,保证能够打开,下载原件超高清,下载后解压即可;
3、本站所有资源如无特殊说明,都需要本地电脑安装Office2007。图纸软件为AutoCAD,PROE,UG,SolidWorks,CATIA等;
4、本站所有图文资料仅供用户学习参考,不作为任何商用或其他用途;
5、本站不保证下载资源的准确性、安全性和完整性, 不包修改,不支持退换,同时也不承担用户因使用这些下载资源对自己和他人造成任何形式的伤害或损失;
6、 下载文件中如有侵权或不适当内容,请与我们联系,我们立即纠正。