

作品包括:
Word版说明书1份,共34页,约11000字
CAD版本图纸,共6张
SW三维图一份
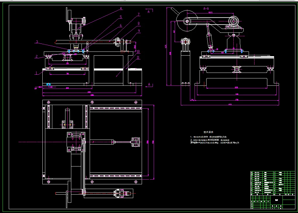
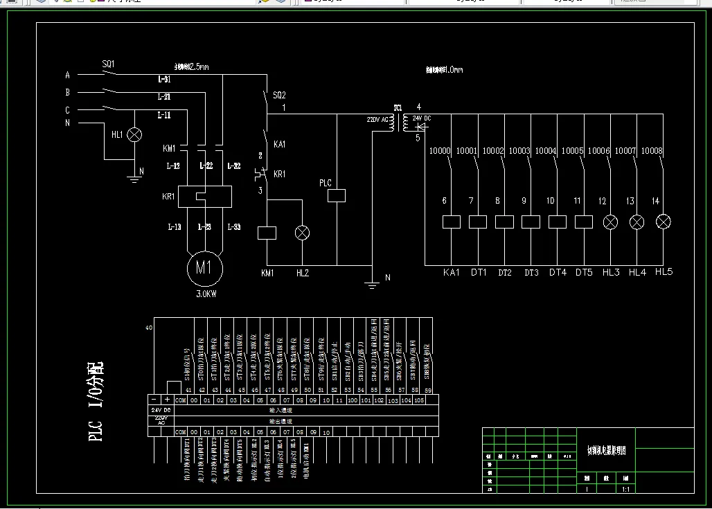
摘要:通过对切割过程观察和研究,本课题采用机电一体化系统设计思想对整体造型、机械结构、控制系统进行设计,此棒料切割机电一体化系统主要由四个部分组成:机械本体、电子控制单元、执行器和动力源。工作原理是电动机通过带传动带动切割片做高速旋转运动,电机与工作台之间采用铰支撑方式,升降液压缸可推动切割片进行上下移动带动刀片完成顺序切割动作。切割机采用PLC控制各个液压换向阀的电磁铁,实现棒料的自动下料和切割以及检测工作。随动工作台前进速度也可以通过夹紧机械手夹紧棒料使之与棒料速度同步。横向切割时的切割速度可以通过液压缸来调节。现场运行情况表明,此切割机具有动作快、运动平稳以及与计算机联机方便等优点,能够降低工人的劳动强度,实现自动控制,提高劳动生产率。
关键词:定长切割机;机电一体化;液压;棒料;PLC控制
目 录
定长棒料切割机的设计 1
第一章 概述 2
1.1 选题背景 2
1.2 研究意义 3
1.3 本课题研究的主要内容 4
第二章 切割部分设计 6
2.1 切割部分设计要求 6
2.2 切割部分设计方案 6
2.3 切割部分工作原理 8
2.4 切割部分结构设计 9
2.4.1 切割片的选取 9
2.4.2 电机的选取 9
2.4.3 带传动设计 9
2.4.4 升降液压缸的设计 13
2.4.5 滚动轴承的选取及校核 16
第三章 夹紧部分设计 20
3.1 夹紧机构设计要求 20
3.2 夹紧部分方案设计 20
第四章 纵横行走部分的设计 22
4.1 纵横行走装置设计要求 22
4.2 纵横行走部分方案设计 22
4.3 直线导轨的选择计算 22
4.3.1选定条件 22
4.3.2选择方式 22
第五章 液压传动系统设计 25
5.1液压传动机构 25
5.2 液压传动原理图 26
第六章 电气控制的设计 27
6.1 电气控制设计要求 27
6.2 电气控制设计方案 27
6.3可编程控制器PLC控制流程 28
7 结 论 29
参考文献 30
致谢 31
温馨提示:
1、题目前面的备注【字母数字编号】为本站整理分类的编号,与课题内容无关,请选题时忽视;
2、若题目上备注三维,则表示文件里包含三维源文件,由于三维组成零件数量较多,为保证预览截图的简洁性,本站将三维文件夹进行了打包。三维及CAD预览截图,均为本站电脑打开软件进行截图的,保证能够打开,下载原件超高清,下载后解压即可;
3、本站所有资源如无特殊说明,都需要本地电脑安装Office2007。图纸软件为AutoCAD,PROE,UG,SolidWorks,CATIA等;
4、本站所有图文资料仅供用户学习参考,不作为任何商用或其他用途;
5、本站不保证下载资源的准确性、安全性和完整性, 不包修改,不支持退换,同时也不承担用户因使用这些下载资源对自己和他人造成任何形式的伤害或损失;
6、 下载文件中如有侵权或不适当内容,请与我们联系,我们立即纠正。