

作品包括:
Word版说明书1份,共70页,约25000字
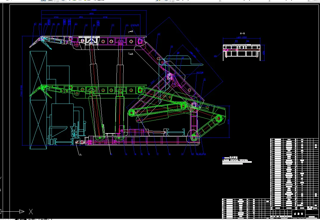
CAD版本图纸,共4张
摘要
中位放顶煤液压支架的放煤口位于支架高度的中部,即掩护梁上。工作面为双输送机,一前一后分别运输采煤机的落煤和放落的顶煤,由于工作面有两套独立的出煤系统,采煤和放煤间干扰比较少,能够实现采、放平行作业,提高工作面生产率。中位放顶煤液压支架是当前我国应用数量较多,分布面较广的综放支护设备。它已经不仅仅是一种单纯维护工作面空间的支护设备,还是一种依靠矿山压力破碎煤体,具有放煤功能的综采设备。
本次设计的四连杆中位放顶煤液压支架主要由顶梁、底座、掩护梁、立柱、前后连杆等几部分组成。放煤口设在掩护梁上,采用两部输送机,架型为支撑掩护式。主要采用计算以及作图的方法。因为该支架采用了四连杆机构,所以受力状态较好,抗扭能力强。
此支架具有受力状态好,抗扭能力强,不易倒架,不易损坏且煤尘较小等优点,其不足之处为:(1)后输送机置于底座上,挡煤板与架间浮煤易损坏中部槽,人工清理浮煤劳动强度大,效率低;(2)由于掩护梁不能摆动,仅靠放煤机构对跨落下来的大块煤进行二次破煤的能力欠佳。
关键词:四连杆; 中位放顶煤; 液压支架
目录
前言 1
1 放顶煤开采概论 2
1.1 放顶煤开采定义 2
1.2 放顶煤支架分类 2
1.3 我国放顶煤开采 3
2 支架整体结构及顶梁设计 4
2.1 液压支架工作原理 4
2.2 基本参数 5
2.3 总体方案设计 8
2.3.1 支架高度调高比和支架中心距及底座长度的确定 8
2.3.2 四连杆机构部件尺寸设计 8
2.4 各部件结构选择 14
2.4.1 顶梁 14
2.4.2 立柱 17
2.4.3 掩护梁和四连杆机构 18
2.4.4 底座 18
2.4.5 侧护板 20
2.5 液压支架参数的确定 22
2.5.1 支护强度 22
2.5.2 支护面积 23
2.5.3 支架的有效工作阻力 23
2.5.4 确定立柱的参数 23
2.5.5 泵站压力确定 24
2.5.6 千斤顶参数的确定 24
3 液压支架受力分析 25
3.1 概述 25
3.1.1 液压支架受力 25
3.1.2 计算载荷的确定 25
3.2 液压支架的受力研究求解 26
3.2.1 支架整体受力分析 26
3.2.2 顶梁的受力分析与计算 26
4 液压支架的强度计算 30
4.1 主顶梁强度校核 30
5 液压系统 36
5.1 立柱和千斤顶 36
5.2 液压阀 37
5.2.1 液控单向阀 37
5.2.2 安全阀 37
5.2.3 操作阀 38
6 结论 39
7 技术经济分析 40
致谢 41
参考文献 42
附录A 43
附录B 51
温馨提示:
1、题目前面的备注【字母数字编号】为本站整理分类的编号,与课题内容无关,请选题时忽视;
2、若题目上备注三维,则表示文件里包含三维源文件,由于三维组成零件数量较多,为保证预览截图的简洁性,本站将三维文件夹进行了打包。三维及CAD预览截图,均为本站电脑打开软件进行截图的,保证能够打开,下载原件超高清,下载后解压即可;
3、本站所有资源如无特殊说明,都需要本地电脑安装Office2007。图纸软件为AutoCAD,PROE,UG,SolidWorks,CATIA等;
4、本站所有图文资料仅供用户学习参考,不作为任何商用或其他用途;
5、本站不保证下载资源的准确性、安全性和完整性, 不包修改,不支持退换,同时也不承担用户因使用这些下载资源对自己和他人造成任何形式的伤害或损失;
6、 下载文件中如有侵权或不适当内容,请与我们联系,我们立即纠正。