

作品包括:
Word版说明书1份,共38页,14000字
任务书一份
开题报告一份
CAD版本图纸,共6张

摘要
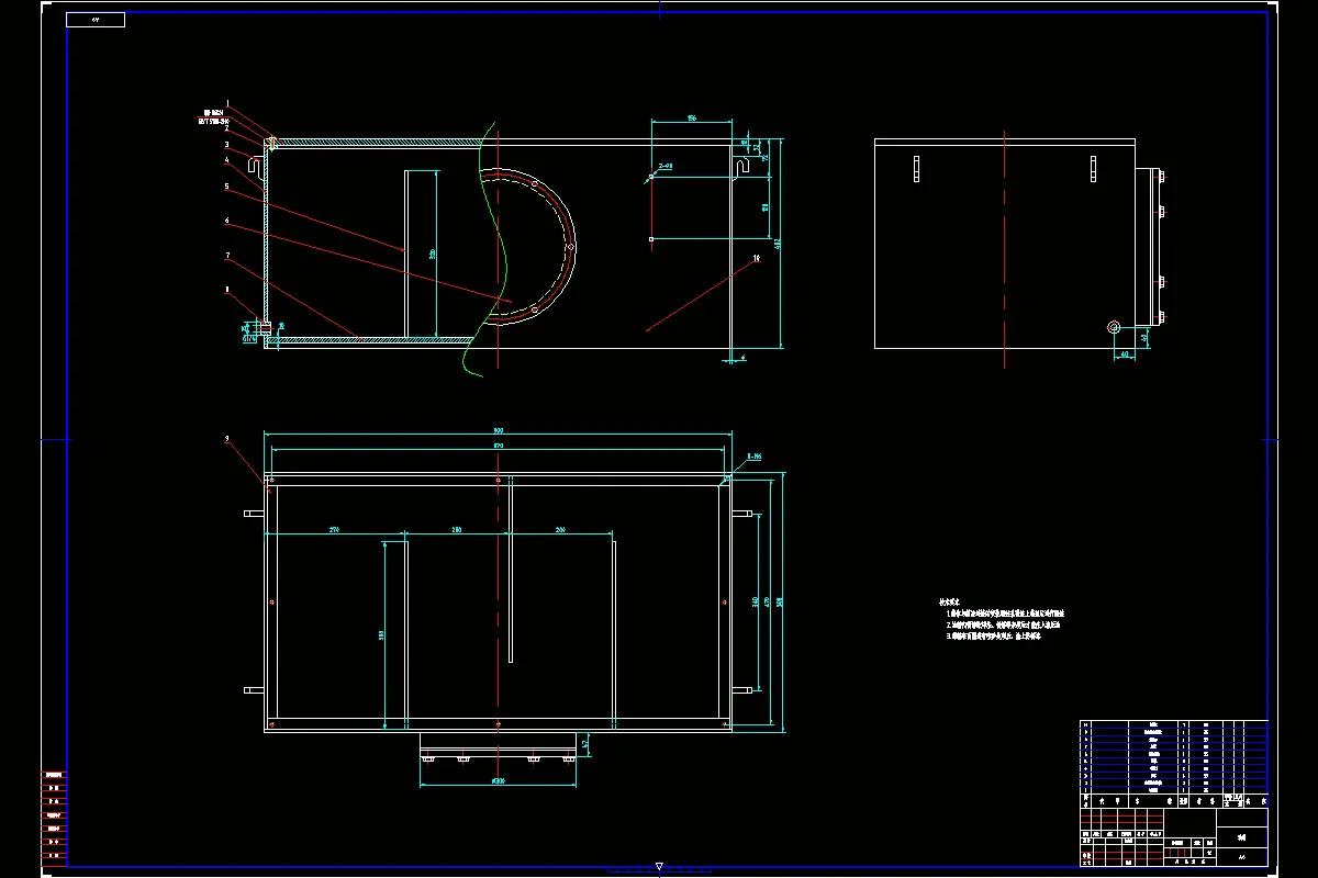
起锚机是船舶上的一种大甲板机械,用来收、放锚和锚链。起锚机通常安装在船舶首艉部主甲板上,供舰船起锚,抛锚系缆时用。起锚机通常和绞车配合使用。
起锚机主要由基座、支架、锚链轮、刹车、链轮、变速箱、电控系统(手动起锚机除外)等组成,电动起锚机有电动机,液压起锚机有液压泵站。起锚机是根据船舶的大小和锚及锚链的尺寸来选型。安全保护装置有超负载限制器、起升高度限位器、下降深度限位器、超速保护开关等,根据实际需要配用。
起锚机的驱动方式有三种,分别为手动驱动、电动机驱动和液压驱动。
本课题设计一种直径36mm液压起锚机的液压系统,根据其设计参数,分别完成液压原理图、液压站装配图和阀块的设计。
关键词:液压起锚机,液压系统,液压站
目录
摘要I
Abstract II
第一章绪论1
1.1绞车的概述1
1.2液压技术国内外的发展及趋势1
1.2.1国内液压技术现状及发展趋势1
1.2.2国外液压技术现状及发展趋势2
1.3本研究的主要内容4
第二章液压起锚机整体参数及液压原理图的拟定5
2.1拟定设计参数5
2.2拟定液压原理图6
2.3动作分析7
第三章液压起锚机液压系统的计算9
3.1制动力的计算9
3.1.1制动转矩的计算9
3.2制动液压缸的设计10
3.2.1液压缸的效率10
3.2.2液压缸缸径的计算10
3.2.3活塞宽度的确定11
3.2.4缸体长度的确定11
3.2.5缸筒壁厚的计算11
3.2.6活塞杆强度和液压缸稳定性计算12
3.2.7缸筒壁厚的验算14
3.2.8缸筒加工要求16
3.2.9 (缸筒端部)法兰连接螺栓的强度计算16
3.2.10密封件的选用18
3.3液压马达的选用与验算19
3.3.1液压马达的分类及特点19
3.3.2液压马达的选用20
3.3.3马达的验算20
第四章液压起锚机液压系统液压元件的选择23
4.1油泵的选择23
4.1.1油泵工作压力的确定23
4.1.2油泵流量的确定23
4.1.3油泵电机功率的确定23
4.2控制阀的选择24
4.3油管内径的确定24
4.3.1吸油管内径计算24
4.3.2压油管内径计算24
第五章压力系统性能的验算26
5.1系统的压力损失验算26
5.1.1局部压力损失计算26
5.1.2沿程损失计算26
5.2液压系统发热量的计算27
第六章液压站设计28
6.1液压油箱的设计29
6.2液压泵组的结构设计31
结论32
7.1本取得的结果32
7.2设计中存在的问题32
致谢33
参考文献34
温馨提示:
1、题目前面的备注【字母数字编号】为本站整理分类的编号,与课题内容无关,请选题时忽视;
2、若题目上备注三维,则表示文件里包含三维源文件,由于三维组成零件数量较多,为保证预览截图的简洁性,本站将三维文件夹进行了打包。三维及CAD预览截图,均为本站电脑打开软件进行截图的,保证能够打开,下载原件超高清,下载后解压即可;
3、本站所有资源如无特殊说明,都需要本地电脑安装Office2007。图纸软件为AutoCAD,PROE,UG,SolidWorks,CATIA等;
4、本站所有图文资料仅供用户学习参考,不作为任何商用或其他用途;
5、本站不保证下载资源的准确性、安全性和完整性, 不包修改,不支持退换,同时也不承担用户因使用这些下载资源对自己和他人造成任何形式的伤害或损失;
6、 下载文件中如有侵权或不适当内容,请与我们联系,我们立即纠正。