

作品包括:
Word版说明书1份,共34页,约13000字
任务书一份
开题报告一份
中期报告一份
CAD版本图纸,共5张
![1751085385673666.webp ]TZ{1`3XF5L3I(8S%(W[G~F.webp](/static/upload/image/20250628/1751085385673666.webp)
摘要
伴随市场经济的高速发展,企业想要在竞争激烈的环境中生存和发展,就必须用更高的品质,更短的时间和更普惠的价格去占领市场,满足市场的要求。现今,普通机床已经很难满足多品种、高效率的生产要求,而数控机床不论是在生产效率,还是加工精度上都优于普通车床,能够更好地满足产品生产设计要求。目前我国有存有大量老旧的普通车床,这是一批很好的可再用资源,利用数控系统改造这些机床后,可极大的提高生产效率和加工质量,节约成本。
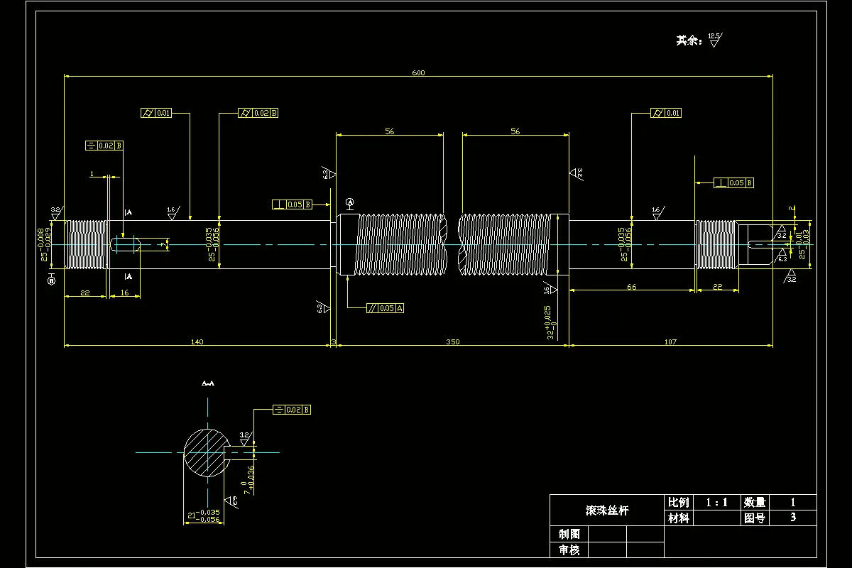
此次设计的主要内容是对C620-3型普通车床进行数控化改造,为保证传动的精度,使传动能够准确且高效,横向和纵向导轨均选用贴塑导轨。传动系统采用滚珠丝杠,并通过对滚珠丝杠进行拉伸以保证传动系统的刚度。采用调隙齿轮来消除间隙,用步进电机作为驱动元件。为保证加工螺纹时,主轴每转一转,刀架移动一个所加工螺纹的螺距或导程,在主轴上安装脉冲编码器,并对横向和纵向进给系统实现单片机控制,使之成为一个可独立的运动的开环伺服系统。
改造完成后的机床具有定位,直线插补,循环加工,公英制螺纹加工等功能,自动化程度提高,零件加工适应性更强。
关键词:车床;改造;数控;滚珠丝杆;单片机
目录
摘要I
Abstract II
第1章概述- 1-
1.1设计的目的- 1-
1.2设计任务- 1-
1.3设计的必要性- 1-
第2章总体方案设计- 3-
2.1系统的运动方式和伺服系统的选择- 3-
2.2机械结构改造方式- 3-
2.2.1横向滚珠丝杠- 3-
2.2.2纵向滚珠丝杠- 3-
2.2.3导轨副- 3-
2.2.4主轴脉冲发生器- 3-
2.2.5安装电动卡盘- 4-
2.3总体方案- 4-
第3章进给伺服系统设计- 5-
3.1纵向进给私服系统- 6-
3.1.1计算进给牵引力(N)- 6-
3.1.2计算最大动载荷C- 6-
3.1.3滚珠丝杠螺母副的选型- 7-
3.1.4计算滚珠丝杠螺母副的传动效率- 7-
3.1.5刚度验算- 7-
3.1.6校核稳定性- 9-
3.2横向进给伺服系统- 9-
3.2.1计算进给牵引力- 9-
3.2.2计算最大动负载C- 9-
3.2.3滚珠丝杠螺母副的选型- 10-
3.2.4计算滚珠丝杠螺母副的传动效率- 10-
3.2.5刚度验算- 10-
3.2.6稳定性计算- 11-
3.2.7滚珠丝杠螺母副几何参数- 12-
3.3计算齿轮传动比- 12-
3.3.1计算纵向进给齿轮箱传动比- 12-
3.3.2计算横向进给齿轮箱传动比- 13-
3.4步进电机选型- 14-
3.4.1步进电机介绍- 14-
3.4.2纵向步进电机选择计算- 15-
第4章车床数控化进给轴的改造- 23-
4.1滚珠丝杠的选择和布置结构形式- 23-
4.2机床导轨- 24-
4.3电机与丝杠的联接- 25-
第5章车床保养的内容和要求- 26-
5.1日常保养- 26-
5.2定期保养- 26-
第6章结论- 28-
参考文献- 29-
致谢- 30-
温馨提示:
1、题目前面的备注【字母数字编号】为本站整理分类的编号,与课题内容无关,请选题时忽视;
2、若题目上备注三维,则表示文件里包含三维源文件,由于三维组成零件数量较多,为保证预览截图的简洁性,本站将三维文件夹进行了打包。三维及CAD预览截图,均为本站电脑打开软件进行截图的,保证能够打开,下载原件超高清,下载后解压即可;
3、本站所有资源如无特殊说明,都需要本地电脑安装Office2007。图纸软件为AutoCAD,PROE,UG,SolidWorks,CATIA等;
4、本站所有图文资料仅供用户学习参考,不作为任何商用或其他用途;
5、本站不保证下载资源的准确性、安全性和完整性, 不包修改,不支持退换,同时也不承担用户因使用这些下载资源对自己和他人造成任何形式的伤害或损失;
6、 下载文件中如有侵权或不适当内容,请与我们联系,我们立即纠正。