

作品包括:
Word版说明书1份,共43页,约13000字
任务书一份
开题报告一份
CAD版本图纸,共9张

摘要
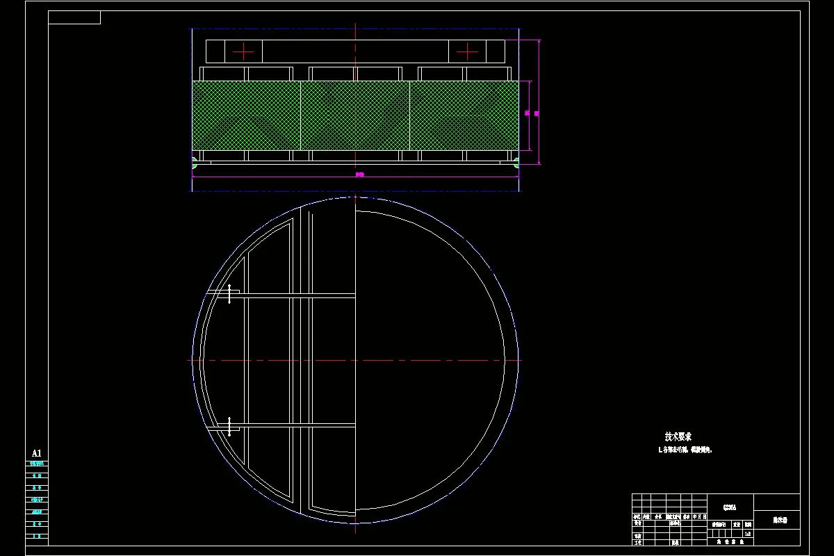
在工业上使用最早的板式塔是泡罩塔,被广泛应用至今已有两百多年的历史。泡罩塔因其操作弹性大、生产能力大、塔板效率高、不易堵塞且可以适应多种介质等优点,因此泡罩塔在蒸馏、吸收等领域拥有重要地位。泡罩塔的缺点是结构复杂、造价高、安装维修麻烦和气相压力降较大,这样使得泡罩塔在现代工业的应用比例有所减少。但是泡罩塔出现早,积累了丰厚经验,常用的泡罩已十分标准,其作用和优点也有很多板式塔不可代替的部分。泡罩塔盘的分类可分为单流式泡罩塔盘和条式泡罩塔盘,泡罩塔盘在工业生产中仍然是不可或缺的部分。
本次研究的课题是老师给定泡罩塔设计要求,其作用主要用于分离苯-甲苯混合溶液,通过查看数据、翻阅书籍查找资料、分析给定的设计条件,通过一些计算来确定泡罩塔的构造,本次设计主要设计塔的机械设计部分。
通过对泡罩塔给定设计条件进行分析,预定好设计方法和步骤。在对泡罩塔的塔体、内件、支座及附件部件的材料选择时,不仅要满足工艺设计,还要考虑自然因素,来进行壁厚计算和强度校核。对加工工艺、装配程序和安全防腐的要求,以及在制造、运输与安装时的注意事项。绘制符合设计要求的泡罩塔图纸,并给出技术要求.
在泡罩塔的结构设计过程中,要以设计书为标准进行规范设计,使设计符合相关标准,同时要满足生产的需求和符合安全生产要求。
关键词泡罩塔;苯-甲苯;设计;强度
目录
1绪论1
1.1塔设备的概述1
1.1.1塔设备在化工生产中的作用与地位1
1.1.2化工生产对塔设备的要求1
1.1.3塔设备的构造1
1.2泡罩塔2
1.3液体混合物的分馏4
1.4塔设备设计的内容与设计原则4
1.4.1设计内容4
1.4.2设计原则4
2泡罩塔的主体结构及零部件结构设计6
2.1泡罩塔的主体结构设计6
2.2泡罩塔的零部件结构设计7
2.2.1泡罩塔材料的选择7
2.2.2塔盘的结构设计7
2.2.3分块式塔盘的支撑结构8
2.2.4裙座的结构设计8
3泡罩塔其他附属装置的结构设计10
3.1溢流装置10
3.1.1降液管10
3.1.2受液盘10
3.2进出口管装置12
3.2.1进料管12
3.2.2出料管12
3.3人孔与手孔12
3.4视镜13
3.5液面计13
3.6法兰13
3.7补强圈13
3.8除沫器13
4强度计算与校核及各项验算15
4.1泡罩塔的设计参数15
4.2塔体壁厚初算15
4.2.1圆筒壁厚计算15
4.2.2封头壁厚计算16
4.3塔体各项载荷计算16
4.3.1质量载荷计算16
4.3.2风载荷计算18
4.3.3地震载荷计算20
4.3.4最大弯矩计算22
4.4.塔体的强度及轴向稳定性验算22
4.4.1圆筒轴向应力的计算22
4.4.2圆筒轴向稳定性校核22
4.4.3圆筒拉应力校核23
4.4.4塔体液压试验时的应力校核23
4.5.裙座的设计及验算24
4.5.1座体24
4.5.2基础环26
4.5.3地脚螺栓27
4.6裙座与塔体对接焊缝的验算27
5加工工艺和装配程序及安全防腐29
5.1加工工艺29
5.2装配程序29
5.3安全防腐29
5.3.1开发耐蚀材料29
5.3.2其他表面工程技术30
6泡罩塔的制造、安装及运输31
6.1材料检验31
6.2筒体制造31
6.2.1筒体的下料31
6.2.2筒节的成形31
6.2.3筒节的组对31
6.2.4筒节与筒节的组对焊接31
6.2.5筒体主焊缝的检测32
6.3封头的制造32
6.4泡罩塔的安装32
6.4.1安装前的准备32
6.4.2安装程序33
6.5泡罩塔的运输33
参考文献34
致谢35
附录36
温馨提示:
1、题目前面的备注【字母数字编号】为本站整理分类的编号,与课题内容无关,请选题时忽视;
2、若题目上备注三维,则表示文件里包含三维源文件,由于三维组成零件数量较多,为保证预览截图的简洁性,本站将三维文件夹进行了打包。三维及CAD预览截图,均为本站电脑打开软件进行截图的,保证能够打开,下载原件超高清,下载后解压即可;
3、本站所有资源如无特殊说明,都需要本地电脑安装Office2007。图纸软件为AutoCAD,PROE,UG,SolidWorks,CATIA等;
4、本站所有图文资料仅供用户学习参考,不作为任何商用或其他用途;
5、本站不保证下载资源的准确性、安全性和完整性, 不包修改,不支持退换,同时也不承担用户因使用这些下载资源对自己和他人造成任何形式的伤害或损失;
6、 下载文件中如有侵权或不适当内容,请与我们联系,我们立即纠正。