

作品包括:
Word版说明书1份,共35页,约14000字
任务书一份
CAD版本图纸,共7张

摘要
车床主轴精度包含有三个:径向跳动,轴向窜动,回转精度。而主轴回转误差是影响机床加工精度的主要因素,主轴回转精度是评定机床动态性能的一项主要指标。通过测量主轴回转误差,可以监视主轴运行状态,及时发现和诊断故障,也可以通过误差补偿来提高主轴的回转精度。
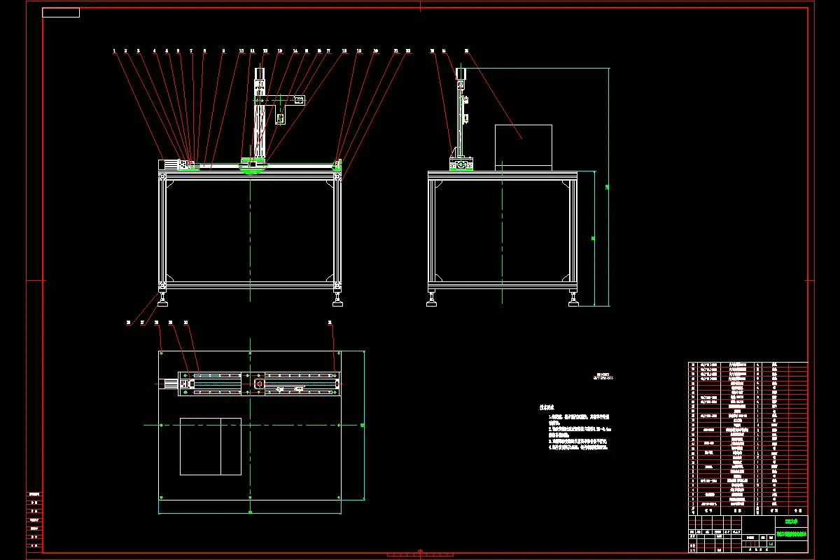
本次设计了以滚珠丝杠和激光位移传感器为核心元件的车床主轴回转精度测试机构。车床主轴回转精度测试机构传动系统主要由电动机、滚珠丝杠、工作台、联轴器、导轨、激光位移传感器组成。通过对回转精度测试机构的设计理论,首先进行了伺服进给传动系统的总体方案设计以及机器精度的选择;其次是车床主轴回转精度测量机构设计的滚珠丝杠的计算与选择、滚珠丝杠支承轴承的选择、通过计算选择进给传动系统的其他相关元器件、对传动系统的刚度、惯量匹配等进行了校核验算;再次通过计算来选择进给传动系统的伺服电动机以及联轴器,最后进行导轨的选择。证明计算得出的结果较好得满足了提出的设计要求,利用Auto CAD软件绘制了相关的装配图。
关键词:回转精度测试,伺服系统,激光位移传感器,滚珠丝杠
目录
摘要1
Abstract 2
1绪论4
1.1课题的意义4
1.2国内外主轴回转精度测量技术国内外的发展4
1.3课题设计思路7
1.4课题设计结构7
2车床主轴回转精度测试方法及方案的确认8
2.1回转精度的测试方法的选择8
2.1.1打表法测试8
2.1.2单向测量法8
2.1.3双向测量法9
2.1.4 CCD测量法10
2.1.5测量方法的选择11
2.2车床主轴回转精度测试试验台结构方案的确认11
2.2.1进给传动系统的要求11
2.2.2进给传动系统类型的选择11
2.2.3电机与丝杠联接方式的选择12
2.2.4支撑形式方案的选择13
2.2.5整机方案的确认14
3试验台进给系统系统设计15
3.1拟定技术参数15
3.2滚珠丝杠的计算及选择15
3.3滚珠丝杠支承轴承的选择18
3.4滚珠丝杠的校核19
3.4.1临界压缩负荷19
3.4.2临界转速20
3.4.3滚珠丝杠拉压振动与扭转振动的固有频率20
3.4.4滚珠丝杠扭转刚度22
3.4.5滚珠丝杠传动精度计算23
3.5滚珠丝杠进给传动系统变形计算24
3.5.1滚珠丝杠精度计算24
3.6伺服电机的选择与计算27
3.6.1进给伺服电机的校核29
3.7联轴器的选择30
结论31
4.1本所取得的结果31
4.2技术展望32
致谢33
参考文献34
温馨提示:
1、题目前面的备注【字母数字编号】为本站整理分类的编号,与课题内容无关,请选题时忽视;
2、若题目上备注三维,则表示文件里包含三维源文件,由于三维组成零件数量较多,为保证预览截图的简洁性,本站将三维文件夹进行了打包。三维及CAD预览截图,均为本站电脑打开软件进行截图的,保证能够打开,下载原件超高清,下载后解压即可;
3、本站所有资源如无特殊说明,都需要本地电脑安装Office2007。图纸软件为AutoCAD,PROE,UG,SolidWorks,CATIA等;
4、本站所有图文资料仅供用户学习参考,不作为任何商用或其他用途;
5、本站不保证下载资源的准确性、安全性和完整性, 不包修改,不支持退换,同时也不承担用户因使用这些下载资源对自己和他人造成任何形式的伤害或损失;
6、 下载文件中如有侵权或不适当内容,请与我们联系,我们立即纠正。