

作品包括:
Word版说明书1份,共52页,约20000字
任务书一份
开题报告一份
文献综述一份
CAD版本图纸,共8张
SW三维图一套

摘 要
【摘要】随老龄化过程中最明显的就是老人四肢灵活性的不断退化,还有各类疾病如脑卒中严重影响他们的生活质量。为了帮助偏瘫患者恢复功能,我国目前仍以传统人工康复训练为主。但这种方法由于是一对一的模式且对康复师专业技能要求较高使得治疗师数量严重不足。而且从康复效果大都依赖于康复师的主观判断,这就缺乏客观定量地判断和调控,影响康复效果。因此大力研发康复机器人并用于实际使用是一件紧迫且意义重大的事。外骨骼式下肢康复机器人(重力减重系统)的设计涉及到多方面知识体系,本文主要研究重力减重系统机械结构组成:固定支架,减重机构(滚珠丝杠传动),直流伺服电机等的选型计算。本设计要求完成重力减重系统设计,通过电力驱动,根据患者的自控力大小,可以通过腰部支撑以减轻部分体重,同时设计固定支架提供支撑和稳定,结合人机工程学介绍了减重系统的设计,旨在通过该卧式下肢康复机器人帮助患者完成康复训练,实现步行运动。
【关键词】重力减重系统;康复训练;人机工程学;机械结构设计
目 录
1绪论 1
1.1课题研究背景及意义 1
1.2 研究现状 1
1.2.1 国外研究现状 1
1.2.2 国内研究现状 3
1.3 本文主要研究内容 5
1.4研究的方法与技术路线: 6
2外骨骼式下肢康复机器人参数设计 7
2.1 下肢康复机器人的尺寸参数 7
2.1.1 康复机器人大腿和小腿尺寸 7
2.2.2 康复机器人臀宽与踏板尺寸 8
2.2.2 康复机器人各关节转动参数 8
2.3 康复机器人性能参数 11
3重力减重系统总体方案设计 13
3.1 康复机器人减重系统的参数及设计原则 13
3.2康复机器人减重系统的设计内容 13
3.3康复机器人减重系统的总体方案 13
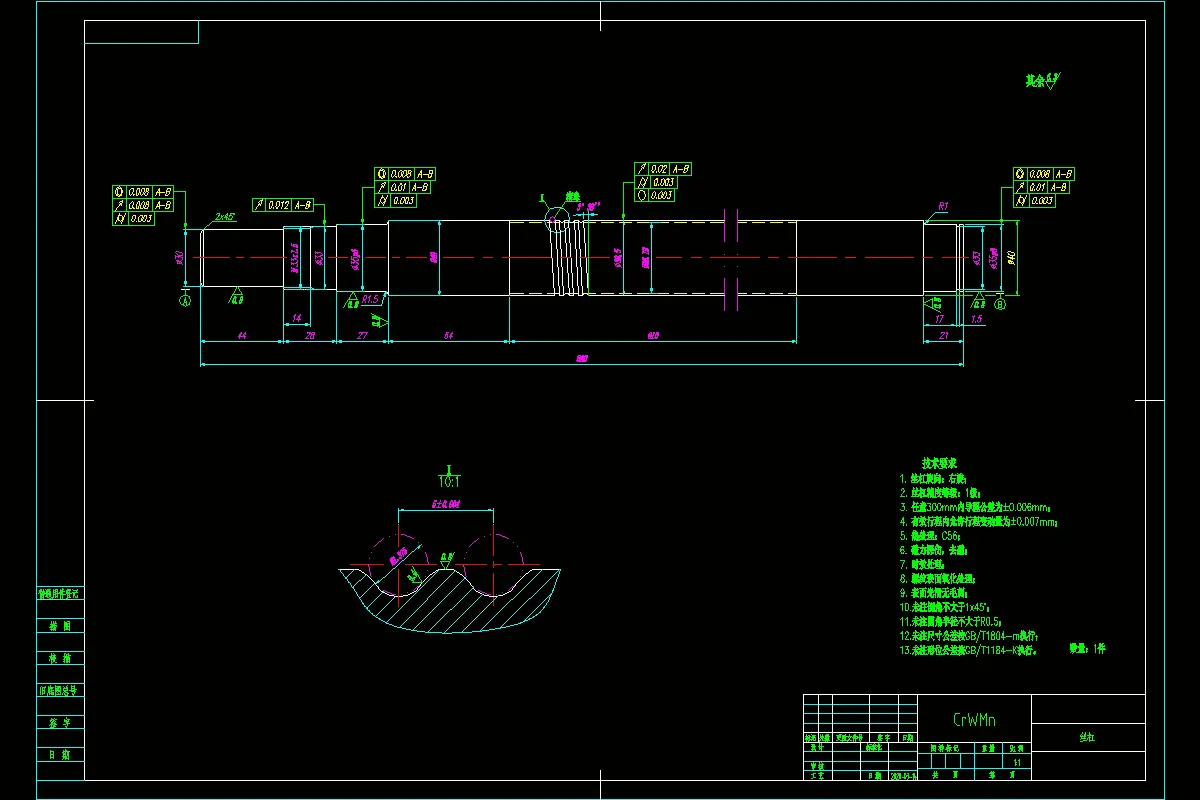
4 滚珠丝杠副的选型与计算 14
4.1滚珠丝杠的选型 14
4.2 滚珠丝杠副导程的确定 18
4.3 滚珠丝杠副的传动效率 19
5 直线滚动导轨的选型 20
5.1定位精度高 20
5.2降低机床造价并大幅度节约电力 20
5.3可提高机床的运动速度 20
5.4可长期维持机床的高精度 20
5.5直线滚动导轨副的计算与选型 21
5.5.1滑块承受工作载荷F 的计算及导轨型号的选取 21
5.5.2 距离额定寿命L的计算 21
6 步进电机的参数与选型 23
6.1步进电动机的特点 23
6.2 步进电动机的分类 23
6.2.1反应式步进电动机 23
6.2.2永磁式步进电动机 23
6.2.3混合式步进电动机 24
6.3步进电动机的参数及其选择 24
6.4电动机的转速与功率 25
6.5各参素的确定 26
6.6初选步进电动机型号 26
6.6.1脉冲当量的选择 26
6.6.2等效负载转矩的计算 27
6.6.3等效转动惯量计算 27
6.6.4步进电动机型号选择的计算 27
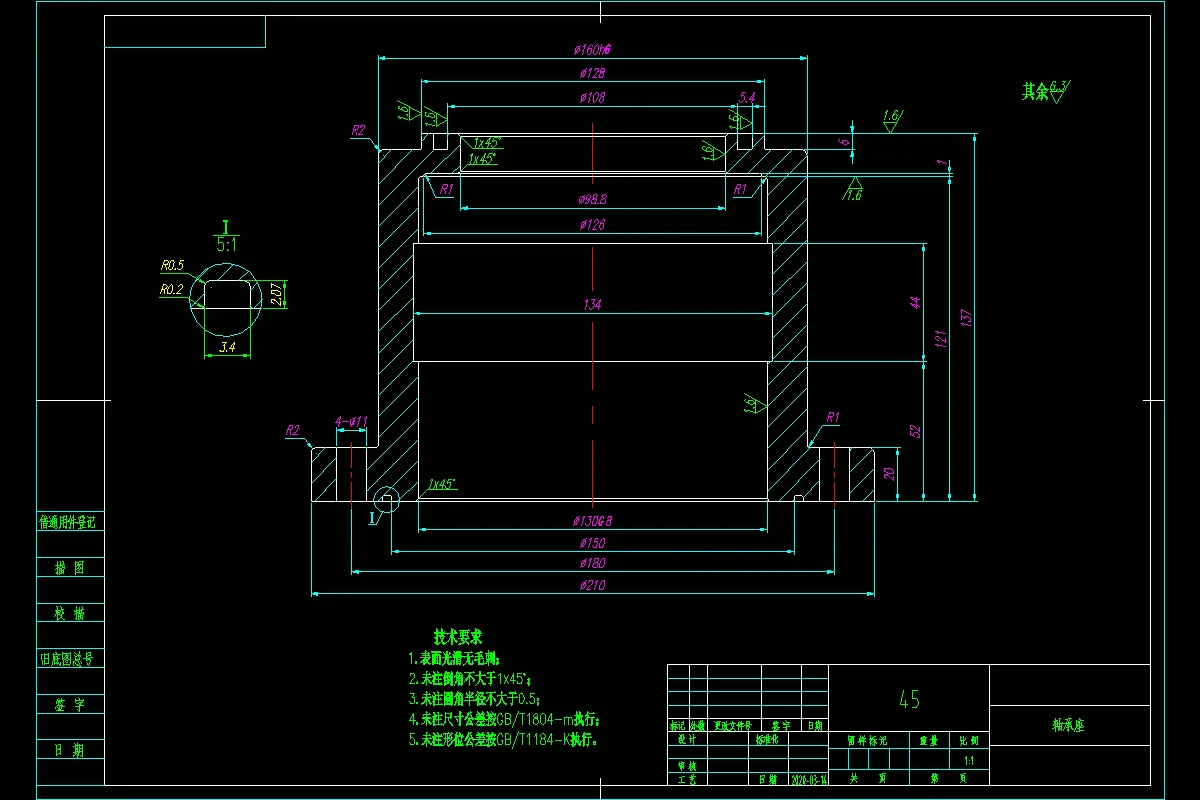
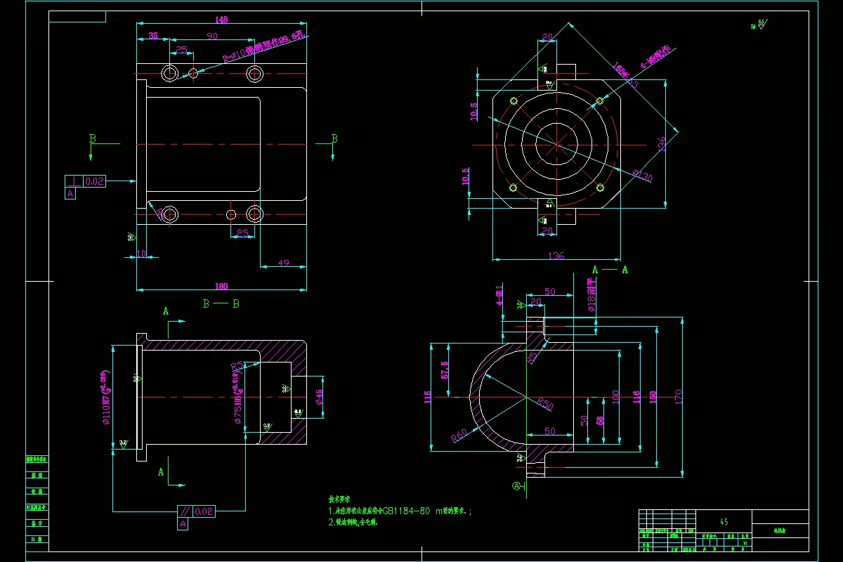
7 轴、轴承及联轴器的选用 33
7.1轴的材料 33
7.1.1轴的分类 33
7.1.2轴的材料及选择 33
7.2 轴的结构设计 33
7.2.1轴头、轴颈和轴身 33
7.2.2轴上零件的轴向固定和定位 34
7.2.3轴的周向固定 34
7.2.4减少应力集中的措施 35
7.3轴承的选用 35
7.4联轴器的选用 36
结论 38
参考文献 39
致谢 40
温馨提示:
1、题目前面的备注【字母数字编号】为本站整理分类的编号,与课题内容无关,请选题时忽视;
2、若题目上备注三维,则表示文件里包含三维源文件,由于三维组成零件数量较多,为保证预览截图的简洁性,本站将三维文件夹进行了打包。三维及CAD预览截图,均为本站电脑打开软件进行截图的,保证能够打开,下载原件超高清,下载后解压即可;
3、本站所有资源如无特殊说明,都需要本地电脑安装Office2007。图纸软件为AutoCAD,PROE,UG,SolidWorks,CATIA等;
4、本站所有图文资料仅供用户学习参考,不作为任何商用或其他用途;
5、本站不保证下载资源的准确性、安全性和完整性, 不包修改,不支持退换,同时也不承担用户因使用这些下载资源对自己和他人造成任何形式的伤害或损失;
6、 下载文件中如有侵权或不适当内容,请与我们联系,我们立即纠正。