

作品包括:
Word版说明书1份,共44页,约15000字
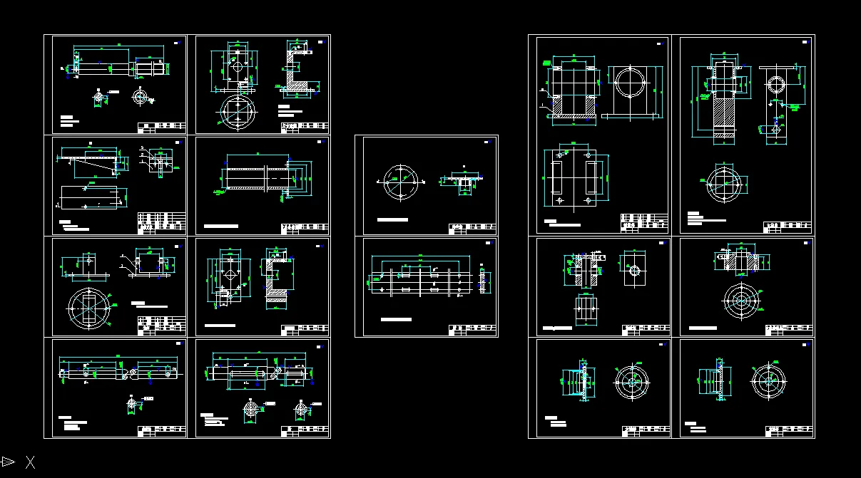
CAD版本图纸,共19张
SW三维图一套
UG三维图一套

摘 要
康复机器人是康复设备的一种类型,同时作为医疗机器人的一个重要分支,它的研究贯穿了康复医学、生物力学、机械学、机械力学、电子学、材料学、计算机科学以及机器人学等诸多领域,已经成为了国际机器人领域的一个研究热点。康复医学工程虽然在我国得到了普遍的重视,但由于康复机器人研究尚处于起步阶段,一些简单康复器械目前还远远不能满足市场对智能化、人机工程化康复机器人的需求,因此有待进一步的研究和发展。
本文从使用角度分析了人体上肢运动原理,设计了一种坐式上肢康复训练机器人,用于心脑血管疾病或神经系统疾病造成的上肢体损伤患者的上肢康复训练。本设计中的上肢康复机器人主要由机身、运动机构和传动机构组成。机身包括放置于地面上的基座、两根可以伸缩的立柱以及上横梁;运动机构则由上肢前后摆动机构、上肢屈伸机构和上肢分合机构组成,它们分别装在机身的基座、立柱和横梁上,且分别由单独的电机和减速器驱动;传动机构主要包括传动轴、丝杠螺母副、同步齿形带等元件。该机器人在单片机的控制下,实现患者的上肢前后摆、屈伸、分合运动以及手腕转动的康复训练;也可启动部分电机,完成其中的部分康复训练。
随着机器人技术的发展,小型化、轻量化而且更接近实用的人工智能机器人不断地被开发研制出来,人们对康复机器人的未来也充满了期待。
关键词:上肢;康复机器人;结构设计;运动机构;传动机构
目 录
第1章 绪论 1
1.1 本课题的目的与意义 1
1.2 康复机器人的国内外研究现状 2
1.2.1 国外研究现状 2
1.2.2 国内研究现状 5
1.3 本课题主要研究内容 7
第2章 上肢康复机器人总体结构方案 8
2.1 总体方案设计 8
2.1.1 机器人整体尺寸的选择 8
2.1.2 机器人驱动装置的选择 8
2.1.3 机器人的总体方案 9
2.2 运动机构的总体设计 10
2.2.1 前后摆动机构 10
2.2.2 屈伸运动机构 10
2.2.3 分合运动机构 11
2.2.4 手腕转动机构 12
2.3本章小结 12
第3章 上肢康复机器人机械结构设计 13
3.1 前后摆动机构 13
3.1.1 电机的选择 13
3.1.2 减速器的选择 14
3.1.3 联轴器的选择 15
3.1.4 轴的设计与校核 16
3.1.5 键选择及校核计算 18
3.1.6 整体结构的设计 19
3.2 屈伸运动机构 20
3.2.1 电机的选择 20
3.2.2 联轴器的选择 21
3.2.3 丝杠的设计计算 21
3.2.4 锥齿轮的设计计算 23
3.2.5 轴承校核 25
3.2.6 总体结构的设计 26
3.3 分合运动机构 27
3.3.1 电机的选择 27
3.3.2 支撑座的设计 28
3.3.3 横梁的设计 29
3.3.4 同步齿形带设计 29
3.3.5 总体结构的设计 31
3.4 手腕转动机构 31
3.4.1 电机的选择 31
3.4.2 总体结构的设计 32
3.5 本章小结 33
第4章 总结 34
参考文献 35
致 谢 37
温馨提示:
1、题目前面的备注【字母数字编号】为本站整理分类的编号,与课题内容无关,请选题时忽视;
2、若题目上备注三维,则表示文件里包含三维源文件,由于三维组成零件数量较多,为保证预览截图的简洁性,本站将三维文件夹进行了打包。三维及CAD预览截图,均为本站电脑打开软件进行截图的,保证能够打开,下载原件超高清,下载后解压即可;
3、本站所有资源如无特殊说明,都需要本地电脑安装Office2007。图纸软件为AutoCAD,PROE,UG,SolidWorks,CATIA等;
4、本站所有图文资料仅供用户学习参考,不作为任何商用或其他用途;
5、本站不保证下载资源的准确性、安全性和完整性, 不包修改,不支持退换,同时也不承担用户因使用这些下载资源对自己和他人造成任何形式的伤害或损失;
6、 下载文件中如有侵权或不适当内容,请与我们联系,我们立即纠正。