

作品包括:
Word版说明书1份,共50页,约17000字
任务书一份
外文翻译一份
CAD版本图纸,共6张
SW三维图一套

摘 要
粒状巧克力糖包装机
摘 要: 由于生产和流通的日益社会化,现代化,尤其是半个世纪以产品包装得到了飞速的发展,在市场商品交换的重要地位也越来越来突出,目前,已普遍引起人们的重视。
科技的发展在当代社会各个不同的领域都产生了深远的影响。特别是机械化,自动化设备的普遍应用,更为这些领域增添了活力,包装业也不例外。现在大部分的包装过程已有手工作业转变为机械化作业。这不仅仅降低了人的劳动程度,而且也加快了生产速度,提高了生产率,同时也使包装的形式在不断的改进、革新,使广大的消费者普遍能够接受。这在客观上促进了产品的营销,提高了产品在市场上的竞争力,也可以为企业带来高额的利润。
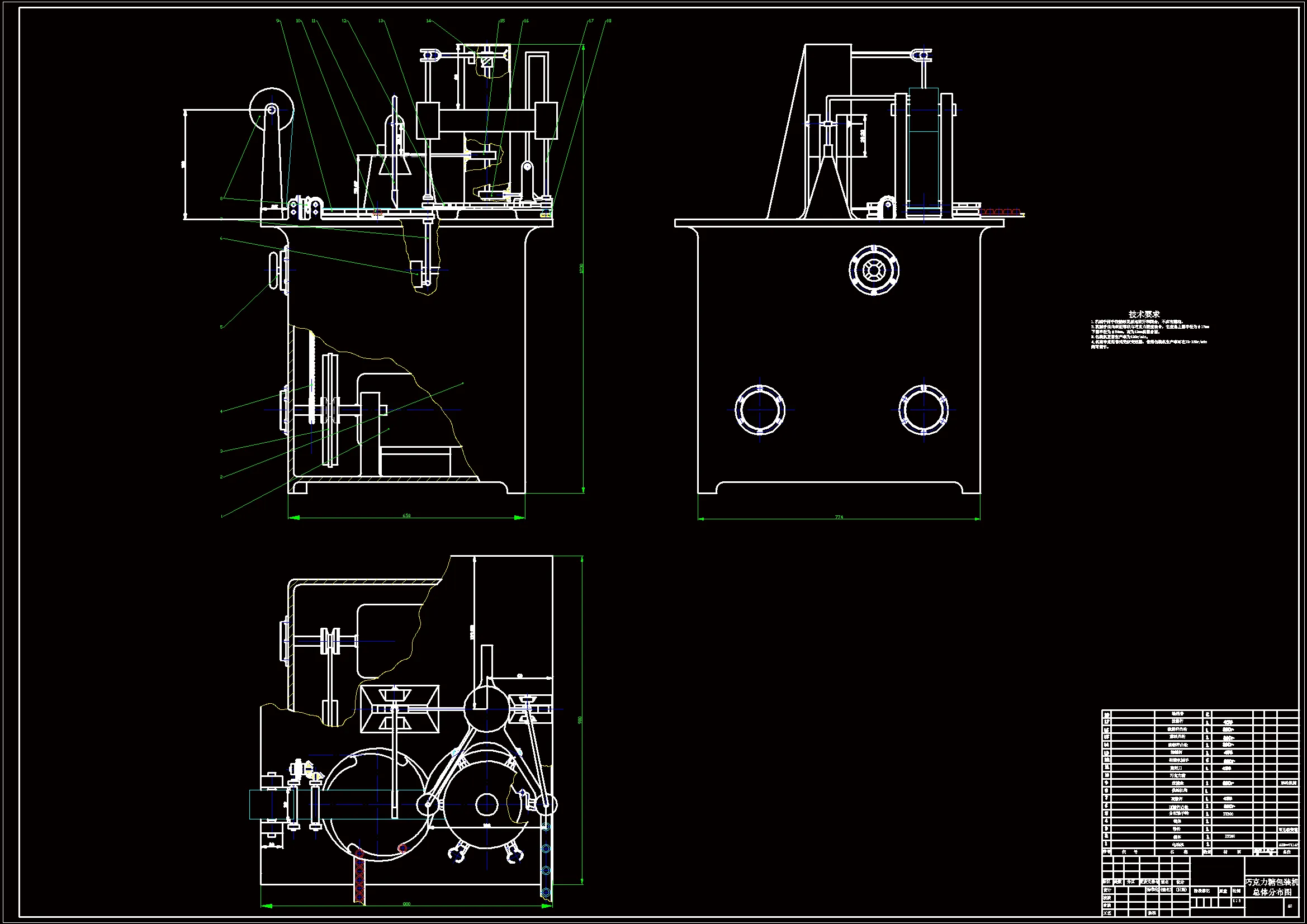
本次设计,通过许多种方案的综合评价、筛选,最后确定了这一台连续式包装机。该机由电磁震动上料斗、分糖落糖部件、钳糖部件、扭结部件、纸架部件、切纸部件以及动力源——无级变速部件、动力分度箱等几大部件,整个包装过程实现了自动化,与现代机械相比,本机器实现了高速、连续性,具有高的生产率、低动力消耗、使用简单、维修方便可靠等优点。
关键词:上料;分糖落糖部件;切纸部件;自动化;现代化
目 录
摘 要 I
ABSTRACT II
1 引 言 1
1.1 包装机械 1
1.1.1 包装的分类及作用 1
1.1.2 包装机械的组成 1
1.1.3 包装机械的特点 2
1.2 包装机发展方向 3
1.3 国内包装机发展现状及趋势 4
1.4 我国包装技术与国外先进包装技术的差距 6
2 粒状巧克力糖包装机的工艺确定 7
2.1 产品特征 7
2.2 包装材料 7
2.3 包装工艺方案拟定 7
2.4 巧克力糖包装工艺的实验 8
3 粒状巧克力糖包装机的总体布局 10
3.1 机型选择 10
3.2 自动机的执行机构 10
3.3 包装机总体布置 11
4 粒状巧克力糖包装机的传动系统 12
4.1 选择电动机 12
4.2 电动机的选择 13
4.3传动方案的确定 14
5 电机到主输送带装置的传动设计 16
5.1 第一级传动——带的设计 16
5.2 齿轮的设计 18
5.2.1 齿轮材料 18
5.2.2 分配轴上螺旋齿轮的尺寸计算 18
5.2.3 机械手及送糖轴上的螺旋齿轮的尺寸计算 19
5.3 第三级传动——链传动的设计计算 20
5.4 主传送带的设计计算 21
5.4.1 主传动链的设计计算 21
5.4.2 计算主传送带的牵引力F 23
5.4.3 验算主链条输送装置的功率 23
6 粒状巧克力糖包装机的工作循环图 26
6.1 分析各执行机构的运动循环图 26
6.2 各执行机构运动循环的时间同步化设计 28
6.3 绘制粒状巧克力自动包装机的工作循环 29
6.4 修正自动包装机的工作循环图 29
7 粒状巧克力糖包装机的齿轮设计 31
7.1 斜齿轮副1、2、3的设计计算表 31
7.2 标准直齿齿轮副16的设计计算表 32
8 粒状巧克力糖包装机的机械手设计 33
9 粒状巧克力糖包装机的凸轮设计 34
9.1 顶糖杆槽凸轮5 34
9.2 拨糖杆偏心凸轮7 34
9.3 剪纸刀平面凸轮6 、抄纸板平面凸轮8 35
9.4 接糖杆圆柱凸轮9 36
10 粒状巧克力糖包装机的槽轮设计 37
11 巧克力包装机Solidworks三维建模 38
1 基本简介 38
2 软件特点 38
2.1 全动感用户界面 38
2.2 配置管理 39
2.3 协同工作 39
2.4 装配设计 39
2.5 工程图 40
3巧克力包装三维图 41
3.2送料与夹持 41
3.3 整体装配图 41
12结论 42
谢 词 43
参考文献 44
温馨提示:
1、题目前面的备注【字母数字编号】为本站整理分类的编号,与课题内容无关,请选题时忽视;
2、若题目上备注三维,则表示文件里包含三维源文件,由于三维组成零件数量较多,为保证预览截图的简洁性,本站将三维文件夹进行了打包。三维及CAD预览截图,均为本站电脑打开软件进行截图的,保证能够打开,下载原件超高清,下载后解压即可;
3、本站所有资源如无特殊说明,都需要本地电脑安装Office2007。图纸软件为AutoCAD,PROE,UG,SolidWorks,CATIA等;
4、本站所有图文资料仅供用户学习参考,不作为任何商用或其他用途;
5、本站不保证下载资源的准确性、安全性和完整性, 不包修改,不支持退换,同时也不承担用户因使用这些下载资源对自己和他人造成任何形式的伤害或损失;
6、 下载文件中如有侵权或不适当内容,请与我们联系,我们立即纠正。