

作品包括:
Word版说明书1份,共44页,约24000字
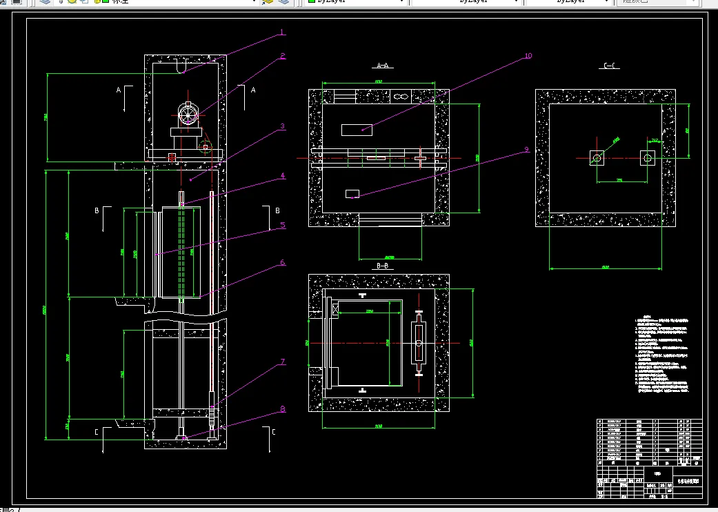
CAD版本图纸,共8张
UG三维图一套

摘 要
(dct)双离合器自动变速器在二十世纪九十年代末期兴起于欧洲,是继(at)液力机械式自动变速器、(amt)电控机械式自动变速器和(cvt)无级自动变速器之后的又一种新型的自动变速器。双离合器自动变速器的研究在国内才刚刚起步,然而由于其具有优良的性能以及对现有生产设备很好的继承性而受到了极大的重视,其发展前景良好。本文从双离合器自动变速器的结构出发,系统全面分析其结构和工作原理,并制定了一套结构和尺寸的设计原则与方法,从以下方面分析:分析了双离合器自动变速器系统的结构和工作原理,对它的不同结构型式进行详细的分析和比较,得到了他们各自的结构特点、原理和使用原则。分析了湿式双离合器的结构特点,对两种典型湿式双离合器摩擦副材料,摩擦表面尺寸以及三种双输入轴自动变速器传动比、中心距、齿轮参数和轴的结构尺寸等设计提出计算方法,并对湿式双离合器起步时的产生的摩滑功进行理论推导。
根据某一款轿车的参数和所确定的设计方法,对湿式双离合器自动变速器的结构和尺寸设计计算,并绘制了结构图。可得出计算的结果与实际相符合,由此认为本课题所制定的双离合器自动变速器的设计方法基本上可行且合理。
关键词:双离合器自动变速器,湿式双离合器,,设计方法,原则
目录
1 第1章绪论 6
1.1自动变速器简介 6
1.2双离合器自动变速器简介 6
1.2.1 双离合器自动变速器的系统的结构 6
1.2.2国内研究进展 7
1.3国外研究状况 7
1.4课题研究内容 8
第2章湿式双离合自动变速器的结构与比较 8
2.1干湿式离合器的比较 8
2.2两种湿式离合器的结构分析与比较 8
2.2.1 轴向平行式湿式双离合器的结构及其工作原理 9
2.2.2 径向嵌套式湿式双离合器的结构及其工作原理 10
2.2.3两种湿式双离合器的共同点 11
2.2.4两种湿式离合器的不同点 12
2.3 三种双输入轴自动变速器的结构分析及其比较 13
2.3.1两轴式自动变速器的结构和工作原理 13
2.3.2中间轴自动变速器的结构和工作原理 14
第3章湿式双离合的结构尺寸及计算方法 16
3.1湿式离合器的概述 16
3.1.1湿式离合器的作用 17
3.1.2湿式离合器的要求 17
3.2湿式双离合器的结构设计方法 18
3.2.1湿式双离合器的结构布置形式 18
3.2.2 压盘的结构型式和驱动方式 18
3.2.3 活塞缸的结构型式和运动状态 18
3.2.4 摩擦片的回位结构 19
3.2.5 主动摩擦片支撑体的结构型式 19
3.2.6 从动摩擦片连接件的结构型式 21
3.2.7 扭转减振器的结构型式 21
3.2.8 油路和密封圈的布置 22
3.3 湿式双离合器的尺寸设计计算方法 22
3.3.1 选择摩擦副材料和摩擦副系数 22
3.3.2 预先计算摩擦表面的尺寸 25
3.3.3 摩滑功的计算 28
3.4 本章小结 31
第4章湿式双离合自动变速器的设计计算 31
4.1湿式离合器的结构设计 31
4.2湿式双离合器的尺寸设计计算 32
4.2.1 选取摩擦副材料和摩擦副系数 32
4.2.2 摩擦表面尺寸的计算 32
4.2.3 摩滑功的计算 34
4.3湿式双离合变速器的计算结果 34
4.4双输入轴自动变速器的结构尺寸设计计算 34
4.4.1 结构选型 34
4.4.2 初选传动比 35
4.4.3 初选中心距和齿轮参数 35
4.4.4 确定各档齿轮的齿数和传动比 36
4.4.5 轴的设计计算 37
4.5本章小结 42
第5章总结与展望 42
5.1课题总结与展望 42
参考文献 43
致谢 45
附录 1 本文计算时用到的汽车参数 46
温馨提示:
1、题目前面的备注【字母数字编号】为本站整理分类的编号,与课题内容无关,请选题时忽视;
2、若题目上备注三维,则表示文件里包含三维源文件,由于三维组成零件数量较多,为保证预览截图的简洁性,本站将三维文件夹进行了打包。三维及CAD预览截图,均为本站电脑打开软件进行截图的,保证能够打开,下载原件超高清,下载后解压即可;
3、本站所有资源如无特殊说明,都需要本地电脑安装Office2007。图纸软件为AutoCAD,PROE,UG,SolidWorks,CATIA等;
4、本站所有图文资料仅供用户学习参考,不作为任何商用或其他用途;
5、本站不保证下载资源的准确性、安全性和完整性, 不包修改,不支持退换,同时也不承担用户因使用这些下载资源对自己和他人造成任何形式的伤害或损失;
6、 下载文件中如有侵权或不适当内容,请与我们联系,我们立即纠正。