

作品包括:
Word版说明书1份,共24页,约9400字
外文翻译一份
CAD版本图纸,共13张

摘 要
9F系列粉碎机中,9表示畜牧机械的分类代号,F指粉碎机,按其转子直径大小的不同可以分为:20、25、26、28、万能、多功能等型号,本人这次设计的是9F-20型锤片式粉碎机,根据设计任务的具体要求,着重设计单机,而配套辅助系统只作简单介绍。本机动力配置采用皮带轮驱动,该机主要组成部分有:进料斗、粉碎机机体、转子、筛桶、传动部分、电机。粉碎机是工农业生产中应用非常广泛的一种设备,本次设计主要吸取已有粉碎机的有点,结合谷物和茎杆的特殊要求,对粉碎机的方案、传动系统和工作部件进行规范设计,最终设计出一种能使用于粉碎谷物、茎杆的小型锤片式粉碎机。
9F-20型锤片式粉碎机是一种利用高速旋转的锤片来击碎谷物的机器,它具有通用性广、效率高、粉碎质量好、操作方便、动力消耗低等优点。本文将对其进行设计讨论,将着重对方案选择及总体设计、主轴的设计、箱体的结构设计进行深刻的研究和探讨。
关键词:设计;粉碎机;锤片
目录
中文摘要
英文摘要
1 前言 ••••••••••••••••••••••••••••••••••••••••••••••••••••••••••••5
1.1 设计的目的和意义••••••••••••••••••••••••••••••••••••••••••••••5
1.2 设计的基本要求••••••••••••••••••••••••••••••••••••••••••••••••5
2 总体方案的选择与设计••••••••••••••••••••••••••••••••••••••••••••••6
2.1 粉碎机的构造••••••••••••••••••••••••••••••••••••••••••••••••••6
2.2 工作原理••••••••••••••••••••••••••••••••••••••••••••••••••••••6
3 重要部件的原型与设计••••••••••••••••••••••••••••••••••••••••••••••6
3.1 进料部分••••••••••••••••••••••••••••••••••••••••••••••••••••••6
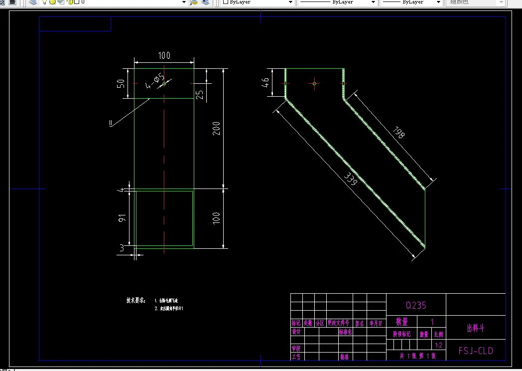
3.2 出料部分•••••••••••••••••••••••••••••••••••••••••••••••••••••7
3.3 粉碎部分•••••••••••••••••••••••••••••••••••••••••••••••••••••7
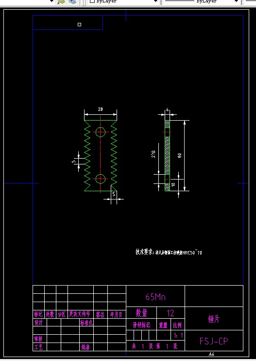
3.3.1 锤片•••••••••••••••••••••••••••••••••••••••••••••••••••••7
3.3.2 转子•••••••••••••••••••••••••••••••••••••••••••••••••••••8
3.3.3 筛子的选型•••••••••••••••••••••••••••••••••••••••••••••••9
3.3.4 锤筛间隙 的确定•••••••••••••••••••••••••••••••••••••••10
3.4 传动部分••••••••••••••••••••••••••••••••••••••••••••••••••••10
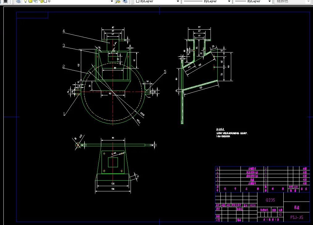
3.5 机体部分••••••••••••••••••••••••••••••••••••••••••••••••••••10
3.5.1 外壁••••••••••••••••••••••••••••••••••••••••••••••••••••10
3.5.2 机架••••••••••••••••••••••••••••••••••••••••••••••••••••10
4 主要技术参数的确定••••••••••••••••••••••••••••••••••••••••••••••10
4.1 锤片的末端线速度v•••••••••••••••••••••••••••••••••••••••••••11
4.2 转子工作直径和粉碎室宽度•••••••••••••••••••••••••••••••••••••11
4.3 转子转速n•••••••••••••••••••••••••••••••••••••••••••••••••••11
4.4 粉碎机生产率Q•••••••••••••••••••••••••••••••••••••••••••••••12
4.5配套动力•••••••••••••••••••••••••••••••••••••••••••••••••••••12
4.5.1 配套功率N•••••••••••••••••••••••••••••••••••••••••••••••12
4.5.2 选择电动机•••••••••••••••••••••••••••••••••••••••••••••••12
5 标准件的选择•••••••••••••••••••••••••••••••••••••••••••••••••••••13
5.1 轴承的选择•••••••••••••••••••••••••••••••••••••••••••••••••••13
5.2 键的选择••••••••••••••••••••••••••••••••••••••••••••••••••••13
5.3螺栓的选择•••••••••••••••••••••••••••••••••••••••••••••••••••13
5.4螺母的选择•••••••••••••••••••••••••••••••••••••••••••••••••••14
5.5垫圈的选择•••••••••••••••••••••••••••••••••••••••••••••••••••14
6 带的设计••••••••••••••••••••••••••••••••••••••••••••••••••••••••14
6.1 确定V带型号和带轮直径••••••••••••••••••••••••••••••••••••••14
6.2计算带长•••••••••••••••••••••••••••••••••••••••••••••••••••••14
6.3 求中心距 ••••••••••••••••••••••••••••••••••••••••••••••••••14
6.4 带长计算••••••••••••••••••••••••••••••••••••••••••••••••••••15
6.5 带基准长度 ••••••••••••••••••••••••••••••••••••••••••••••••15
6.6 求带轮包角••••••••••••••••••••••••••••••••••••••••••••••••••15
6.7 求带根数z•••••••••••••••••••••••••••••••••••••••••••••••••••15
6.8 求轴上载荷••••••••••••••••••••••••••••••••••••••••••••••••••15
6.9 带轮结构••••••••••••••••••••••••••••••••••••••••••••••••••••16
7 轴的设计••••••••••••••••••••••••••••••••••••••••••••••••••••••••16
7.1 轴的计算•••••••••••••••••••••••••••••••••••••••••••••••••••••16
7.1.1 轴的转数•••••••••••••••••••••••••••••••••••••••••••••••••16
7.1.2 轴的输入功率••••••••••••••••••••••••••••••••••••••••••••16
7.1.3 轴转矩••••••••••••••••••••••••••••••••••••••••••••••••••16
7.1.4 轴直径的初步确定•••••••••••••••••••••••••••••••••••••••••17
7.1.5 轴的结构设计•••••••••••••••••••••••••••••••••••••••••••••17
8 主要工作零部件的强度校核•••••••••••••••••••••••••••••••••••••••••18
8.1 锤片的强度校核•••••••••••••••••••••••••••••••••••••••••••••••18
8.1.1 锤片单片的横断面抗拉强度•••••••••••••••••••••••••••••••••18
8.1.2 锤片螺孔处抗剪切强度校核•••••••••••••••••••••••••••••••••19
8.2 轴的强度校核•••••••••••••••••••••••••••••••••••••••••••••••••20
8.2.1 作用在轴上的力的分析•••••••••••••••••••••••••••••••••••••20
8.2.2 轴的校核•••••••••••••••••••••••••••••••••••••••••••••••••20
8.3 键的校核 ••••••••••••••••••••••••••••••••••••••••••••••••••••21
9 轴承的寿命计算••••••••••••••••••••••••••••••••••••••••••••••••••22
参考文献••••••••••••••••••••••••••••••••••••••••••••••••••••••••••24
致谢••••••••••••••••••••••••••••••••••••••••••••••••••••••••••••••25
温馨提示:
1、题目前面的备注【字母数字编号】为本站整理分类的编号,与课题内容无关,请选题时忽视;
2、若题目上备注三维,则表示文件里包含三维源文件,由于三维组成零件数量较多,为保证预览截图的简洁性,本站将三维文件夹进行了打包。三维及CAD预览截图,均为本站电脑打开软件进行截图的,保证能够打开,下载原件超高清,下载后解压即可;
3、本站所有资源如无特殊说明,都需要本地电脑安装Office2007。图纸软件为AutoCAD,PROE,UG,SolidWorks,CATIA等;
4、本站所有图文资料仅供用户学习参考,不作为任何商用或其他用途;
5、本站不保证下载资源的准确性、安全性和完整性, 不包修改,不支持退换,同时也不承担用户因使用这些下载资源对自己和他人造成任何形式的伤害或损失;
6、 下载文件中如有侵权或不适当内容,请与我们联系,我们立即纠正。