

作品包括:
Word版说明书1份,共22页,约10000字
开题报告一份
CAD版本图纸,共12张
![1690184383350561.webp J$E88`M}Z})Z]FV@8~%F(70.webp](/static/upload/image/20230724/1690184383350561.webp)
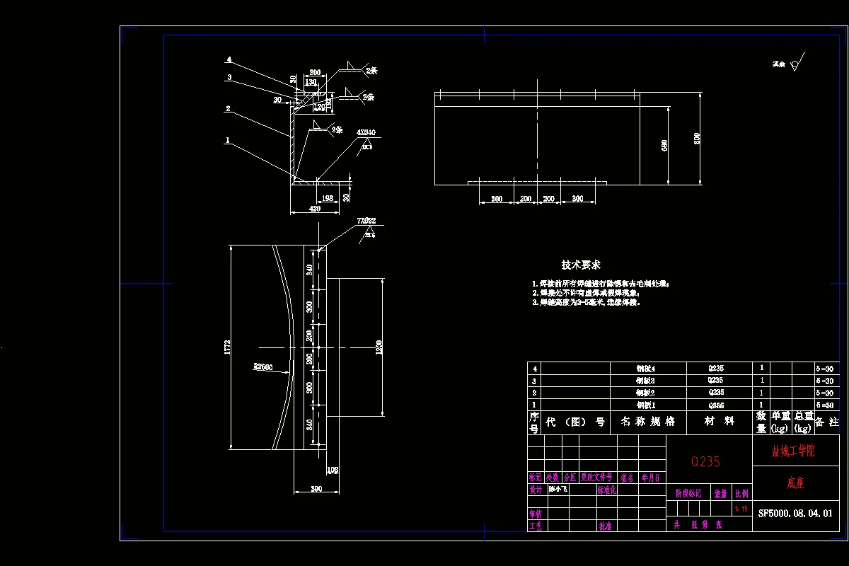
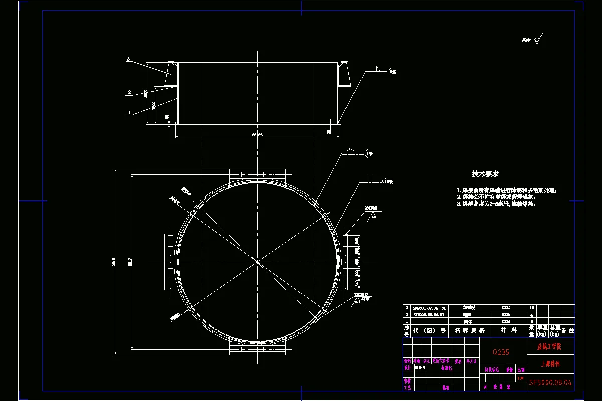
摘要:本课题是进行打散分级机的内外筒体及对原设计的改进,在筒体设计中我们先确定筒体的尺寸参数,然后对关键地方进行受力分析,在改进部分,我们对原设计进行了仔细的分析,指出了原设计的不足之处,然后对其进行合理的改进。打散分级机是九十年代初问世的新型料饼打散分选设备,集料饼打散与颗粒分级于一体,与挤压机配套使用,可以消除挤压粉碎机边缘漏斗和开停机过程中及正常工作时未被充分挤压的大颗粒对后续球磨系统产生不利的影响,以获得大幅度增产节能的效果。因为辊压机操作规程规定:设备启动时液压系统应处于卸压状态。所以,在辊压机启动过程中将有大量未经有效挤压的物料通过辊压机。这也是在打散分级机介入挤压粉磨工艺系统前的挤压预粉磨系统产量提高幅度不大且存在较大波动的重要原因。打散分级机利用离心冲击破碎原理对物料进行打散,利用惯性及空气动力学原理对散状物了实现分级。在挤压联合粉磨工艺系统中应用,可取得增产100%-200%,节约用电30%以上,研磨体消耗降低60%以上的效果。
关键词:辊压机;挤压粉磨工艺系统;打散分级机;
目录
1 前言 1
1.1本课题的来源、基本前提条件和技术要求 1
1.2本课题要解决的主要问题和设计总体思路 1
1.3预期的成果及其理论意义 1
2 总体方案论证 2
2.1 国内(外)发展概况及现状的介绍 2
2.2 打散分级机的工作原理 2
2.3 主要结构介绍 3
3 具体设计说明 4
3.1 原方案的筒体结构参数的设计 4
3.2 螺栓组联接的结构设计 5
3.3 螺栓联接的强度校核 6
3.4 钢板焊接方面的处理 8
3.5 原设计改进部分 9
3.5.1 方案的提出 9
3.5.2 改进的打散分级机主要尺寸的确定 10
3.5.3 风轮电机的选型 10
3.5.4 打散电机的选型 14
3.6 设备的安装要求 16
3.7 预期效果 17
4 结论 18
参考文献 19
致谢 20
附录 21
温馨提示:
1、题目前面的备注【字母数字编号】为本站整理分类的编号,与课题内容无关,请选题时忽视;
2、若题目上备注三维,则表示文件里包含三维源文件,由于三维组成零件数量较多,为保证预览截图的简洁性,本站将三维文件夹进行了打包。三维及CAD预览截图,均为本站电脑打开软件进行截图的,保证能够打开,下载原件超高清,下载后解压即可;
3、本站所有资源如无特殊说明,都需要本地电脑安装Office2007。图纸软件为AutoCAD,PROE,UG,SolidWorks,CATIA等;
4、本站所有图文资料仅供用户学习参考,不作为任何商用或其他用途;
5、本站不保证下载资源的准确性、安全性和完整性, 不包修改,不支持退换,同时也不承担用户因使用这些下载资源对自己和他人造成任何形式的伤害或损失;
6、 下载文件中如有侵权或不适当内容,请与我们联系,我们立即纠正。