

作品包括:
Word版说明书1份,共49页,约11000字
任务书一份
开题报告一份
外文翻译一份
文献综述一份
PPT答辩一份
CAD版本图纸,共7张

摘要
本次毕业设计是关于皮带输送机的设计。长距离带式输送机散装材料,具有较高的速度,自动连续作业的理想设备,广泛应用于电力、冶金、化工、煤炭、矿山、港口、食物和许多部门。随着工业的需求,带式输送机向长距离、高速度、大运量、大功率等方向发展,皮带输送机的动力学问题也越来越多。这需要系统带式输送机的动态特性,在设计阶段预测和优化输送机,使带式输送机在经济合理、技术可靠。首先对胶带输送机作了简单的概述;接着分析了带式输送机的工作原理和选择计算方法;然后根据这些规则根据一定的计算方法和参数的选择;然后输送机各主要零部件进行检验。普通带式输送机由六个主要部件组成:传动装置,并返回设备的尾架,张紧轮和皮带。最后简单的说明了输送机的安装与维护。
本次皮带运输机的设计,展示设计的一般过程,在选择设计工作的相对价值。
关键词:皮带输送机;倾斜式;双驱动;
目 录
摘要 I
Abstract II
目 录 III
1 前言 1
1.1 选题的意义 1
1.2 皮带输送机的国内外研究现状 1
2 带式运输机的设计计算 2
2.1 原始数据及工作条件 2
2.2 计算步骤 3
2.2.1 带宽的确定 3
2.2.2 输送带宽度的核算 5
2.3 圆周驱动力 5
2.3.1 计算公式 5
2.3.2 主要阻力计算 6
2.3.3 主要特种阻力计算 8
2.3.4 附加特种阻力计算 9
2.3.5 倾斜阻力计算 10
2.4 传动功率计算 11
2.4.1 传动轴功率( )计算 11
2.4.2 电动机功率计算 11
2.5 输送带张力计算 12
2.5.1 输送带不打滑条件校核 12
2.5.2 输送带下C=0.71垂度校核 13
2.5.3 各特性点张力计算 14
2.5.4 输送带强度计算 19
3驱动装置的选用与设计 21
3.1电机的选用 21
3.2 减速器的选用 21
3.3 联轴器 22
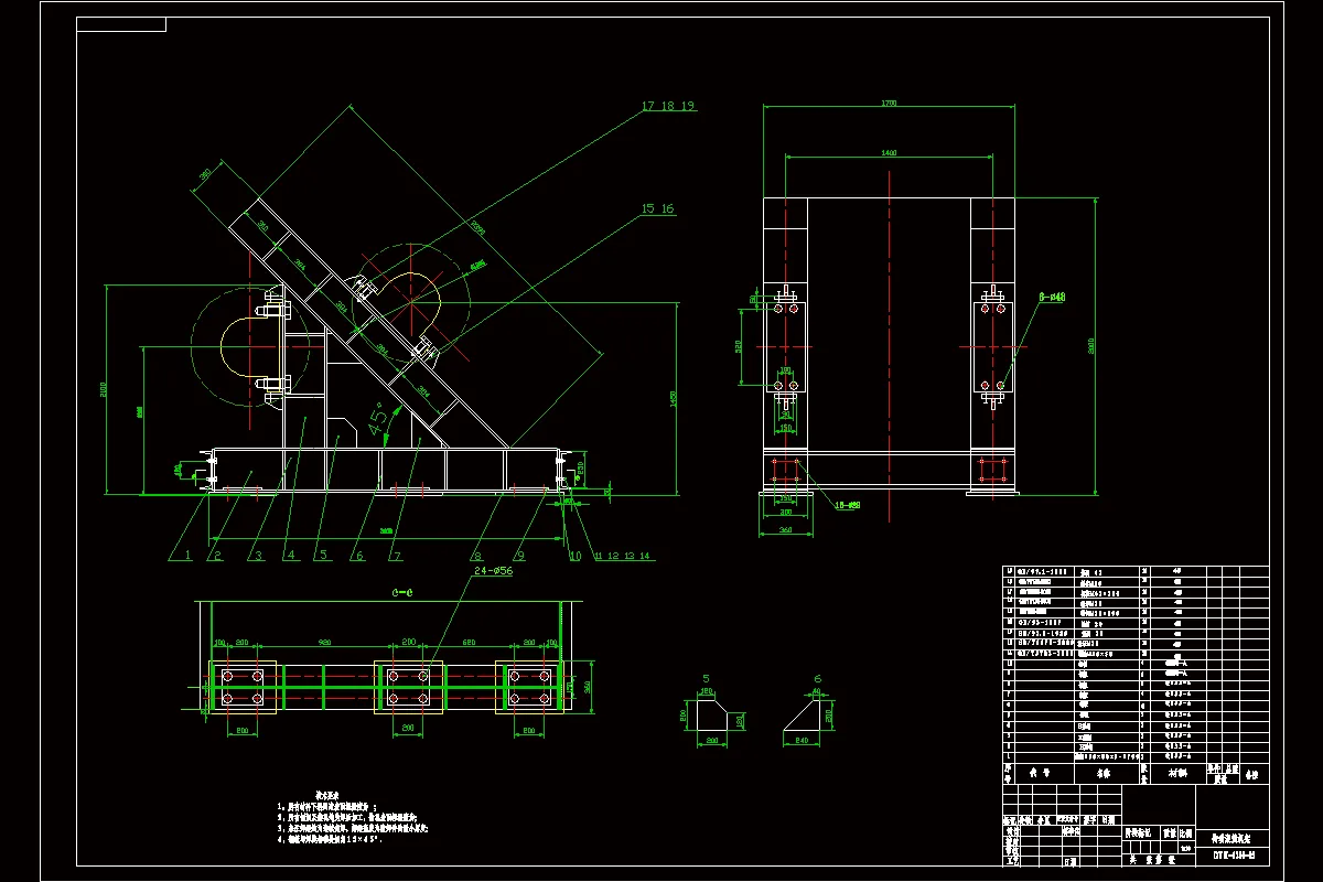
4带式输送机部件的选用 23
4.1托辊 23
4.1.1 托辊的作用与选型 23
4.1.2 托辊的校核 26
4.2 传动滚筒、改向滚筒合张力计算 28
4.2.1 改向滚筒合张力计算 28
4.2.2 传动滚筒合张力计算 28
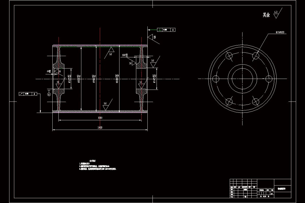
4.3 传动滚筒强度的验算与直径的确定 28
4.3.1传动滚筒结构 28
4.3.2传动滚筒轴的设计计算 29
5制动装置 34
5.1 制动装置的作用 34
5.1.1 制动装置的种类 34
5.1.2 制动装置的选型 34
5.2拉紧装置 35
5.2.1 拉紧装置行程 35
5.2.2 拉紧力与拉紧装置 35
6其他部件的选用 37
6.1 机架与中间架 37
6.1.1 机架 37
6.1.2 中间架 38
6.2 给料装置 38
6.2.1 对给料装置的基本要求 38
6.2.2 装料段拦板的布置及尺寸 39
6.3 卸料装置 39
6.4 清扫装置 39
6.5 头部漏斗 40
6.6 电气及安全保护装置 41
7 结 论 42
致 谢 43
参考文献 44
温馨提示:
1、题目前面的备注【字母数字编号】为本站整理分类的编号,与课题内容无关,请选题时忽视;
2、若题目上备注三维,则表示文件里包含三维源文件,由于三维组成零件数量较多,为保证预览截图的简洁性,本站将三维文件夹进行了打包。三维及CAD预览截图,均为本站电脑打开软件进行截图的,保证能够打开,下载原件超高清,下载后解压即可;
3、本站所有资源如无特殊说明,都需要本地电脑安装Office2007。图纸软件为AutoCAD,PROE,UG,SolidWorks,CATIA等;
4、本站所有图文资料仅供用户学习参考,不作为任何商用或其他用途;
5、本站不保证下载资源的准确性、安全性和完整性, 不包修改,不支持退换,同时也不承担用户因使用这些下载资源对自己和他人造成任何形式的伤害或损失;
6、 下载文件中如有侵权或不适当内容,请与我们联系,我们立即纠正。