

作品包括:
Word版说明书1份,共35页,约15000字
任务书一份
开题报告一份
CAD版本图纸,共9张

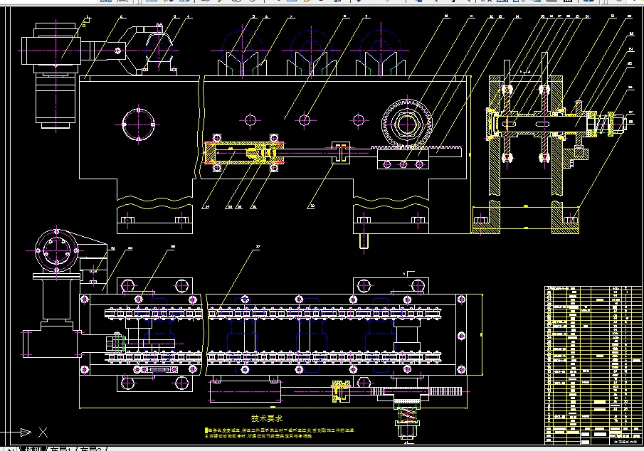
摘要:曲面印刷的主要产品为食品、化妆品、洗涤用品、油脂油料的外包装物。同时,也应用于一些饮用杯具和广告礼品的印刷中。曲面承印物的组成材料主要有金属、玻璃、陶瓷及Pp、PC等高分子材料随着现代科学技术的发展及制作工艺的日益完善,多种造型独特、圆正兼优的曲面体承印物随处可见,它给我们的生活提供了很多的方便并且美化着我们的视觉空间。其中包含的零部件有:手轮、墨斗、出墨钢辊、给墨辊、中间辊、上匀墨辊、下匀墨辊、大墨辊。墨辊箱内有给墨辊作往复摆动,把出墨钢辊上的油墨带至中间辊上,上下匀墨辊作轴向串动并回转。使传至大墨辊的油墨均匀,随后大墨辊将墨传至版辊。随着社会信息化及经济全球化的迅猛发展,人们的审美观念不断的进步与更新,对商业和包装印刷的要求越来越高,而联系也越来越紧密。在庞大的市场需求推动与先进的科学技术促进下,包装印刷技术以及包装印刷机械都在发生巨大的变化。
在设计时主要运用了Solidworks软件对印刷机传墨系统三维建模、装配、仿真,并且用Solidworks导出零件图与二维装配图。
关键词:曲面印刷;传墨系统; Solidworks;齿轮传动
目 录
摘要 I
Abstract II
目录 III
1 绪论 1
1.1 凸版曲面印刷技术的发展历程 1
1.2 曲面印刷简介 1
1.3 曲面印刷机的工作原理和结构分析 2
1.4 印刷工艺过程简述 3
1.5 Solidworks软件简介 3
2 墨辊箱的设计与结构分析 5
2.1 墨辊箱材料的选择 6
2.2 墨辊箱 7
2.3 设计技术要求 10
2.4 墨辊箱箱体的设计 10
3 墨辊箱内部零部件的设计 12
3.1 轴的设计 12
3.2 齿轮的选择与设计 14
3.2.1 齿轮材料的基本要求 14
3.2.2 齿轮材料及热处理 14
3.2.3 设计准则 14
3.2.4 部分齿轮外观图及其相关参数 15
3.3 墨辊结构分析 21
3.4 轴承的选择 23
3.5 螺钉的选择 26
3.6 键的选择 26
4 总结 27
参考文献 28
致谢 30
附录A 31
温馨提示:
1、题目前面的备注【字母数字编号】为本站整理分类的编号,与课题内容无关,请选题时忽视;
2、若题目上备注三维,则表示文件里包含三维源文件,由于三维组成零件数量较多,为保证预览截图的简洁性,本站将三维文件夹进行了打包。三维及CAD预览截图,均为本站电脑打开软件进行截图的,保证能够打开,下载原件超高清,下载后解压即可;
3、本站所有资源如无特殊说明,都需要本地电脑安装Office2007。图纸软件为AutoCAD,PROE,UG,SolidWorks,CATIA等;
4、本站所有图文资料仅供用户学习参考,不作为任何商用或其他用途;
5、本站不保证下载资源的准确性、安全性和完整性, 不包修改,不支持退换,同时也不承担用户因使用这些下载资源对自己和他人造成任何形式的伤害或损失;
6、 下载文件中如有侵权或不适当内容,请与我们联系,我们立即纠正。