

作品包括:
Word版说明书1份,共37页,约16000字
CAD版本图纸,共5张
SW三维图一套

摘 要
广告清洗机是一种高效清除街边张贴小广告的清洁设备。传统广告清洁设备多集中在清洗张贴于平直墙面上的小广告,而对于非平直墙面却难以清洗,而且传统广告清洗机清洗功能单一、在清洗过程中由于对清洗下来的碎屑缺乏有效处理易造成二次污染,综合各种使用需求对新型多功能广告清洗机结构设计提出了更高的要求。清洗机结构设计主要涵盖两个方面,第一个方面是满足清洗机原有设计功能的基础上进行结构设计,二是对清洗机最佳清洁率进行研究。本次课题设计的广告清洁机根据实地调查、相关数据统计得到了广告清洗机的设计需求,通过对广告清洗机的设计需求及功能需求进行分析得到了总体设计方案,通过三维软件进行结构设计建模,并针对清洗机关键受力部件进行受力分析。通过对其行进机构进行结构设计与分析。采用环抱式爬行机构。环抱式爬行机构由两组履带式行进机构组成。可对任意目标广告清洁目标进行攀爬清洁作业。通过本次课题设计的广告机。希望为未来市政清洁及相关清洁工作作出贡献。减轻人工提升效率。
关键词:广告清洁机,结构设计,行进机构,环抱式
目 录
摘 要 I
ABSTRACT II
1 引言 1
1.1课题背景及意义 1
1.2国内外广告清洁机发展研究 1
1.2.1国外广告清洁机发展研究 1
1.3主要研究内容 4
1.4 研究方法 4
2 广告清洁清洗机攀爬机构方案设计 5
2.1 基本要求 5
2.2攀爬方案的选择与分析 5
2.2.1攀爬方案方案一 5
2.2.1攀爬方案方案二 6
2.3.1方案选择 6
2.4 运动分析 6
2.5夹紧装置设计 7
2.6总方案设计 8
3部件设计 9
3.1 机械手爪设计 9
3.2机械手爪力学分析 10
3.3 曲柄滑块机构设计 11
3.3.1曲柄滑块速度分析 12
3.4 连杆的受力分析 12
3.5 移动凸轮的设计 13
3.6 盘形凸轮设计 14
4 传动系统分析 15
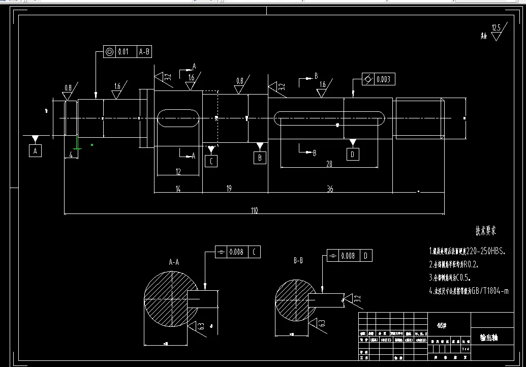
4.1轴的设计 15
4.1.1联轴器的选择 15
4.1.2轴承选择 16
4.1.3确定轴的结构与尺寸 16
4.1.4轴的校核 18
4.2 轴承的校核 23
4.2.1轴承的径向载荷 23
4.2.2 轴承的轴向力校核 23
4.4.3轴承的径向当量载荷 24
5 控制原理分析 26
5.1运动状态分析 26
5.2 变频器概述 26
5.3 变频器工作原理 26
总 结 30
参考文献 31
致 谢33
温馨提示:
1、题目前面的备注【字母数字编号】为本站整理分类的编号,与课题内容无关,请选题时忽视;
2、若题目上备注三维,则表示文件里包含三维源文件,由于三维组成零件数量较多,为保证预览截图的简洁性,本站将三维文件夹进行了打包。三维及CAD预览截图,均为本站电脑打开软件进行截图的,保证能够打开,下载原件超高清,下载后解压即可;
3、本站所有资源如无特殊说明,都需要本地电脑安装Office2007。图纸软件为AutoCAD,PROE,UG,SolidWorks,CATIA等;
4、本站所有图文资料仅供用户学习参考,不作为任何商用或其他用途;
5、本站不保证下载资源的准确性、安全性和完整性, 不包修改,不支持退换,同时也不承担用户因使用这些下载资源对自己和他人造成任何形式的伤害或损失;
6、 下载文件中如有侵权或不适当内容,请与我们联系,我们立即纠正。