

作品包括:
Word版说明书1份,共30页,约16000字
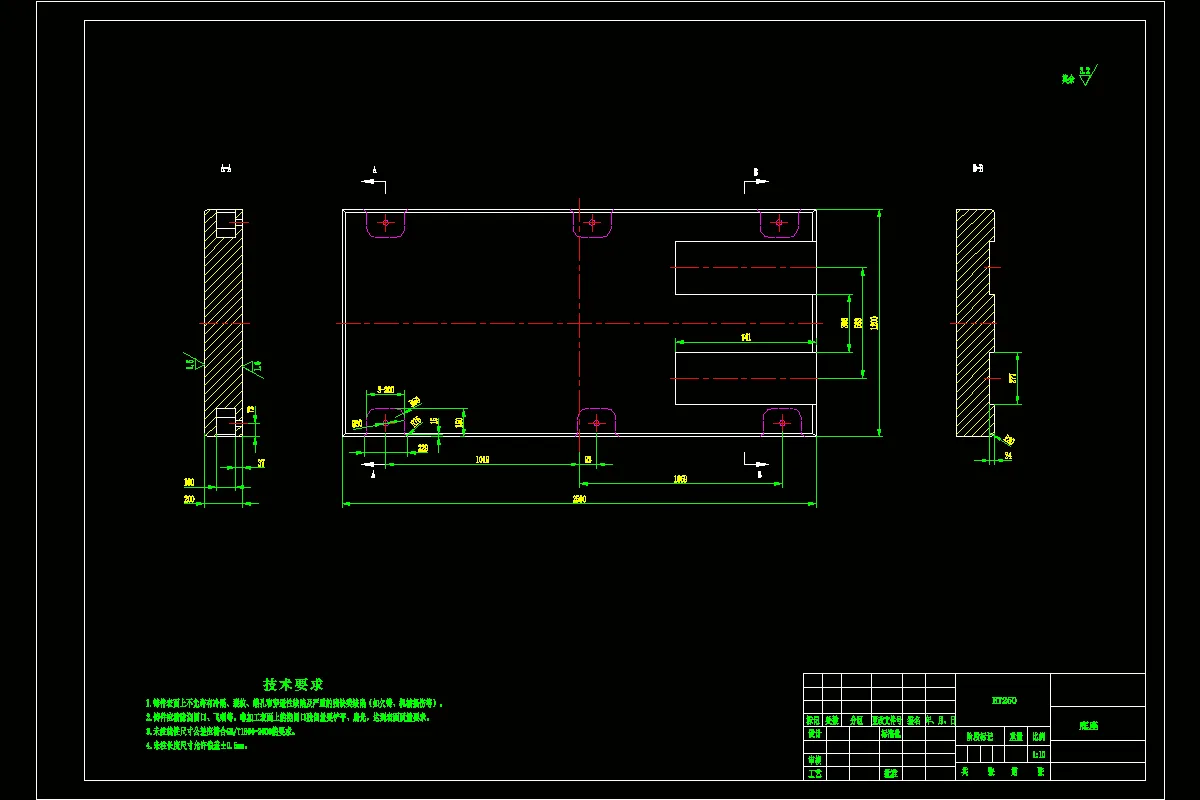
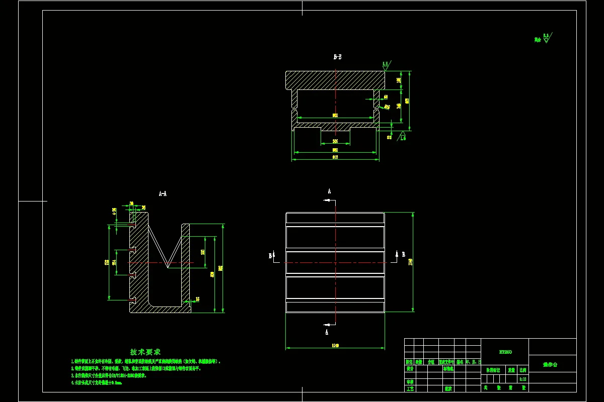
CAD版本图纸,共14张
SW三维图一套

摘 要
当前,机械冲床这些年来因为机器结构学科的兴起不仅是因为电子信息技术的大幅度发展,还因为这种成型机器结构确实可以给一些工程人员带来极大的便利。国外对于机械冲床的研究与设计在上世纪就已经开始,机械冲床的广泛应用使得科研人员能够很方便的帮助操作者做一些繁琐且多次重复的动作,比如对多达上万的模具进行冲压,因此我国是非常有必要进行机械冲床机构的研究。本课题正式基于这样的背景进行机械冲床机构的研究与分析。
本文主要研究的是可以对模具进行快速冲压成型的机械冲床机构,机械冲床机构采用电机实现驱动结构。本文首先分析了机械冲床机构常用传动结构的优缺点,并由此确定了机械冲床机构的整体设计方案,包括电机、减速器、皮带结构、齿轮机构、连杆等。紧接着本文详细分析了驱动结构、皮带结构、齿轮机构和连杆的参数设计并进行强度校核。最后,本文对机械冲床机构这一课题进行了总结。
本文所做的关于机械冲床机构的理论分析与研究可以用于日后的进一步研究,对于提高当下我国机械冲床机构的设计与制造水平有着一定的积极意义。
关键词:机械冲床 电机 皮带 齿轮 连杆
目 录
摘 要 I
Abstract II
第1章 绪论 1
1.1 研究课题的背景与意义 1
1.2研究课题的国内外发展状况 2
1.3工业机械冲床研发的未来趋势 5
第2章 总体设计方案 6
2.1驱动结构 6
2.2带传动 7
2.3 齿轮结构 8
2.4连杆机构 9
第3章 主要零部件设计 11
3.1 电机的选择 11
3.2 飞轮的转动惯量与尺寸计算 12
3.3 V带传动设计与计算 13
3.3.1 V带的型号的确定 13
3.3.3验算带的速度 14
3.3.4确定中心距a和V带基准长度Ld 14
3.3.5计算小轮包角 15
3.3.6确定V带根数Z 15
3.3.7初拉力F0的确定 15
3.3.8计算作用在轴上的压力FQ 16
3.3.9小带轮结构设计 16
3.4齿轮传动结构 16
3.5飞轮滑块尺寸确定及运动分析 18
3.6 轴的设计计算 20
第4章 项目管理及环境的可持续发展 21
4.1 机械冲床的项目时间分配 21
4.2 机械冲床项目的成本预估 21
4.3 机械冲床项目的质量规划与监控 21
4.4 机械冲床项目的风险预测 22
4.5 机械冲床项目的三废处理办法 22
4.6 机械冲床项目的环境保护 22
4.7 机械冲床项目的可持续发展 22
结 论 23
致 谢 24
参考文献 25
温馨提示:
1、题目前面的备注【字母数字编号】为本站整理分类的编号,与课题内容无关,请选题时忽视;
2、若题目上备注三维,则表示文件里包含三维源文件,由于三维组成零件数量较多,为保证预览截图的简洁性,本站将三维文件夹进行了打包。三维及CAD预览截图,均为本站电脑打开软件进行截图的,保证能够打开,下载原件超高清,下载后解压即可;
3、本站所有资源如无特殊说明,都需要本地电脑安装Office2007。图纸软件为AutoCAD,PROE,UG,SolidWorks,CATIA等;
4、本站所有图文资料仅供用户学习参考,不作为任何商用或其他用途;
5、本站不保证下载资源的准确性、安全性和完整性, 不包修改,不支持退换,同时也不承担用户因使用这些下载资源对自己和他人造成任何形式的伤害或损失;
6、 下载文件中如有侵权或不适当内容,请与我们联系,我们立即纠正。