

作品包括:
说明书1份,共45页,约14000字左右
CAD版本本图纸,共8张
摘 要
针对太阳能热水器存在着受季节和天气的影响、提供的热水量不够、不能实现全年正常使用的不足,设计了一种基于PLC控制的太阳能热水器。该控制器是在现有太阳能热水器的基础上开发的,该系统利用PLC实时监测水温及水位。用水时,若日晒水温达不到设定值,单片机控制电加热器自动补温至设定温度,无须人为控制加热时间;缺水时能自动上水到设定值,不必全部加满。在无光照阴雨天或寒冷季节进行辅助电加热,且温度可由用户设置。
本文利用PLC对太阳能热水器的自动控制系统进行设计,通过使用PLC,可以大大减少了系统对其它元器件的使用,使系统接线简单、检修维护方便快捷、可靠性提高,增进了系统的先进性。
关键词:影响 太阳能热水器 控制系统 PLC
目 录
摘 要 I
目 录 II
1 绪 论 1
2 本课题研究的目的、意义 1
3 国内外发展现状 1
3 系统总体设计 3
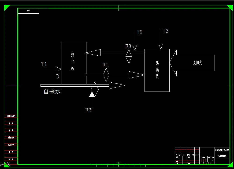
3.1 系统原理框图 3
3.2 控制系统的组成及工作原理 4
4 硬件功能模块的设计 7
4.1 单片机系统 7
4.2 水温测量电路 8
4.3 水位测量电路 10
4.4 实时时钟电路 12
4.5 显示电路 13
4.6 电源电路 15
4.7 键盘电路 16
4.8 自动上水和报警电路 18
4.9 辅助电加热电路 19
5 软件部分的设计 20
5.1 软件的总体设计 20
5.2 温度检测 20
5.3 实时时钟 20
6 结束语 24
致 谢 25
参考文献 26
附 录 27
附录1:源程序 27
附录2:总原理图 41
温馨提示:
1、题目前面的备注【字母数字编号】为本站整理分类的编号,与课题内容无关,请选题时忽视;
2、若题目上备注三维,则表示文件里包含三维源文件,由于三维组成零件数量较多,为保证预览截图的简洁性,本站将三维文件夹进行了打包。三维及CAD预览截图,均为本站电脑打开软件进行截图的,保证能够打开,下载原件超高清,下载后解压即可;
3、本站所有资源如无特殊说明,都需要本地电脑安装Office2007。图纸软件为AutoCAD,PROE,UG,SolidWorks,CATIA等;
4、本站所有图文资料仅供用户学习参考,不作为任何商用或其他用途;
5、本站不保证下载资源的准确性、安全性和完整性, 不包修改,不支持退换,同时也不承担用户因使用这些下载资源对自己和他人造成任何形式的伤害或损失;
6、 下载文件中如有侵权或不适当内容,请与我们联系,我们立即纠正。