

作品包括:
Word版说明书1份,共43页,约16000字
CAD版本图纸,共4张

摘要
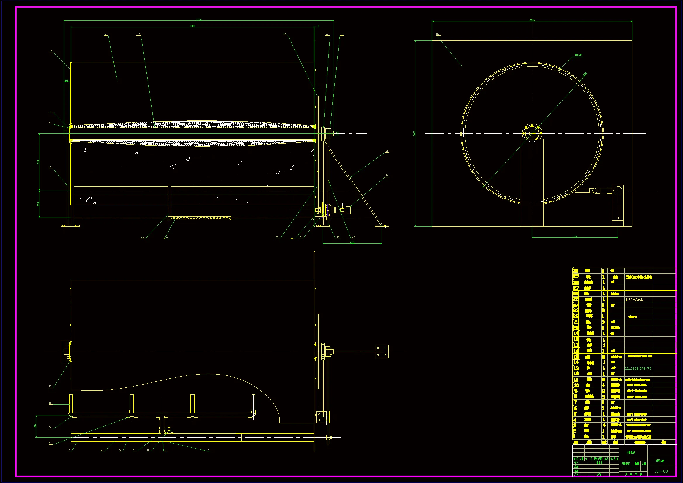
硫磺泵是硫磺制酸过程中必不可少的一个动力设备。经常用离心泵来进行设计,具有结构简单、效率高、经济性良好的特点。因此,在现代硫磺制酸过程中具有广泛应用。
本次设计依据给定工况条件,按照初始任务书进行了总体的方案设计,完成电机选型、叶轮选型设计及其相关校核。基本可以保证硫磺泵在工业应用中的可靠运行。
温馨提示:
1、题目前面的备注【字母数字编号】为本站整理分类的编号,与课题内容无关,请选题时忽视;
2、若题目上备注三维,则表示文件里包含三维源文件,由于三维组成零件数量较多,为保证预览截图的简洁性,本站将三维文件夹进行了打包。三维及CAD预览截图,均为本站电脑打开软件进行截图的,保证能够打开,下载原件超高清,下载后解压即可;
3、本站所有资源如无特殊说明,都需要本地电脑安装Office2007。图纸软件为AutoCAD,PROE,UG,SolidWorks,CATIA等;
4、本站所有图文资料仅供用户学习参考,不作为任何商用或其他用途;
5、本站不保证下载资源的准确性、安全性和完整性, 不包修改,不支持退换,同时也不承担用户因使用这些下载资源对自己和他人造成任何形式的伤害或损失;
6、 下载文件中如有侵权或不适当内容,请与我们联系,我们立即纠正。