

作品包括:
Word版说明书1份,共42页,约14000字
中期报告一份
开题报告一份
CAD版本图纸,共7张
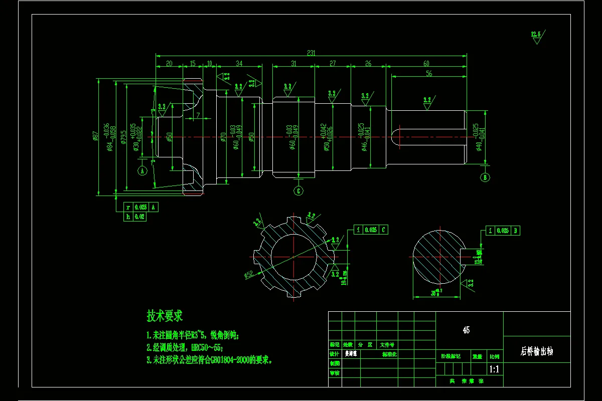
![1716442688727302.webp 0S`15LBC3]N83UN46~THR{3.webp](/static/upload/image/20240523/1716442688727302.webp)
摘要
在多轴驱动的汽车上,为了将变速器输出的动力分配到各个驱动桥,均装有分动器。分动器的基本结构也是一个齿轮传动系统。其输入轴直接或通过万向传动装置与变速器第二轴相连,其输出轴则有若干个,分别经万向传动装置与各驱动桥连接。为增加传动系的最大传动比及档数,目前绝大多数越野车都装有两档分动器,使之兼起副变速器的作用。
本课题针对哈弗H3越野汽车的分动器进行设计,本文首先分析了分动器的结构原理以及对比国内外分动器研究成果。接着提出满足哈弗H3越野汽车功能的分动器设计方案,哈弗H3越野汽车有一个输入轴两个输出轴,输入轴通过万向轴与变速器输出轴连接,两个输出轴分别与前后桥驱动轴连接起到动力分配和减速增矩的作用。本文对分动器组成的齿轮、轴、同步器分别进行了详细设计,对今后的分动器设计具有很好的指导意义。
关键词:分动器;齿轮;轴;同步器
目录
1 绪论 1
1.1分动器简介 1
1.2课题研究背景及意义 1
1.3国内外相关研究现况 2
1.4 设计要求 3
1.4.1设计参数 3
1.4.2 设计基本要求 4
2 总体设计 5
2.1分动器结构与工作原理分析 5
2.2 传动方案 5
2.3齿轮的布置 6
2.4换挡结构形式的选择 7
2.5 挡数及传动比的确定 8
2.6 中心距A确定 9
3 齿轮的设计及校核 11
3.1 基本参数的选择 11
3.1.1 模数的确定 11
3.1.2 压力角 11
3.1.3 螺旋角 的确定 11
3.1.4 齿宽 12
3.1.5 齿顶高系数 12
3.2 各档齿轮齿数的确定 12
3.2.1 低速档齿轮副齿数的确定 12
3.2.2 对中心距进行修正 13
3.2.3 确定其他齿轮的齿数 13
3.3 齿轮的变位 14
3.4 齿轮的校核 15
3.4.1 计算扭矩T的确定 15
3.4.2 轮齿的弯曲应力 17
3.4.3 轮齿接触应力 19
4 轴及附件的设计 22
4.1轴的结构形式 22
4.2 轴的尺寸初选 22
4.3 轴的结构设计 23
4.4轴的强度计算 24
4.4.1 轴的受力计算 24
4.4.2 轴的刚度计算 25
4.4.3 轴的强度计算 26
4.5 同步器设计 29
4.5.1 同步器的功用及分类 29
4.5.2同步器主要尺寸的确定 29
4.5.3 主要参数的确定 30
4.5.4 啮合套的设计 31
4.6箱体的设计 31
5 运动仿真 32
5.1低速四驱状态的模拟 32
5.2高速四驱状态的模拟 33
6 结 论 35
参考文献 36
致 谢 37
温馨提示:
1、题目前面的备注【字母数字编号】为本站整理分类的编号,与课题内容无关,请选题时忽视;
2、若题目上备注三维,则表示文件里包含三维源文件,由于三维组成零件数量较多,为保证预览截图的简洁性,本站将三维文件夹进行了打包。三维及CAD预览截图,均为本站电脑打开软件进行截图的,保证能够打开,下载原件超高清,下载后解压即可;
3、本站所有资源如无特殊说明,都需要本地电脑安装Office2007。图纸软件为AutoCAD,PROE,UG,SolidWorks,CATIA等;
4、本站所有图文资料仅供用户学习参考,不作为任何商用或其他用途;
5、本站不保证下载资源的准确性、安全性和完整性, 不包修改,不支持退换,同时也不承担用户因使用这些下载资源对自己和他人造成任何形式的伤害或损失;
6、 下载文件中如有侵权或不适当内容,请与我们联系,我们立即纠正。