

作品包括:
Word版说明书1份,共41页,约15000字
CAD版本图纸,共10张
SW三维图一套
![1711171180416612.webp (4)LXANF{B)]HSVCB%RLOLE.webp](/static/upload/image/20240323/1711171180416612.webp)
摘 要
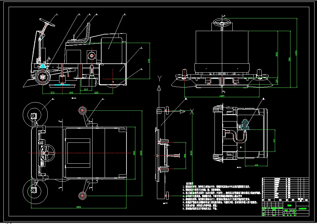
自动洗地机,可用于工厂、学校及车站等地的清扫工作,大大的节约了人工。内部结构详细,依现有产品测绘并进行了部分改进,由其是前刷位置,这是主要工作部分之一,由原的固定架改装成了活动架,可以对清扫宽度进行调整,地刷部分对上料板角度进行了调整,从而使进料更干净。
本次毕业设计,通过查找资料,对全自动洗地车的国内外技术发展情况进行综述。参考现有的自动清洁机械,基于扫地车设计改进新型的全自动洗地车。利用Solidworks三维软件建立全自动洗地车三维模型,按照机械制图国家标准绘制主要部件、零件的图纸。对相关机构进行进行计算,强度校核,从而优化结构。
本文设计以现有洗地设备为基础,寻找成本更低、性能更好的新产品,在设计过程中应注意正面的地刷位置、侧面看地刷的排列、后面的垃圾箱、内部结构安排方法和内部结构安装方法及部分带轮安装位置。
关键词:自动洗地机;机构设计;结构设计;Solidworsk;地面
目录
自动洗地机的结构设计 I
摘 要 I
Structure design of automatic floor washing machine II
Abstract II
第一章 绪 论 1
1.1 研究背景 1
1.2 国内外研究现状 1
1.2.1 国外研究现状 1
1.2.2 国内研究现状 4
1.3 发展趋势 5
1.4 本文研究的目的和意义 6
第二章 自动洗地机的方案设计 8
2.1 自动洗地机的工作内容和要求 8
2.2 自动洗地机的系统组成 8
2.2.1 传感器系统 8
2.2.2 路径规划技术 9
2.2.3 吸干技术 9
2.2.4 电源技术 9
2.3 自动洗地机的工作原理 10
2.4 自动洗地机机械系统设计 11
2.4.1 移动机构的设计 11
2.4.2 控制系统的设计 12
第三章 自动洗地机总体设计 13
3.1 洗地机外形设计 13
3.2 清洗机的行走机构设计 13
3.3 清洗机构的传动设计 13
3.4 吸水扒机构设计 15
3.5 吸水扒升降机构设计 16
3.6 水循环系统设计 16
3.7 清洗机边刷机构设计 17
第四章 具体计算及选型 18
4.1 刷洗机构电机的选择 18
4.1.1 电动机类型的选择 18
4.1.2 电动机功率选择 18
4.1.3 确定电动机转速: 18
4.2 轴的设计计算 19
4.2.1 传动布局 19
4.2.2 连接件的材料选择 19
4.2.3 初步确定最小直径 19
4.2.4 轴的结构设计 20
4.2.5 键的校核 20
4.3 关键零部件的设计 21
4.3.1 吸水扒电机选择 21
4.3.2 自动清地机电池的选用 22
4.3.3 洗地机支撑轮选择 23
4.3.4 洗地机电磁阀选用 23
4.3.5 洗地机壳材料选用及壁厚设计 23
4.4 边刷驱动液压装置的选型 24
第五章 基于Solidworks的建模与分析 26
5.1 Solidworks建模简介 26
5.2 自动洗地机总装图 26
5.3 边刷支架的有限元分析 27
5.4 边刷支架的模态分析 30
5.4.1 模态分析理论基础 30
5.4.2 边刷支架模态分析 30
5.5 本章小结 31
总结与展望 32
致 谢 34
参考文献 35
温馨提示:
1、题目前面的备注【字母数字编号】为本站整理分类的编号,与课题内容无关,请选题时忽视;
2、若题目上备注三维,则表示文件里包含三维源文件,由于三维组成零件数量较多,为保证预览截图的简洁性,本站将三维文件夹进行了打包。三维及CAD预览截图,均为本站电脑打开软件进行截图的,保证能够打开,下载原件超高清,下载后解压即可;
3、本站所有资源如无特殊说明,都需要本地电脑安装Office2007。图纸软件为AutoCAD,PROE,UG,SolidWorks,CATIA等;
4、本站所有图文资料仅供用户学习参考,不作为任何商用或其他用途;
5、本站不保证下载资源的准确性、安全性和完整性, 不包修改,不支持退换,同时也不承担用户因使用这些下载资源对自己和他人造成任何形式的伤害或损失;
6、 下载文件中如有侵权或不适当内容,请与我们联系,我们立即纠正。