

作品包括:
Word版说明书1份,共35页,约10000字
开题报告一份
任务书一份
外文翻译一份
CAD版本图纸,共10张

摘 要
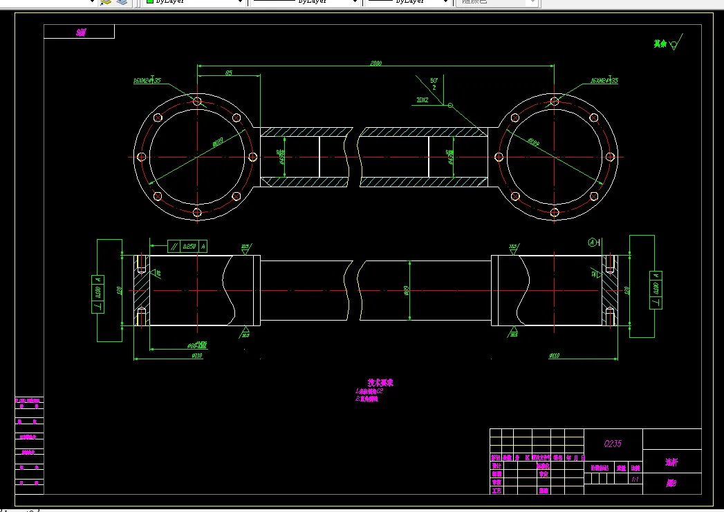
随着抽油机的不断进步和发展,针对目前国内普遍使用的游梁式抽油机冲程长度有限、体积大,改进费用高,操作维修不便等问题。本课题设计的滑轮式抽油机是一种利用滑轮组增大冲程的无游梁式抽油机,使其能够满足高技术,高可靠性,高适应性,低能耗,精确平衡方向发展的要求。抽油机的设计参数如下:悬点最大载荷10kN,冲程4.2m,冲次6次/min。
本次所设计的滑轮式抽油机原动力由Y200L-8型三相异步电动机提供;经过带传动和减速器减速后来实现冲次6次/min,利用曲柄连杆机构将减速器低速轴的转动转化为配重箱的上下移动;配重箱上大、小卷筒随配重箱移动并绕卷筒轴转动,可以实现大卷筒上钢丝绳的行程为配重箱行程的2.5倍,即滑轮组2.5倍增程;大卷筒上的钢丝绳绕过天轮后与悬绳器连接,带动抽油杆上下移动。
改进后的抽油机具有结构简单、质量轻、耗能少、冲次少、长冲程、悬点加速度变化小、惯性载荷小、运行平稳、减速器输出扭矩小、易于安装、维护使用方便等优点,能够满足抽油机一年365天无人看守连续工作的目的。
关键词:滑轮式抽油机 滑轮组增倍原理 长冲程 无游梁
目录
摘 要 I
ABSTRACT II
目录 III
第一章 绪论 1
1.1课题的背景 1
1.2发展趋势 1
1.3课题的目的意义 2
第二章 抽油机的总体设计方案 3
2.1 抽油机的主要设计技术指标与参数 3
2.2 抽油机的总体方案设计 3
2.2.1 钢丝绳a直径的计算与选择 3
2.2.2天轮和小卷筒名义直径的初步确定 4
2.2.3曲柄、连杆尺寸的初步确定 6
2.2.4各钢丝绳长度的计算 6
2.2.5整体结构受力分析 7
2.2.6 电动机的选择 8
2.2.7 抽油机的总体设计方案 8
第三章 天轮和卷筒的设计 10
3.1 天轮轴的设计与计算 10
3.2 天轮轴承的选择计算 11
3.3天轮的设计与计算 12
3.4卷筒轴的设计与计算 12
3.5卷筒轴轴承的选择计算 13
3.6卷筒的设计与计算 14
3.6.1 小卷筒几何尺寸的计算 15
3.6.2 大卷筒结构的设计计算 16
第四章 曲柄连杆部分的设计与计算 17
4.1 连杆部分的设计与计算 17
4.1.1 连杆轴的设计与计算 17
4.1.2 连杆轴轴承的选择与计算 18
4.1.3 无缝钢管的选择与计算 19
4.1.4 连杆的具体结构设计 21
4.2曲柄部分的设计与计算 21
4.2.1 曲柄轴的设计计算 21
4.2.2 曲柄具体机构的设计 22
第五章 主传动部分的设计与计算 23
5.1联轴器的选择 23
结论 28
参考文献 29
致 谢 32
温馨提示:
1、题目前面的备注【字母数字编号】为本站整理分类的编号,与课题内容无关,请选题时忽视;
2、若题目上备注三维,则表示文件里包含三维源文件,由于三维组成零件数量较多,为保证预览截图的简洁性,本站将三维文件夹进行了打包。三维及CAD预览截图,均为本站电脑打开软件进行截图的,保证能够打开,下载原件超高清,下载后解压即可;
3、本站所有资源如无特殊说明,都需要本地电脑安装Office2007。图纸软件为AutoCAD,PROE,UG,SolidWorks,CATIA等;
4、本站所有图文资料仅供用户学习参考,不作为任何商用或其他用途;
5、本站不保证下载资源的准确性、安全性和完整性, 不包修改,不支持退换,同时也不承担用户因使用这些下载资源对自己和他人造成任何形式的伤害或损失;
6、 下载文件中如有侵权或不适当内容,请与我们联系,我们立即纠正。