

作品包括:
Word版说明书1份,共17页,约9900字
任务书一份
开题报告一份
CAD版本图纸,共9张
SW三维图一套

目 录
1 绪论 1
1.1绿篱修剪机的发展 1
1.2 绿篱修剪机械的研究应用现状 1
1.2.1国内研究现状分析 1
1.2.2国外研究现状分析 2
1.3本课题需要重点研究的、关键的问题及解决的思路 2
1.3.1设计所设计的任务要求 2
1.3.2设计重点研究的内容 2
1.3.3存在问题及解决思路 2
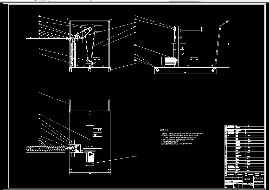
2绿篱修剪机总体设计 2
2.1结构组成 2
2.2工作原理 3
2.2.2工作过程 4
3绿篱修剪机的零部件设计 4
3.1 动力系统 4
3.2 确定电动机的功率 4
3.2.1 确定电动机的功率 4
3.3.1 选择链轮齿数Z1、Z2 5
3.3.2 确定链条节距p 5
3.3.3 确定链长L及中心距 6
3.4 带及带轮的设计 8
3.4.1 V带的选择 8
3.4.2 设计功率 8
3.4.3 选定带型 8
3.4.4 带轮的基准直径 9
3.4.5 验算带速 9
3.4.6 初定轴间距 9
3.4.7 V带的基准长度 9
3.4.9 求V带根数 9
3.4.10 单根V带的预紧力 10
3.4.11 压轴力 10
3.5轴及轴承的设计 10
3.5.1主轴设计 10
3.5.2 轴上零件的定位 11
3.5.3 选择材料,决定最小直径 11
3.5.4 轴的校核 11
3.5.5 轴承的选择 12
3.5.3.1 轴承的组成: 12
3.5.3.2 滚动轴承的作用 12
3.5.3.3 轴承的选择 12
4其他零部件 13
4.1 刀片 13
4.2 手动式液压 13
4.2.1 液压缸 13
4.2.2 液压缸的结构 13
4.3 滑块与曲柄连杆 13
4.4 座位装配 14
4.5支撑架及其底座的设计 14
5 结论 14
致 谢 16
参 考 文 献 17
温馨提示:
1、题目前面的备注【字母数字编号】为本站整理分类的编号,与课题内容无关,请选题时忽视;
2、若题目上备注三维,则表示文件里包含三维源文件,由于三维组成零件数量较多,为保证预览截图的简洁性,本站将三维文件夹进行了打包。三维及CAD预览截图,均为本站电脑打开软件进行截图的,保证能够打开,下载原件超高清,下载后解压即可;
3、本站所有资源如无特殊说明,都需要本地电脑安装Office2007。图纸软件为AutoCAD,PROE,UG,SolidWorks,CATIA等;
4、本站所有图文资料仅供用户学习参考,不作为任何商用或其他用途;
5、本站不保证下载资源的准确性、安全性和完整性, 不包修改,不支持退换,同时也不承担用户因使用这些下载资源对自己和他人造成任何形式的伤害或损失;
6、 下载文件中如有侵权或不适当内容,请与我们联系,我们立即纠正。