

作品包括:
Word版说明书1份,共63页,约15000字
外文翻译一份
CAD版本图纸,共5张
![1717591180118659.webp [{6XTU38XW($]QE7ZS23RCV.webp](/static/upload/image/20240605/1717591180118659.webp)
摘要
多层立体车库是利用较少的空间为一般车辆提供大量停车位置和安全储存的设施。随着城市里私家车数量的增加,停车问题在大中城市普遍存在。由于多层立体车具有可以充分的利用空间资源,充分经变成了应对大城市里的静态交通问题的重要对策之一。 本文的利用地理优势,最大化增加停车数量之优点。现在已在深入分析了世界各国的停车库的发展状况和未来的趋势之后,以相对来说使用比较方便容易普及的升降横移型立体车库本文的讨论目标,选择三乘三,七车位式车库结构为对象,并且在这个过程中多方面分析了立体车库的制造运行成本和运行过程中的安全与否这两个因素。
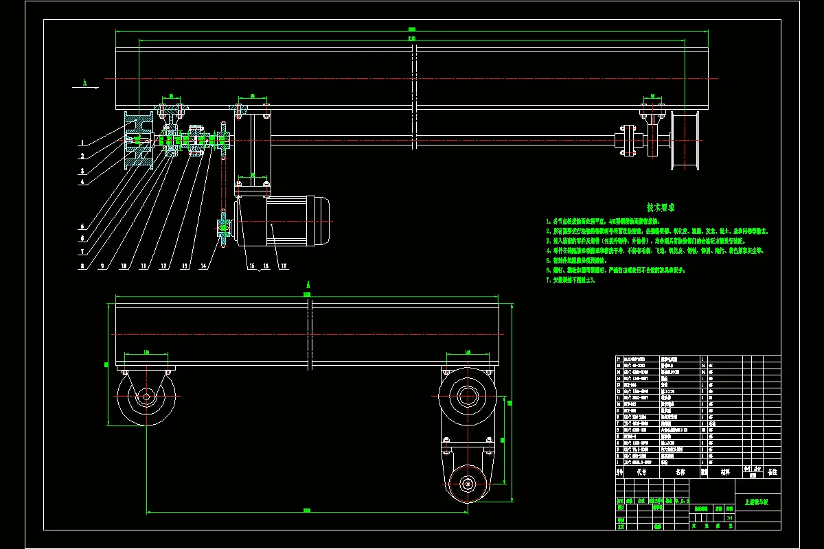
文中具体说明了升降横移式多层立体车库的种类还有各自的优缺点,运用了提升和移动实体车库力学理论的运行原理,对车库所运用的机械结构进行了综合分析,包括框架结构的横向运动型停车设备强度、轴向和横向传动系统、电梯驱动系统的强度和轴向强度等。
由于要使这种多层立体车库达到实际应用的目的,文中根据机械停车设备的实际情况制定了一般的安全标准。以确保车库运行过程中不会出现安全事故,然后车库就可以安全稳定的投入到实际使用中去。
关键词:立体车库,钢结构,驱动,系统,强度,安全
目录
第1章 绪论 1
1.1 课题的背景和意义 1
1.2 多层立体停车库的发展概况 3
1.3 立体停车库分类及各自优缺点 5
1.3.1 立体停车库的分类 5
1.3.2 立体车库的优点 8
1.4 研究升降横移式立体停车库的意义 9
1.5 升降横移式车库的工作原理 10
1.6 升降横移式库机械部分部件结构和功能 11
第2章 总体设计方案 12
2.1 总体设计方案 12
2.1.1 总体布局 13
2.1.2 驱动机构的设计与选择 13
2.1.3 提升方式的设计与选择 13
2.2 传动方案的设计 14
2.3 传动方案的选择 16
第3章 主框架部分 18
3.1 钢结构形式的选择 18
3.2 钢结构部分材料的选择 18
第4章 升降传动系统设计 20
4.1 升降电动机型号的选择 21
4.2 升降链传动的设计 23
4.2.1 链轮齿数 、 的选择 24
4.2.2 链条链节数Lp的确定 24
4.2.3 单排链所能传递的功率 及链节距P的计算 24
4.2.4 链实际长度 L及中心距 的确定 25
4.2.5 链速的计算 25
4.2.6 轴上的压轴力Q的计算 25
4.2.7 按静强度校核链条 25
4.2.8 润滑方式的选择 27
4.3 升降轴的设计 27
4.3.1 估算轴的基本直径 27
4.3.2 轴的结构设计 28
(1)轴上的各段的直径尺寸如下图所示: 28
4.3.3 轴上零件的周向固定 29
4.4 联轴器及键的选择 30
4.4.1 联轴器的选择 30
4.4.2 键的选择与校核 30
4.5 轴承的选择 31
4.5.1 轴承的选用及校核 31
4.5.2 轴承的寿命校核 31
4.5.3 轴承润滑方式的选择 32
4.6 钢丝绳和滑轮的选择及相关数据计算 32
4.6.1 钢丝绳直径的确定 32
4.6.2 滑轮的选择 33
4.7 卷筒的设计 33
4.8 升降轴的强度校核 34
第5章 横移传动系统设计 37
5.1 横移电动机的选择 37
5.2 横移链传动的设计 39
5.2.1 链轮齿数的确定 39
5.2.2 确定计算功率 39
5.2.3 中心距和链条链节数Lp的计算 40
5.2.4 单排链传递功率 及链节距P的计算 40
5.2.5 链实际长度 L和中心距a的计算 40
5.2.7 轴上的压轴力Q的计算 41
5.2.8 链条的静强度校核 41
5.2.9 确定润滑方式 43
5.2.10 链轮的结构确定 43
5.3 横移传动轴A的设计 44
5.3.1 估算轴的基本直径 44
5.3.2 轴的结构设计 45
5.3.3 轴上零件的周向固定 47
5.4 联轴器及键的选择 48
5.4.1 联轴器的选择 48
5.4.2 键的选择与校核 48
5.5 轴承的选择与计算 50
5.5.1 轴承的选用和校核 50
5.5.2 轴承润滑方式的选择 50
通过查阅相关资料可得,该轴承的最佳润滑方式是 。 50
5.6 横移车轮与导轨的选择 50
第6章 安全防护措施 52
6.1 防坠落装置设计 52
6.2 其他防护措施 53
6.2.1 载车板状态检测 54
6.2.2 载车板移动准确性检测 54
6.2.3 载车板升降准确性检测 54
6.2.4 放置人员与动物误入检测 54
结 论 55
温馨提示:
1、题目前面的备注【字母数字编号】为本站整理分类的编号,与课题内容无关,请选题时忽视;
2、若题目上备注三维,则表示文件里包含三维源文件,由于三维组成零件数量较多,为保证预览截图的简洁性,本站将三维文件夹进行了打包。三维及CAD预览截图,均为本站电脑打开软件进行截图的,保证能够打开,下载原件超高清,下载后解压即可;
3、本站所有资源如无特殊说明,都需要本地电脑安装Office2007。图纸软件为AutoCAD,PROE,UG,SolidWorks,CATIA等;
4、本站所有图文资料仅供用户学习参考,不作为任何商用或其他用途;
5、本站不保证下载资源的准确性、安全性和完整性, 不包修改,不支持退换,同时也不承担用户因使用这些下载资源对自己和他人造成任何形式的伤害或损失;
6、 下载文件中如有侵权或不适当内容,请与我们联系,我们立即纠正。