

作品包括:
Word版说明书1份,共55页,约18000字
任务书一份
开题报告一份
CAD版本图纸,共10张
![1749602905367325.webp 3CZ3]60QJGG1KTLI8~0GKZD.webp](/static/upload/image/20250611/1749602905367325.webp)
摘 要
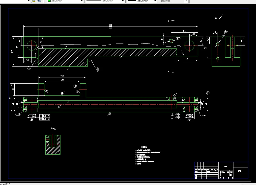
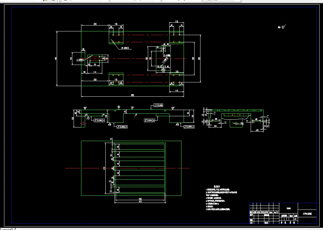
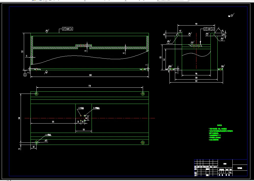
电火花线切割是一种加工特种材料的加工方法,用钼丝等金属丝作为电极对工件进行电火花腐蚀加工,从而使工件达到预先设计的形状。电火花线切割加工具有能加工精密、形状复杂、高熔点、难切削的材料且电极损耗小、节约材料等一系列优点。因此能适合各种特殊性能的材料和各种复杂表面的加工,电火花线切割技术在脆硬材料的切削中已经广泛应用。考虑到对工件质量要求的不断提高,对电火花线切割机床便有了具有高精度、高效率的要求。从而研究具有应用性很强的数控电火花线切割机床的机床结构,对提高加工工件的质量有重要意义。本文针对快走丝电火花线切割机床的机械部分进行了详细描述。通过对电火花线切割机的工作原理的分析和了解,将其分成三个主要部分进行设计:运丝机构,工作台以及丝架的结构设计。先选取标准件和校核主要部件的强度,再利用CAD做最后的工程图修改,完成快速走丝电火花线切割机床的设计。
关键词:线切割加工;难加工的材料;机床结构设计。
目录
摘 要 I
Abstract II
目录 III
1 引言 1
1.1 电火花线切割机在国外的发展 1
1.2 电火花线切割机在国内的发展 1
1.3 课题的可行性分析 2
2 线切割技术简述 3
2.1 电火花线切割机理 3
2.2 线切割加工需要的条件 3
2.3 电火花线切割的应用 3
2.4 电火花线切割加工机床的类型 4
2.5 线切割机床的构成 4
2.6 线切割加工会遇到的问题 4
3 电火花线切割机总体方案设计 6
4 确定机床参数 7
4.1 机床主要技术参数 7
4.2 运丝机构总体设计 7
4.3 运丝机构的储丝筒,联轴器以及上下托板导轨的设计 8
4.3.1 储丝筒的结构设计 8
4.3.2 联轴器的选择 8
4.3.3 上下拖板导轨的选择 9
4.4 确定储丝筒尺寸 10
4.5 运丝电机的选择 10
4.6 运丝机构中轴的相关数据计算 11
4.7 运丝机构中齿轮的设计 12
4.8 轴的设计计算及校核 16
4.8.1 储丝筒轴设计及校核 16
4.8.2 运丝机构中间轴的设计 21
4.8.3 丝杠轴的设计 26
4.9 运丝机构中轴承的校核 31
4.9.1 丝杠轴上轴承的校核 31
4.9.2 储丝筒轴上轴承的校核 32
5 校核键的强度 33
5.1 联轴器中键的校核 33
5.2 储丝筒轴与小齿轮联接键的校核 33
5.3 中间轴键的校核 34
5.4 丝杠轴键的校核 34
6 工作台相关参数的确定 36
6.1 步进电机的选择 36
6.2 滚珠丝杆螺母副的型号选择和滚珠丝杆的选型和校核 37
6.2.1 工作台外形尺寸和质量的计算 37
6.2.2 丝杆的设计 38
6.3 工作台导轨的选择 39
7 线架、导轮部件结构的结构设计 41
7.1 线架、导轮部件结构 41
7.2导轮部件结构 41
8 工艺方案的经济分析 43
9 总结 46
参考文献 48
致 谢50
温馨提示:
1、题目前面的备注【字母数字编号】为本站整理分类的编号,与课题内容无关,请选题时忽视;
2、若题目上备注三维,则表示文件里包含三维源文件,由于三维组成零件数量较多,为保证预览截图的简洁性,本站将三维文件夹进行了打包。三维及CAD预览截图,均为本站电脑打开软件进行截图的,保证能够打开,下载原件超高清,下载后解压即可;
3、本站所有资源如无特殊说明,都需要本地电脑安装Office2007。图纸软件为AutoCAD,PROE,UG,SolidWorks,CATIA等;
4、本站所有图文资料仅供用户学习参考,不作为任何商用或其他用途;
5、本站不保证下载资源的准确性、安全性和完整性, 不包修改,不支持退换,同时也不承担用户因使用这些下载资源对自己和他人造成任何形式的伤害或损失;
6、 下载文件中如有侵权或不适当内容,请与我们联系,我们立即纠正。