

作品包括:
Word版设计说明书1份,共49页,约20000字
外文翻译一份
CAD版本图纸,共3张

摘要
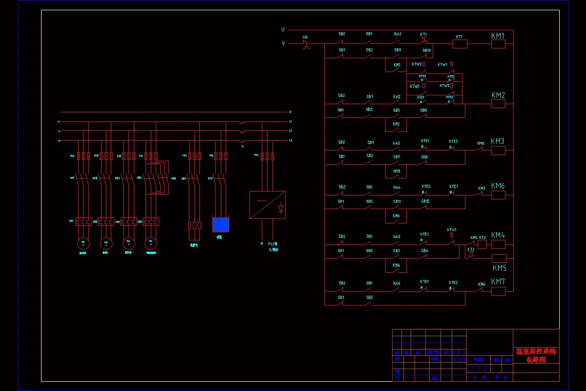
温室环境系统是一个非线性、时变、滞后复杂大系统,难以建立系统的数学模型,采用常规的控制方法难以获得满意的静、动态性能。本文通过对农用温室特点的分析,提出采用PLC来实现温室主要参数控制的方法,该方法可同时对温室内的温度、湿度、光照度、CO2浓度进行有效的控制。本文阐述以PLC为核心的控制系统,该系统由信息采集系统、智能控制单元和执行机构三部分构成,信息采集系统利用FX2N—8AD模拟模块完成环境参数的采集和输入;主控单元FX2—32MT将传感器检测值与设定的温室参数值进行比较,输出相应的控制信号;执行机构根据控制信号,带动电机、电磁阀、风机等设备,以实现对温室的智能控制。以PLC为核心的温室计算机监控系统,该系统的主要特点是:PLC的接口线路简单,外围元器件较少,整个系统运行可靠,可以保证温室的控制要求。
温馨提示:
1、题目前面的备注【字母数字编号】为本站整理分类的编号,与课题内容无关,请选题时忽视;
2、若题目上备注三维,则表示文件里包含三维源文件,由于三维组成零件数量较多,为保证预览截图的简洁性,本站将三维文件夹进行了打包。三维及CAD预览截图,均为本站电脑打开软件进行截图的,保证能够打开,下载原件超高清,下载后解压即可;
3、本站所有资源如无特殊说明,都需要本地电脑安装Office2007。图纸软件为AutoCAD,PROE,UG,SolidWorks,CATIA等;
4、本站所有图文资料仅供用户学习参考,不作为任何商用或其他用途;
5、本站不保证下载资源的准确性、安全性和完整性, 不包修改,不支持退换,同时也不承担用户因使用这些下载资源对自己和他人造成任何形式的伤害或损失;
6、 下载文件中如有侵权或不适当内容,请与我们联系,我们立即纠正。