

作品包括:
Word版说明书1份,共60页,约19000字
CAD版本图纸,共7张
摘要
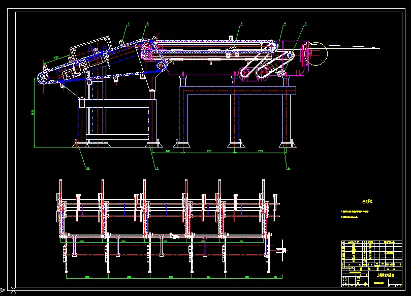
钢管打是一种针对钢管打捆及包装的专用机械,钢管打捆机是钢管产品包装的关键设备,是一种机电气一体化、科技含量高的设备,它由两部分装置组成:上料装置与成型装置。
本文所涉及的是打包机的上料装置。上料装置由三部分构成,即倾斜链式输送机,水平输送机和运输装置。钢管依次经过这三部分机构,最终到达成型装置被打包成六边形。文章主要介绍这三部分装置的工作原理,设计方案等等。
目前某些生产打包机的厂家通过采用国际标准和吸收国外先进技术的特点,在标准水平、设计制造技术和产品质量方面都有了较大的提高,比如永创机械的全自动无人化打包机,在质量上达到国外同类设备的先进水平,可自动定位、捆扎、转位,以进行十字型井字型等花样捆扎,采用微机控制,已实现无人操作的自动捆扎生产线。打包机的未来发展趋势在向全自动化、高级化和多样化等方面延伸。
关键词:打包机;刚才钢管;上料装置
目录
摘要 I
Abstract II
第一章 绪论 1
1.1 无缝钢管的简介 1
1.2 无缝钢管的制造工艺 2
1.2.1 热轧无缝钢管 2
1.2.2 冷轧无缝钢管 2
1.3 无缝管工艺流程 3
1.3.1 卫生级镜面管工艺流程 3
1.3.2工业管工艺流程 3
1.4无缝钢管的生产设备与生产过程 3
1.4.1 无缝钢管的生产设备 3
1.4.2 无缝钢管的生产过程 3
1.5 我国无缝钢管生产的现状与差距 4
1.5.1生产能力 4
1.5.2 装备水平 5
1.5.3 标准、品种、质量 6
1.6 无缝钢管的未来发展趋势 8
第二章 传动方案的选择 10
2.1 设计方案 10
2.2 选择方案 10
第三章 倾斜链式运输机 11
3.1 确定链的布置形式 11
3.2 选滚子链链型 11
3.3 求链作用于轴上的压力 13
3.4 选链轮齿数 14
3.5 滚子链链轮的基本参数和主要尺寸 14
3.6 确定链上挡板的布置形式及链的中心距 14
3.7 计算链长及链节数 15
3.8 求链轮的转速 15
3.9 选择电动机型号 16
3.9.1 计算负载功率 16
3.9.2 选择电动机 16
3.10 减速器的选择 16
3.10.1 常用的减速器 16
3.10.2 计算过程 17
3.11 电动机与减速器输入轴连接处联轴器的选择计算 18
3.11.1 凸缘联轴器的特点及应用 18
3.11.2 一般联轴器的选择计算 18
3.12 主动链轮轴的设计计算 19
3.12.1 选择轴的材料 19
3.12.2 初步估算轴径 19
3.12.3 轴的结构设计 19
3.12.4 轴的强度验算 20
3.13 整体式钢制小链轮主要结构尺寸计算及其材料选择 22
3.14 滚动轴承的选择与计算 23
3.14.1 滚动轴承的类型选择 23
3.14.2 滚动轴承的选择计算 23
第四章 输送机 25
4.1 输送部分滚子链传动的设计计算 25
4.1.1 计算链的紧边拉力 25
4.1.2 滚子链传动的设计计算及主要参数选择 25
4.1.3 求链轮转速 27
4.2 传动部分滚子链的设计计算 27
4.2.1 选滚子链的型号 27
4.2.2选择链轮齿数 28
4.2.3滚子链链轮的基本参数和主要尺寸计算 28
4.2.4确定中心距和链节数 28
4.2.5求链轮转速 29
4.3选择电动机型号 29
4.3.1 计算负载功率 29
4.3.2选择电动机 29
4.4减速器的选择 30
4.4.1 常用的减速器 30
4.4.2计算过程 30
4.5输送部分主动链轮和传动部分从动链轮共用轴的设计计算 31
4.5.1 选择轴的材料 31
4.5.3计算链条作用在轴上的压力 31
4.5.4轴的结构设计 33
4.5.5轴的强度验算 34
4.6选择滚动轴承型号 36
4.7整体式钢制小链轮主要结构尺寸计算及其材料选择 37
第五章 运输装置 39
5.1 输送部分滚子链传动的设计计算 39
5.1.1 计算链的紧边拉力 39
5.1.2滚子链传动的设计计算及主要参数选择 39
5.1.3 求链轮转速 41
5.2 传动部分滚子链的设计计算 41
5.2.1 选择滚子链的型号 41
5.2.2 选择链轮齿数 42
5.2.3 滚子链链轮的基本参数和主要尺寸计算 42
5.2.4 确定中心距a和链节数Lp 42
5.2.5 求链轮转速 43
5.3 选择电动机型号 43
5.3.1 计算负载功率 43
5.3.2 选择电动机 43
5.4 减速器的选择 44
5.4.1 常用的减速器 44
5.4.2 计算过程 44
5.5 输送部分主动链轮和传动部分从动链轮共用轴的设计计算 45
5.5.1 选择轴的材料 45
5.5.2 初步估算轴径 45
5.5.3 轴的结构设计 45
5.5.4 轴的结构设计 47
5.5.5 轴的强度验算 48
5.6 选择滚动轴承的型号 50
5.7 整体式钢制小链轮主要结构尺寸计算及其材料选择 51
设计体会 53
参考文献 54
致谢 55
温馨提示:
1、题目前面的备注【字母数字编号】为本站整理分类的编号,与课题内容无关,请选题时忽视;
2、若题目上备注三维,则表示文件里包含三维源文件,由于三维组成零件数量较多,为保证预览截图的简洁性,本站将三维文件夹进行了打包。三维及CAD预览截图,均为本站电脑打开软件进行截图的,保证能够打开,下载原件超高清,下载后解压即可;
3、本站所有资源如无特殊说明,都需要本地电脑安装Office2007。图纸软件为AutoCAD,PROE,UG,SolidWorks,CATIA等;
4、本站所有图文资料仅供用户学习参考,不作为任何商用或其他用途;
5、本站不保证下载资源的准确性、安全性和完整性, 不包修改,不支持退换,同时也不承担用户因使用这些下载资源对自己和他人造成任何形式的伤害或损失;
6、 下载文件中如有侵权或不适当内容,请与我们联系,我们立即纠正。