

作品包括:
Word版说明书1份,共54页,约20000字
CAD版本图纸,共5张
Φ35m环形加热炉炉底机械设计
摘要
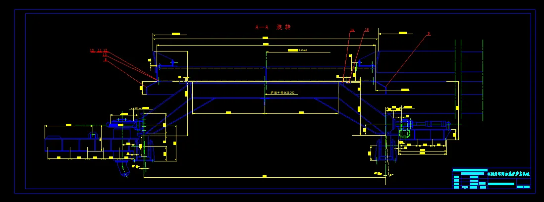
本次设计是关于环形加热炉炉底机械的设计,环形加热炉是一种能够间断性转动的环形炉子,使放置在炉底上的管坯由装料口移送到出料口进行连续加热的机械炉子。本设计主要对环形加热炉炉底传动装置结构进行设计和受力分析,对炉底中心定位进行设计计算。
前半部分论述了环形加热炉的结构特点和环形加热炉的发展历史及应用现状,主要是传动系统的选型及炉底的中心定位。环形加热炉炉底传动装置结构中通过液压马达提供动力,销齿轮进行传动,为加热炉加热钢坯提供转矩。该结构具有对钢坯加热均匀、可以根据要求调节钢坯的布料方式、产量大等优点。下半部分详细阐述了炉底机械的传动系统的设计。在传动系统设计中,主要进行了液压马达、减速器、液压泵以及销齿传动装置的选择,并精确校核销齿轮、轴承确保设计的实用性。
关键词:加热炉 结构 传动装置 炉底机械 炉底中心定位
目 录
摘要 I
Abstract II
第一章 概述 1
1.1 环形加热炉简介 1
1.1.1 环形加热炉的结构 2
1.1.2 环形加热炉的工作过程 3
1.2 钢管的生产工艺 3
1.3 钢管加热的目的 5
1.4 钢管加热炉发展历史及应用现状 6
1.4.1 斜底式加热炉 6
1.4.2 推钢式加热炉 7
1.4.3 步进式加热炉 7
1.4.4 常规环形加热炉 8
1.4.5 蓄热式环形加热炉 9
1.5 本次设计的专题部分 11
第二章 炉底机械的总体设计 13
2.1 概述 13
2.2 炉底机械的主要技术要求 13
2.3 炉底机械的机构的设计 13
2.3.1 炉底钢结构 14
2.3.2 支承辊的设计 15
2.3.3 定心辊的设计 16
2.3.4 传动机构的设计 17
第三章 传动装置的选择 19
3.1 传动装置的结构介绍 19
3.2 环形加热炉炉底机械传动方式分析 19
3.2.1 变频电机控制 19
3.2.2 液压马达控制 19
3.2.3 传动方案的确定 22
第四章 炉底中心定位 23
4.1 主要设计参数的设计计算 23
4.1.1 给定参数: 23
4.1.2 初设出料频率 24
4.2 支承辊的设计计算及强度校核 25
4.2.1 支承辊的设计 25
4.2.2 支撑辊的强度校核 27
4.3 定心辊的设计计算及强度计算 30
4.3.1 定心辊的受力分析 30
4.3.2 液压缸的选择 30
4.3.3 轴的选择及强度校核 31
4.3.4 定心辊支座的设计 33
第五章 液压元件及其附件的设计 34
5.1 液压马达的选择 34
5.1.1 液压马达的载荷转矩、排量和转速 34
5.1.2 液压马达的选择 36
5.2 减速器的选择 37
5.3 液压泵的选择 38
5.4 销齿传动装置的选择 41
5.4.1 销齿传动的工作原理 41
5.4.2 销齿的设计 41
第六章 经济价值分析 45
参考文献 46
结束语 47
温馨提示:
1、题目前面的备注【字母数字编号】为本站整理分类的编号,与课题内容无关,请选题时忽视;
2、若题目上备注三维,则表示文件里包含三维源文件,由于三维组成零件数量较多,为保证预览截图的简洁性,本站将三维文件夹进行了打包。三维及CAD预览截图,均为本站电脑打开软件进行截图的,保证能够打开,下载原件超高清,下载后解压即可;
3、本站所有资源如无特殊说明,都需要本地电脑安装Office2007。图纸软件为AutoCAD,PROE,UG,SolidWorks,CATIA等;
4、本站所有图文资料仅供用户学习参考,不作为任何商用或其他用途;
5、本站不保证下载资源的准确性、安全性和完整性, 不包修改,不支持退换,同时也不承担用户因使用这些下载资源对自己和他人造成任何形式的伤害或损失;
6、 下载文件中如有侵权或不适当内容,请与我们联系,我们立即纠正。