

作品包括:
Word版说明书1份,共43页,约19000字
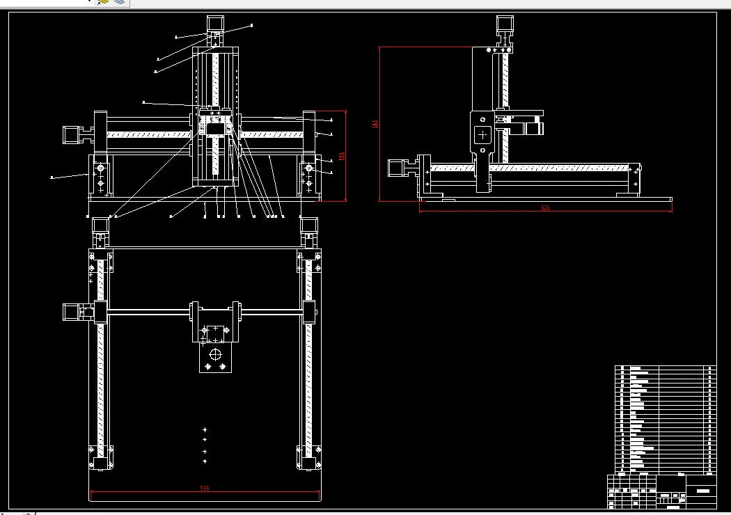
CAD版本图纸,共11张

摘要
点胶机是集成电路行业专门用来控制胶状流体的机器。常用工作方式有涂胶、滴胶、打胶、灌胶。点胶机通过并将胶状流体通过点滴、涂覆于产品表面或者采用泵入的方式将胶状流体注入产品内部来达到点胶的目的。
本文首先介绍了本次点胶机的总体设计方案。并根据制定的总体设计方案来建立点胶机的三维模型、点胶机 PLC 控制程序、以及触摸屏人机交互界面。完成上述工作后对本次设计的点胶机进行仿真实验,验证本次点胶机所设计的控制效果。
关键词:自动点胶机 可编程序控制器 人机交互界面 控制系统
目录
摘要 ..................................................................... II
Abstract ................................................................. II
第一章 绪论 ............................................................... 1
1.1 基于 PLC 的点胶机的发展背景及研究意义 .............................. 1
1.2 国内外研究现状 .................................................... 2
1.3 本次毕设研究的主要内容 ............................................ 3
第二章 基于 PLC 的点胶机整体机械设计方案 ................................... 4 2.1 硬件主体设计方案 ................................................. 4
2.2 点胶机的整体三维模型 ............................................. 4
2.2.1 Z 轴胶枪夹具的设计与三维建模 .................................. 4
2.2.2 X-Y 轴悬架连接件的设计与三维建模 .............................. 5
2.2.3 X 轴悬架支撑固定平台设计与建模 ................................ 5
2.2.4 点胶机整体三维模型的建立 ..................................... 6
2.3 点胶机标准件的选型与计算 ......................................... 6
2.3.1 X-Y-Z 三轴步进电机的选型及计算 ................................ 6
2.3.2 X-Y-Z 三轴滚珠丝杆的选型及计算 ................................ 8
2.3.3 X-Y 轴光电限位传感器的选型 .................................... 9
2.3.4 X-Y-Z 三轴步进电机驱动器的选型 ............................... 10
2.3.5 Z 轴点胶枪的选型 ............................................. 11
第三章 基于 PLC 的点胶机控制系统设计 ...................................... 12
3.1 可编程逻辑控制器 PLC 的基本概述 .................................. 12
3.2 PLC 的控制方式以及控制特点 ...................................... 13
3.3 点胶机的 PLC 选型及介绍 .......................................... 14
3.4 点胶机的 PLC 主体程序 ............................................ 15
3.4.1 PLC 总体程序介绍 ............................................. 15
3.4.2 PLC 控制程序说明 ............................................. 16
3.4.3 PLC 主体程序 ................................................. 17
3.5 PLC 电气原理图与接线图 .......................................... 21
第四章 基于 PLC 点胶的运行仿真实验及结果分析 .............................. 23 4.1 仿真软件的选择及简介 ............................................ 23
4.2 点胶机仿真实验的整体设计步骤 .................................... 23
4.3 点胶机人机交互界面和仿真动画 .................................... 23
4.4 点胶机运行仿真实验运行及结果分析 ................................ 27
4.4.1 点胶运行仿真及结果分析 ....................................... 27
4.4.2 报警运行仿真及结果分析 ...................................... 279
结论 ..................................................................... 31
致谢 ..................................................................... 32
参考文献 ................................................................. 33 附录 1 PLC 电气原理图及接线图 ............................................. 34
温馨提示:
1、题目前面的备注【字母数字编号】为本站整理分类的编号,与课题内容无关,请选题时忽视;
2、若题目上备注三维,则表示文件里包含三维源文件,由于三维组成零件数量较多,为保证预览截图的简洁性,本站将三维文件夹进行了打包。三维及CAD预览截图,均为本站电脑打开软件进行截图的,保证能够打开,下载原件超高清,下载后解压即可;
3、本站所有资源如无特殊说明,都需要本地电脑安装Office2007。图纸软件为AutoCAD,PROE,UG,SolidWorks,CATIA等;
4、本站所有图文资料仅供用户学习参考,不作为任何商用或其他用途;
5、本站不保证下载资源的准确性、安全性和完整性, 不包修改,不支持退换,同时也不承担用户因使用这些下载资源对自己和他人造成任何形式的伤害或损失;
6、 下载文件中如有侵权或不适当内容,请与我们联系,我们立即纠正。