

作品包括:
Word版设计说明书1份,共34页,约15000字
CAD版本图纸,共5张

摘 要
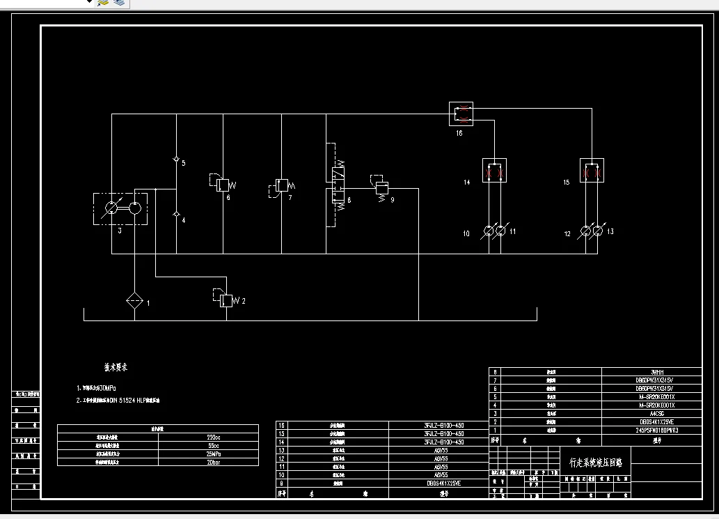
由于传统的履带式行走机构对地面适应能力较差,且目前城市建设正在迅猛发展,对道路的修缮和建设工作大大提高,而传统的桩机履带行走机构对地面的适应能力差,容易受到工作环境的影响,从而减缓工作进度。为此,现提出一种四履带式行走机构,能够使其适应高低不平崎岖的路面,在路面环境差的情况下能够通过调节履带,从而进行正常工作。本文的设计主要是针对该行走机构的液压系统。
行走系统为闭式回路,通过液压泵带动多个液压马达来运行,该回路通过分流集流阀来实现液压马达的同步,以及通过并联溢流阀来实行限速和减速。辅助液压回路则通过两个液压缸实现履带的独立运动,通过限流阀来控制液压缸的速度。最后完成液压原理图的设计。
关键词:道路建设;行走机构;闭式回路;液压系统
目 录
摘 要 I
Abstract II
第1章 绪论 1
1.1设计目的,意义及国内外现状分析 1
1.1.1设计目的 1
1.1.2设计意义 1
1.1.3国内外的发展状况及趋势 2
1.2设计的目标、基本内容及相应方案 3
1.2.1设计目标 3
1.2.2设计基本内容 3
1.2.3设计相应方案 4
第2章 履带的确定和行走机械参数的计算 6
2.1履带的选择 6
2.1.1履带的要求 6
2.1.2履带的设计 6
2.2履带式行机械参数计算 7
2.2.1履带行走摩擦力计算 7
2.2.2履带主动轮的转速 8
2.2.3履带式行走机构驱动力 8
2.3履带的附着性能 9
2.4本章小结 9
第3章 行走系统的液压回路 10
3.1行走系统的液压回路的压力 10
3.2行走机械液压系统的选择 10
3.3行走机械液压回路设计 12
3.4液压回路中元器件的选型 16
3.4.1液压马达的选型 16
3.4.2液压泵的选型 16
3.4.3液压回路辅助元件的选型 17
3.5本章小结 17
第4章 履带辅助系统液压回路 19
4.1履带辅助系统的设计 19
4.2履带辅助系统的液压元器件选型 21
4.2.1液压缸的选型 21
4.2.2液压泵的选型 23
4.2.3液压回路辅助元件的选型 23
4.3总体回路的设计 24
4.4本章小结 24
第5章 设计方案经济性分析和评估 26
第6章 总结 27
参考文献 28
附录 29
致谢 33
温馨提示:
1、题目前面的备注【字母数字编号】为本站整理分类的编号,与课题内容无关,请选题时忽视;
2、若题目上备注三维,则表示文件里包含三维源文件,由于三维组成零件数量较多,为保证预览截图的简洁性,本站将三维文件夹进行了打包。三维及CAD预览截图,均为本站电脑打开软件进行截图的,保证能够打开,下载原件超高清,下载后解压即可;
3、本站所有资源如无特殊说明,都需要本地电脑安装Office2007。图纸软件为AutoCAD,PROE,UG,SolidWorks,CATIA等;
4、本站所有图文资料仅供用户学习参考,不作为任何商用或其他用途;
5、本站不保证下载资源的准确性、安全性和完整性, 不包修改,不支持退换,同时也不承担用户因使用这些下载资源对自己和他人造成任何形式的伤害或损失;
6、 下载文件中如有侵权或不适当内容,请与我们联系,我们立即纠正。