

作品包括:
Word版说明书1份,共20页,约11000字
CAD版本图纸,共6张
脚踏式液压拆卸压力机设计
摘 要
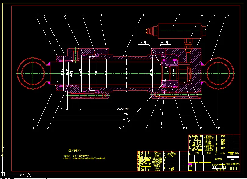
本次设计是行程为100mm、公称压力1000kg左右的脚踏式液压拆卸压力机的设计。该设计主要用于一些要求精度高的零部件(如轴承)拆装,以及导磁块的加工工艺。压力机采用液压驱动系统,通过动力液压缸和驱动液压缸来完成轴承的拆卸、组装。压油装置液压缸II和油箱通过单向阀、油管连接产生压力油。为完成液压缸I能够上下运动,我们选择了二位四通的手动换向阀来改变油路,实现液压缸I的工进、工退。脚踏式液压拆卸压力机压油装置液压缸II、油箱、单向阀采用整体式结构,以简化压力机的设计。压力机的脚踏装置根据杠杆原理,以最省力原则确定其结构及尺寸。
关键字: 单向阀,换向阀,液压系统,杠杆原理
目录
1 绪 论 1
1.1液压技术的发展史 1
1.2目前情况及发展趋势 2
2 总体方案设计 5
2.1 初选系统工作压力 5
2.2 液压缸材料的选择 6
2.2.1缸体材料 6
2.2.2 缸盖材料 6
2.3 活塞材料 6
2.4 活塞杆材料 7
2.5 活塞杆的导向、密封和防尘 7
3 液压缸的尺寸设计 7
3.1液压缸I的设计 8
3.1.1液压缸类型的选择 8
3.1.2液压缸主要几何尺寸的计算 8
3.1.3液压缸结构参数的计算 10
3.1.4液压缸I结构及工艺设计 12
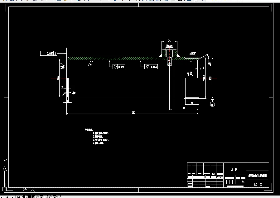
3.1.5 液压缸活塞杆设计 13
3.1.6 活塞结构 15
3.2 液压缸Ⅱ的设计 15
3.2.1液压缸类型的选择 16
3.2.2液压缸主要几何尺寸的计算 16
3.2.3小液压缸结构参数的计算 17
3.2.4小液压缸结构及工艺设计 20
4 液压控制阀 21
4.1 方向控制阀 21
4.2单向阀结构 21
4.3 换向阀 22
5 油箱设计 24
5.1 油箱设计要点 24
5.2 油箱容量设计 24
6 管路 25
6.1 管子内径计算 25
6.2 管接头 25
7 液压油的选用 26
结 论 27
致 谢 28
参考文献 29
温馨提示:
1、题目前面的备注【字母数字编号】为本站整理分类的编号,与课题内容无关,请选题时忽视;
2、若题目上备注三维,则表示文件里包含三维源文件,由于三维组成零件数量较多,为保证预览截图的简洁性,本站将三维文件夹进行了打包。三维及CAD预览截图,均为本站电脑打开软件进行截图的,保证能够打开,下载原件超高清,下载后解压即可;
3、本站所有资源如无特殊说明,都需要本地电脑安装Office2007。图纸软件为AutoCAD,PROE,UG,SolidWorks,CATIA等;
4、本站所有图文资料仅供用户学习参考,不作为任何商用或其他用途;
5、本站不保证下载资源的准确性、安全性和完整性, 不包修改,不支持退换,同时也不承担用户因使用这些下载资源对自己和他人造成任何形式的伤害或损失;
6、 下载文件中如有侵权或不适当内容,请与我们联系,我们立即纠正。