

作品包括:
Word版设计说明书1份,共57页,约21000字
任务书一份
外文翻译一份
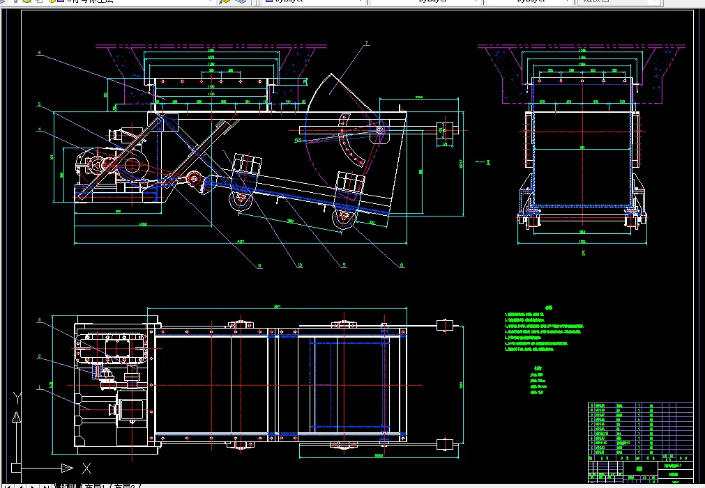
CAD版本图纸,共12张
摘要
本课题的主要内容是采用某上料机械手装置代替人来进行抓取作业,某上料机械手装置可以代替很多重复性的体力劳动,从而减轻工人的劳动强度,提高生产效率。结合设计的各方面的知识,在设计过程中学会怎样发现问题。解决问题.研究问题。并且在设计中融入自己的想法和构思,提高自己的创新能力。尽力使某上料机械手装置使用方便,结构简单。
温馨提示:
1、题目前面的备注【字母数字编号】为本站整理分类的编号,与课题内容无关,请选题时忽视;
2、若题目上备注三维,则表示文件里包含三维源文件,由于三维组成零件数量较多,为保证预览截图的简洁性,本站将三维文件夹进行了打包。三维及CAD预览截图,均为本站电脑打开软件进行截图的,保证能够打开,下载原件超高清,下载后解压即可;
3、本站所有资源如无特殊说明,都需要本地电脑安装Office2007。图纸软件为AutoCAD,PROE,UG,SolidWorks,CATIA等;
4、本站所有图文资料仅供用户学习参考,不作为任何商用或其他用途;
5、本站不保证下载资源的准确性、安全性和完整性, 不包修改,不支持退换,同时也不承担用户因使用这些下载资源对自己和他人造成任何形式的伤害或损失;
6、 下载文件中如有侵权或不适当内容,请与我们联系,我们立即纠正。