

作品包括:
Word版设计说明书1份,共36页,约15000字
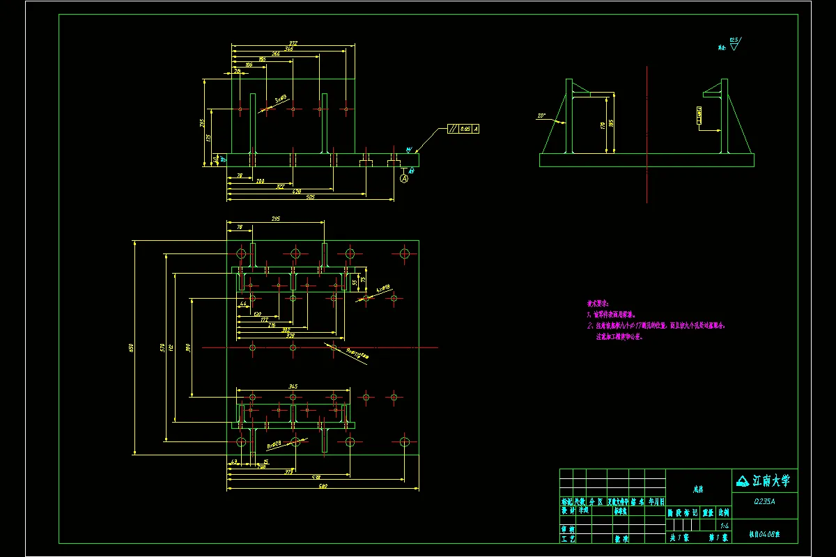
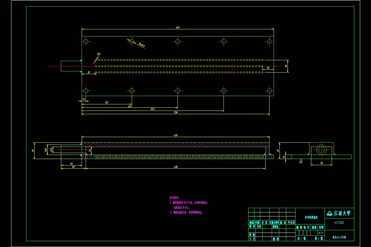
CAD版本图纸,共19张
摘要
下料往往是锻压行业的第一个工序,也是获得诸如普通的销标准件、内燃机活塞销、链条连接销、轴承内外圈及滚子等零件的关键工序。目前,下料方法主要有:锯床下料、各种剪切下料、车床切削下料、弯曲疲劳断料等各种方法。可是,通常的下料方法都有其自身的局限性,例如:能耗大、断面质量差、原料浪费严重、工具损耗大、生产效率低等等。这些缺点和当前提倡的“可持续发展战略“严重违背,而且不能满足冷挤压、温热挤压、精密锻造、精密碾压和电热敦粗等少无切削新工艺的要求。本课题提出了一种棒材的高速精密疲劳下料的新方法。它应用了“削强增脆“的最新精密下料方法,借鉴了”高速剪切下料“机理。采用感应加热的方式先将棒料加热到一定程度,然后再冷却,从而产生热应力快速预置裂纹,依靠液压缸加紧棒料作为定刀片保持棒料不转,动刀片在变频器的控制下高速旋转,从而实现了棒料的快速弯曲疲劳下料。本下料方法可以实现载荷沿棒料上下弯曲,时期疲劳断裂,所以不存在各种剪切法的”马蹄形”断面,可以得到很好的断面质量,而且几乎是不浪费材料,因此说它是一种高效率的近净绿色的制造工艺,值得研究和推广。
温馨提示:
1、题目前面的备注【字母数字编号】为本站整理分类的编号,与课题内容无关,请选题时忽视;
2、若题目上备注三维,则表示文件里包含三维源文件,由于三维组成零件数量较多,为保证预览截图的简洁性,本站将三维文件夹进行了打包。三维及CAD预览截图,均为本站电脑打开软件进行截图的,保证能够打开,下载原件超高清,下载后解压即可;
3、本站所有资源如无特殊说明,都需要本地电脑安装Office2007。图纸软件为AutoCAD,PROE,UG,SolidWorks,CATIA等;
4、本站所有图文资料仅供用户学习参考,不作为任何商用或其他用途;
5、本站不保证下载资源的准确性、安全性和完整性, 不包修改,不支持退换,同时也不承担用户因使用这些下载资源对自己和他人造成任何形式的伤害或损失;
6、 下载文件中如有侵权或不适当内容,请与我们联系,我们立即纠正。