

作品包括:
Word版说明书1份,共43页,约15000字
任务书一份
开题报告一份
外文翻译一份
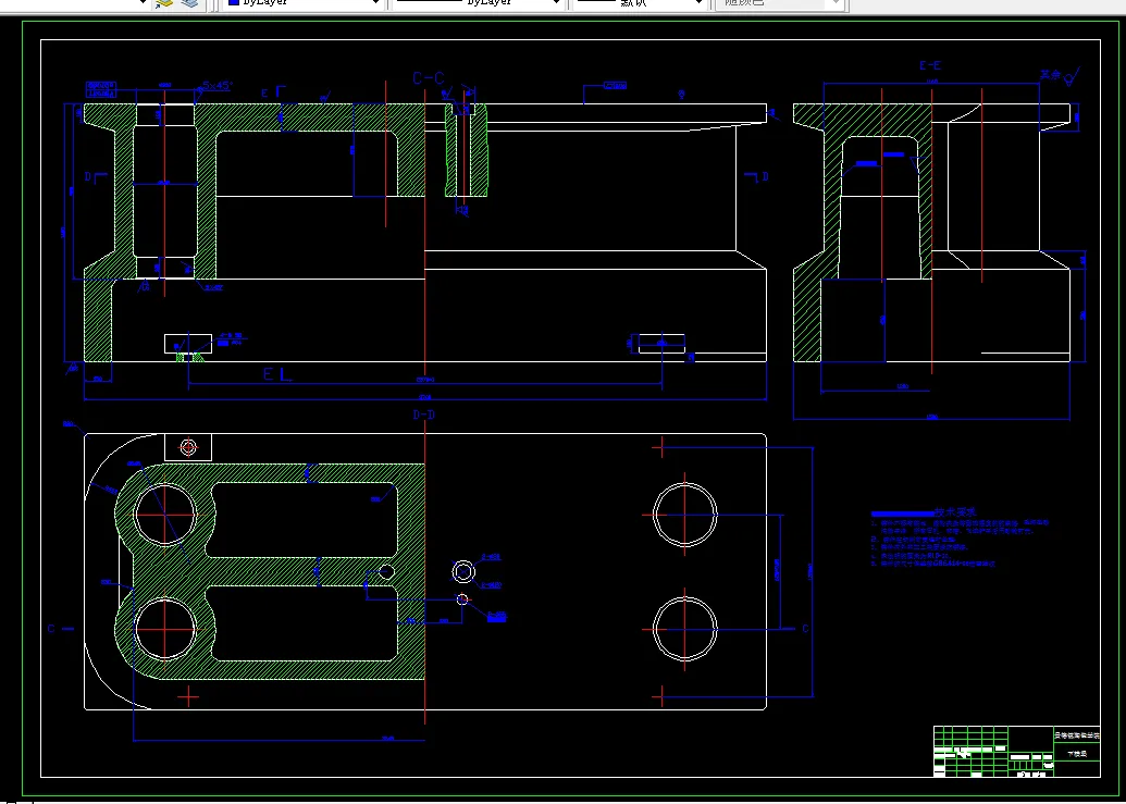
CAD版本图纸,共7张

摘 要
陶瓷液压压砖机是现代陶瓷生产线的核心关键设备,是机、电、液、气一体化的高技术专用设备。机架是全自动液压压砖机的关键部分,也是主要的受力部分,其刚性和强度在很大的程度上影响了压砖机的的左寿命和压砖的质量。本设计主要设计全自动液压压机的设计和其三维模型的建立,选择上横梁进行有限元分析。
目录
1 引言 …………………………………………………………………… 1
1.1 全自动液压压砖机的简介 …………………………………… 1
1.2全自动液压压砖机在国内外的生产状况及发展趋势 ………… 1
1.3 CAD/CAE在设计中的应用 …………………………………… 2
1.4 本设计研究的内容和意义 ………………………………… 3
2 设计原理 ……………………………………………………………… 5
2.1 液压压砖机工作原理 ……………………………………… 5
2.2 液压压砖机主要特点 ……………………………………… 5
3 总体方案的论证和选择 …………………………………………… 6
3.1 压制油缸的选择 …………………………………………… 6
3.2 机架结构形式的选择 …………………………………………… 8
4 压砖机各主要零部件的设计 …………………………………………… 11
4.1 各零件的结构设计 …………………………………………… 13
4.2 各主要零部件的初步设计计算 ………………………………… 13
5 压砖机各主要零件的详细设计及用PROE建立三维模型 ………… 25
5.1活动横梁的详细设计及三维模型的绘制 ……………………… 25
5.2 上横梁的详细设计和三维模型的绘制 ……………………… 27
5.3 下横梁(工作台)的详细设计和三维模型绘制 ……………… 29
5.4 立柱的详细设计和三维模型绘制 …………………………… 30
5.5 套筒的详细设计和三维模型 …………………………… 30
5.6 螺母的设计及三维模型绘制 ……………………………… 31
6 上横梁的有限元分析 ……………………………………………… 32
7 经济分析 ………………………………………………… 37
7.1市场预测(含同类项目的国内外市场情况) ………………… 37
7.2本项目的市场竞争优势、风险及市场策略 ………………… 37
7.3 经济社会效益分析 ………………………………… 38
7.4 推广应用及产业化分析 …………………………………… 38
8 最终设计结果 ……………………………………………… 39
9 设计小结 ………………………………………………… 41
致谢 …………………………………………………………………… 42
参考文献 …………………………………………………………………… 43
温馨提示:
1、题目前面的备注【字母数字编号】为本站整理分类的编号,与课题内容无关,请选题时忽视;
2、若题目上备注三维,则表示文件里包含三维源文件,由于三维组成零件数量较多,为保证预览截图的简洁性,本站将三维文件夹进行了打包。三维及CAD预览截图,均为本站电脑打开软件进行截图的,保证能够打开,下载原件超高清,下载后解压即可;
3、本站所有资源如无特殊说明,都需要本地电脑安装Office2007。图纸软件为AutoCAD,PROE,UG,SolidWorks,CATIA等;
4、本站所有图文资料仅供用户学习参考,不作为任何商用或其他用途;
5、本站不保证下载资源的准确性、安全性和完整性, 不包修改,不支持退换,同时也不承担用户因使用这些下载资源对自己和他人造成任何形式的伤害或损失;
6、 下载文件中如有侵权或不适当内容,请与我们联系,我们立即纠正。