

作品包括:
Word版说明书1份,共49页,约21000字
任务书一份
开题报告一份
外文翻译一份
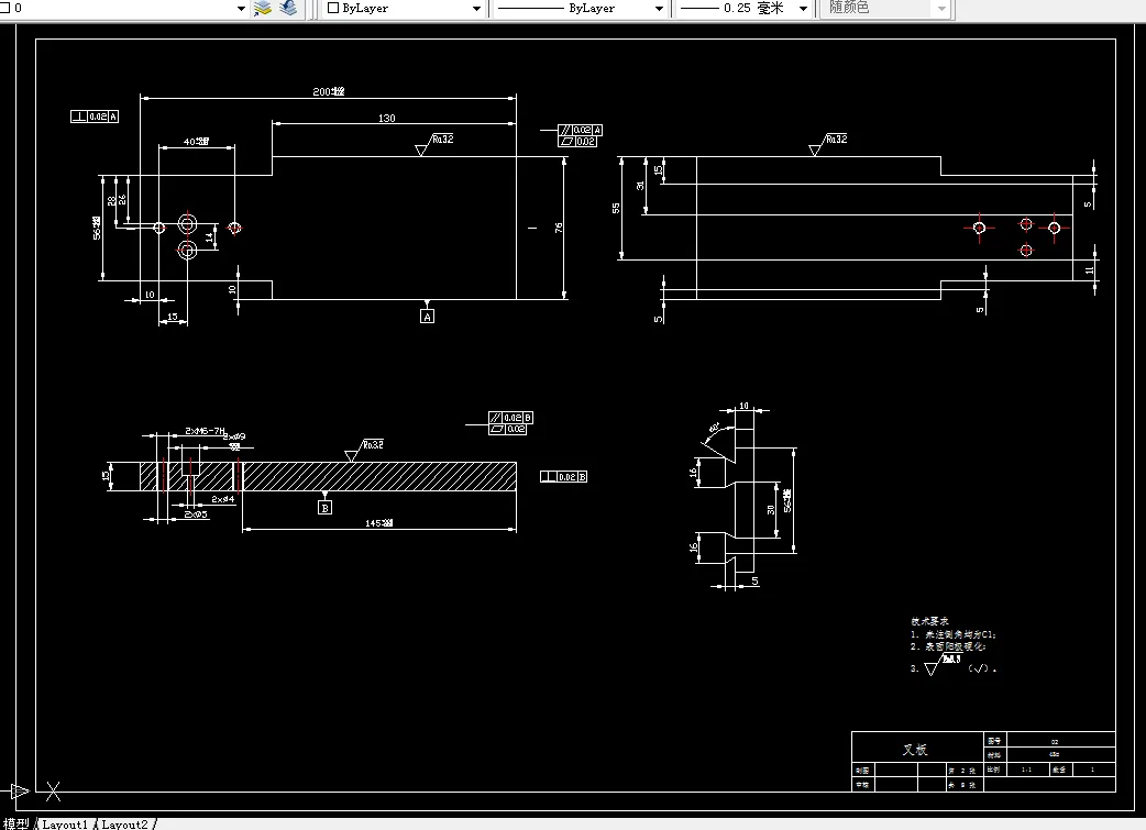
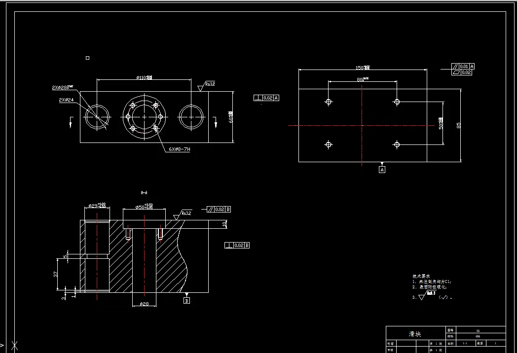
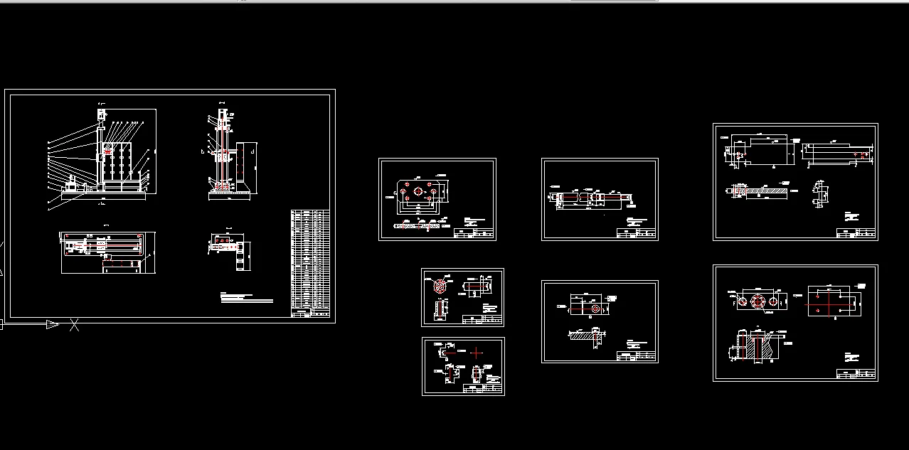
CAD版本图纸,共8张
![1736379867943540.webp ]7O6OPUKR8K8Q(ZHPU~ZK$W.webp](/static/upload/image/20250109/1736379867943540.webp)
摘 要
本文主要介绍了小型立体仓库的设计方案,对各种器件的选型计算,堆垛机的功能与作用原理,设计与发展过程。小型立体仓库设计是本次毕业设计的课题,基于课题要求,通过的电机控制使堆垛机实现了全自动化、对货物的自动搬运、出/入库的自动存取小型立体仓库。本次毕业设计论文完成了小型立体仓库的设计,给出了小型立体仓库的CAD模型,通过分析机构运动简图的方式,确定了设计的各部分机构符合本次设计的预期要求。之后对堆垛机进行了数学建模,得出了堆垛机与相应驱动装置伺服电机之间关系,为后面控制系统的设计打下基础。最后对易于发生损坏的重要零件进行了强度、刚度校核、提高了设计的整体性。最后使用软件完成了CAD图,更直观的展现了小型立体仓库的运动过程。本次毕业设计在基于国内外众多参考文献的基础上,设计了小型立体仓库,并对设计的CAD建模进行了相关计算和校核,对设计机构进行了相关可靠性分析和有限元分析,得出了较为合理的CAD建模,并绘制了小型立体仓库的总体装配图和主要零件的二维图。
本次小型自动化立体仓库的设计在原有的基础上从机构、选材等方面进行了优化和创新。本次设计的小型立体仓库建筑占地面积小、高层存储量大、能够实现快速;对空间的综合利用率很好,仓库结构简单,便于加工和制造,能够让我们在生活中对小型货物的存取和发送提供了很多的方便。随着时代的不断发展,人们对空间的需求也在不断增长,对机械自动化的需求也在不断增加,小型自动化立体库的社会地位也会随之不断提高。
关键词:立体仓库;堆垛机设计;自动化
目 录
摘 要 I
第1章 绪论 - 1 -
1.1 课题研究背景及意义 - 1 -
1.1.1 研究背景 - 1 -
1.1.2 研究意义 - 1 -
1.2 课题的国内外研究现状 - 2 -
1.2.1 国内立体仓库的研究现状 - 2 -
1.2.2 国外立体仓库的研究现状 - 3 -
1.3 未来的发展趋势 - 3 -
1.4 本课题研究的主要内容与章节安排 - 4 -
第2章 小型立体仓库总体方案设计 - 5 -
2.1 设计方案对比 - 5 -
2.1.1 货架的对比 - 5 -
2.1.2 堆垛机的对比 - 5 -
2.2 课题总体方案的设计 - 6 -
2.3 小型立体仓库各部分开关分布 - 7 -
2.4 小型立体仓库的优越性 - 9 -
2.5 本章小结 - 9 -
第3章 小型立体仓库的结构设计 - 10 -
3.1 小型立体仓库的设计要求 - 10 -
3.2 小型立体仓库的总体结构设计 - 11 -
3.3 货架托盘的设计 - 12 -
3.4 堆垛机的结构设计 - 13 -
3.4.1 堆垛机的总体结构设计 - 13 -
3.4.2载货台的设计 - 14 -
3.4.3 堆垛机底盘的设计 - 14 -
3.5 货架的结构设计 - 15 -
3.6 本章小结 - 16 -
第4章 小型立体仓库的计算校核 - 17 -
4.1 直线轴承的计算校核 - 17 -
4.2 丝杠的计算 - 18 -
4.2.1 已知的设计条件 - 18 -
4.2.2 选定丝杠精度 - 19 -
4.2.3 轴向允许载荷计算与校核 - 20 -
4.2.4 丝杠临界转速计算及校核 - 21 -
4.3 螺母的计算与校核 - 22 -
4.3.1 确定螺母类型 - 22 -
4.3.2 螺母额定寿命计算及校核 - 23 -
4.4 直线导轨选型 - 26 -
4.5 电机的计算校核 - 26 -
4.5.1 计算电机驱动扭矩 - 26 -
4.5.2 确定电机型号 - 28 -
4.6 本章小结 - 30 -
第5章 应力分析 - 31 -
5.1 用ANSYS软件进行有限元分析 - 31 -
5.2 小型立体仓库的经济性分析 - 34 -
5.2.1 小型立体仓库的成本分析 - 34 -
5.2.2 自动化立体仓库的费用组成 - 35 -
5.2.3 立体库与平面库的比较 - 36 -
5.2.4 小型立体仓库的最佳设置数量 - 37 -
5.3 本章小结 - 38 -
总 结 39
参 考 文 献 - 40 -
附录A 丝杠外径与导程标准组合 - 42 -
附录B 丝杠沟槽直径 - 43 -
附录C 丝杠轴的惯性力矩 - 44 -
致 谢 - 45 -
温馨提示:
1、题目前面的备注【字母数字编号】为本站整理分类的编号,与课题内容无关,请选题时忽视;
2、若题目上备注三维,则表示文件里包含三维源文件,由于三维组成零件数量较多,为保证预览截图的简洁性,本站将三维文件夹进行了打包。三维及CAD预览截图,均为本站电脑打开软件进行截图的,保证能够打开,下载原件超高清,下载后解压即可;
3、本站所有资源如无特殊说明,都需要本地电脑安装Office2007。图纸软件为AutoCAD,PROE,UG,SolidWorks,CATIA等;
4、本站所有图文资料仅供用户学习参考,不作为任何商用或其他用途;
5、本站不保证下载资源的准确性、安全性和完整性, 不包修改,不支持退换,同时也不承担用户因使用这些下载资源对自己和他人造成任何形式的伤害或损失;
6、 下载文件中如有侵权或不适当内容,请与我们联系,我们立即纠正。