

作品包括:
Word版设计说明书1份,共32页,约9600字
CAD版本图纸,共6张
摘要
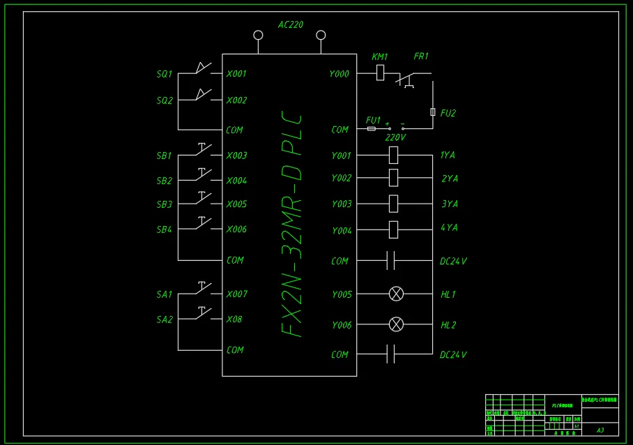
成型铣床液压系统及PLC设计,包含液压系统原理图设计,电气控制原理图,PLC梯形图,PLC外部接线图,负载和速度图,液压缸工况图等设计,包含设计计算书。 (1)实现功能:手工上料—自动夹紧—工作台快进—铣削工进—工作台快退—夹紧松开—停止的工作循环 (2)基本参数:铣削负载力9800N,夹紧油缸负载力4800N,工作台移动部件重2500N,夹紧缸移动件重Gc=60N,工作台启动时间(加减速时间0.5):,采用平导轨,静摩擦系数0.2,导轨面动摩擦系数0.1,工作台快进行程280,工进行程80,快进与快退速度相等,均为5.5m/min,工作台工进速度为48mm/min,夹紧缸行程Lc=10mm,
温馨提示:
1、题目前面的备注【字母数字编号】为本站整理分类的编号,与课题内容无关,请选题时忽视;
2、若题目上备注三维,则表示文件里包含三维源文件,由于三维组成零件数量较多,为保证预览截图的简洁性,本站将三维文件夹进行了打包。三维及CAD预览截图,均为本站电脑打开软件进行截图的,保证能够打开,下载原件超高清,下载后解压即可;
3、本站所有资源如无特殊说明,都需要本地电脑安装Office2007。图纸软件为AutoCAD,PROE,UG,SolidWorks,CATIA等;
4、本站所有图文资料仅供用户学习参考,不作为任何商用或其他用途;
5、本站不保证下载资源的准确性、安全性和完整性, 不包修改,不支持退换,同时也不承担用户因使用这些下载资源对自己和他人造成任何形式的伤害或损失;
6、 下载文件中如有侵权或不适当内容,请与我们联系,我们立即纠正。