

作品包括:
说明书一份,34页,13000字左右.
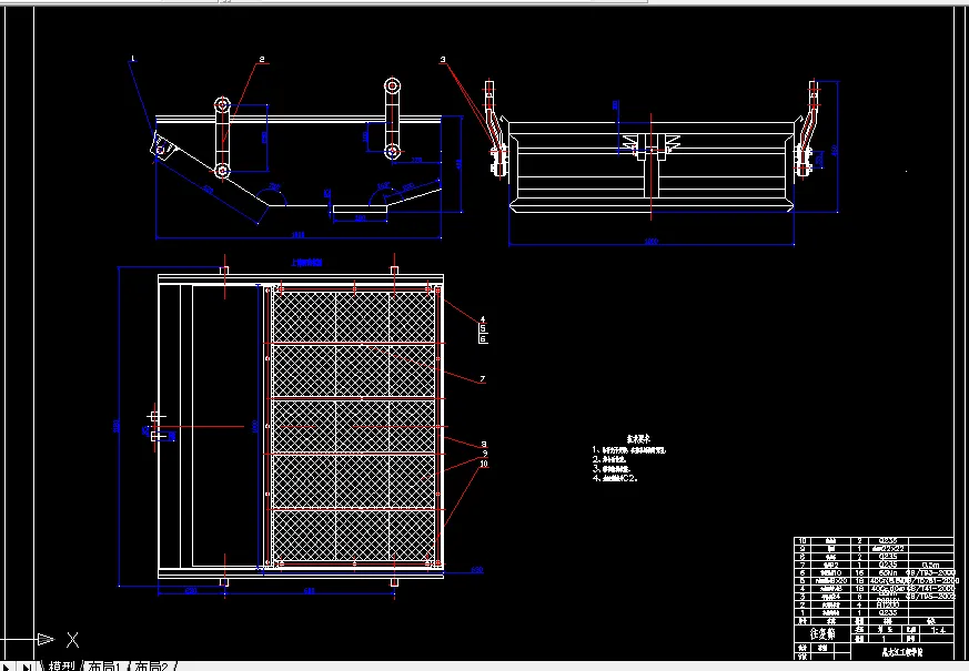
CAD版本图纸,共9张:
摘 要
在玉米分段收获时,玉米手工剥皮工序劳动强度大,费工时和误农时,且影响玉米的产量和质量,针对我国玉米收获后剥皮这个重要环节,设计出场上玉米剥皮机,它替代了传统人工剥皮的紧张劳动,减轻了人们的劳动强度,提高了劳动效率,有效地防止了因剥皮不及时而造成的玉米霉烂的损失,从而给农民带来了一定的经济效益。本设计采用3对辊机型,在满足剥净率大于95%,工作效率达到1500kg/h以上的设计要求的前提下进行设计,可满足不同用户的需求,同时该机结构简单,调整方便可靠,采用电动机作为动力。为满足设计要求,主剥皮装置中的剥皮辊采用螺旋铁辊和橡胶辊组合的玉米剥皮辊,并且两辊高低配置,且可以根据玉米棒的大小不同,通过弹簧调节两辊间的距离。这避免了传统设计方法中铸铁辊对玉米籽粒的损伤,而且在结构上比传统设计的更加合理。经过设计、计算、校核,该机符合设计要求,并且剥皮装置较传统的传动系统有所改进,更适合在广大农村推广使用。
关键词:玉米;剥皮机;螺旋铁辊;橡胶辊;农业机械
目 录
摘 要 Ⅰ
ABSTRACT Ⅱ
第1章 绪 论 1
1.1选题的背景、目的及意义 1
1.2国内外玉米剥皮机的概况 1
1.2.1国内发展状况 1
1.2.2国外发展状况 2
1.3剥皮机的设计要求及结构简介 3
1.3.1剥皮机的设计要求 3
1.3.2玉米剥皮机结构简介 3
第2章 总体方案设计 4
2.1总机的结构形式 4
2.2总统设计思想 5
2.3机架的配置 5
2.4传动系统配置 5
2.5动力参数及动力源配置的确定 6
2.6本章小结 6
第3章 剥皮装置的确定 7
3.1剥皮辊确定 7
3.1.1剥皮辊长度、直径的确定 7
3.1.2剥皮辊结构 7
3.2剥皮辊生产能力的确定 8
3.3剥皮部件的配置 8
3.4本章小结 9
第4章 执行部件及机架设计 10
4.1果穗料斗的设计 10
4.2其他执行部件的配置 10
4.3辅助执行机构设计配置 11
4.4机架、联接架的设计 12
4.5本章小结 12
第5章 传动部分设计 13
5.1玉米果穗在剥皮辊间的受力分析 13
5.2皮带传动的设计计算及校核 14
5.3齿轮的设计和校核 16
5.4轴的强度设计计算与校核 19
5.5键的选择和校核 21
5.6轴承的选择和校核 21
5.7链轮的设计 22
5.8电动机的选择 25
5.9本章小结 26
第6章 微型玉米剥皮机的保养、使用、调整及修复 27
6.1每日技术保养 27
6.2传动装置的使用和调整 27
6.3机器的保管 27
6.4工作部件损坏的修复和调整 28
6.5本章小结 28
结 论 29
参考文献 30
致 谢 32
温馨提示:
1、题目前面的备注【字母数字编号】为本站整理分类的编号,与课题内容无关,请选题时忽视;
2、若题目上备注三维,则表示文件里包含三维源文件,由于三维组成零件数量较多,为保证预览截图的简洁性,本站将三维文件夹进行了打包。三维及CAD预览截图,均为本站电脑打开软件进行截图的,保证能够打开,下载原件超高清,下载后解压即可;
3、本站所有资源如无特殊说明,都需要本地电脑安装Office2007。图纸软件为AutoCAD,PROE,UG,SolidWorks,CATIA等;
4、本站所有图文资料仅供用户学习参考,不作为任何商用或其他用途;
5、本站不保证下载资源的准确性、安全性和完整性, 不包修改,不支持退换,同时也不承担用户因使用这些下载资源对自己和他人造成任何形式的伤害或损失;
6、 下载文件中如有侵权或不适当内容,请与我们联系,我们立即纠正。