

作品包括:
Word版说明书1份,共30页,约11000字
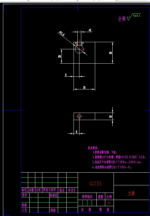
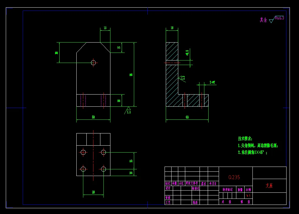
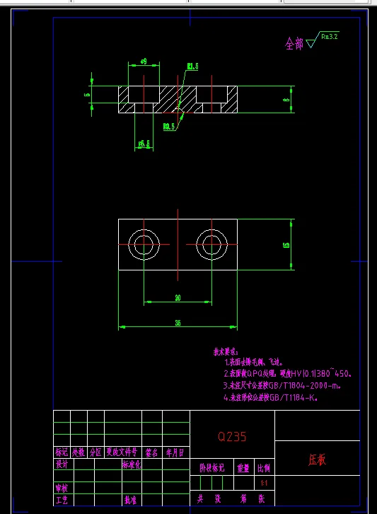
CAD版本图纸,共8张
![1742351088505057.webp YDA)W}5{({9)8W~{]Z5UI`U.webp](/static/upload/image/20250319/1742351088505057.webp)
摘 要
本课题研制了一台线(丝)拉伸力学性能测试仪,在电机的驱动下,该装置可对线(丝)拉伸至断裂,同时结合光学显微镜实现对线(丝)拉伸断裂过程进行原位监测的原位拉伸测试仪器。该装置的总体尺寸为225mm×220mm×66mm,通过校准测试所研制的线(丝)拉伸力学测试仪的性能达到如下的设计要求:载荷量程500N、载荷的分辨率小于1mN,位移的分辨率小于10μm、最大行程为100mm。本设计的创新点在于线(丝)绕线夹具体的设计,采用绕线式缠绕的方式,绕线槽采用圆弧过渡的方式,减少了线(丝)在拉伸过程中的磨损,避免了由于夹具体对线(丝)作用力,造成线(丝)在夹持部位发生断裂。绕线夹具体的U型槽尺寸是根据线材的粗细而设计,可以根据线(丝)的粗细进行自由更换。零件与零件之间都采用内六角螺栓固定,装拆方便,易于使用,实现了单元体积小,精度高,结构简单,易于使用的优点,为了线材拉伸力学性能测试仪的设计提供参考。
关键词:力学性能;拉伸;材料;夹具;检测技术
目 录
1 绪论 1
1.1选题背景及研究意义 1
1.2 国内外发展现状及存在的问题 4
1.3 本文主要研究内容 4
2 整体方案设计 6
2.1 设计要求 6
2.2 整体结构设计框架 6
2.3 功能结构的设计 7
2.4 机械结构设计原理 7
3 拉伸力学性能测试仪的理论分析 9
3.1 材料测试理论模型 9
3.2 拉伸测试基本理论 9
4拉伸测试装置的设计与分析 12
4.1 驱动单元的设计分析 12
4.2 传动单元的设计分析 13
4.2.1丝杆的选型设计 13
4.2.2 蜗轮蜗杆的选型设计 15
4.2 信号检测单元的设计分析 17
4.3 夹持单元的设计分析 17
5 结论 20
参考文献 21
致 谢 22
声 明 23
附 录 24
温馨提示:
1、题目前面的备注【字母数字编号】为本站整理分类的编号,与课题内容无关,请选题时忽视;
2、若题目上备注三维,则表示文件里包含三维源文件,由于三维组成零件数量较多,为保证预览截图的简洁性,本站将三维文件夹进行了打包。三维及CAD预览截图,均为本站电脑打开软件进行截图的,保证能够打开,下载原件超高清,下载后解压即可;
3、本站所有资源如无特殊说明,都需要本地电脑安装Office2007。图纸软件为AutoCAD,PROE,UG,SolidWorks,CATIA等;
4、本站所有图文资料仅供用户学习参考,不作为任何商用或其他用途;
5、本站不保证下载资源的准确性、安全性和完整性, 不包修改,不支持退换,同时也不承担用户因使用这些下载资源对自己和他人造成任何形式的伤害或损失;
6、 下载文件中如有侵权或不适当内容,请与我们联系,我们立即纠正。