

作品包括:
Word版说明书1份,共23页,约11000字
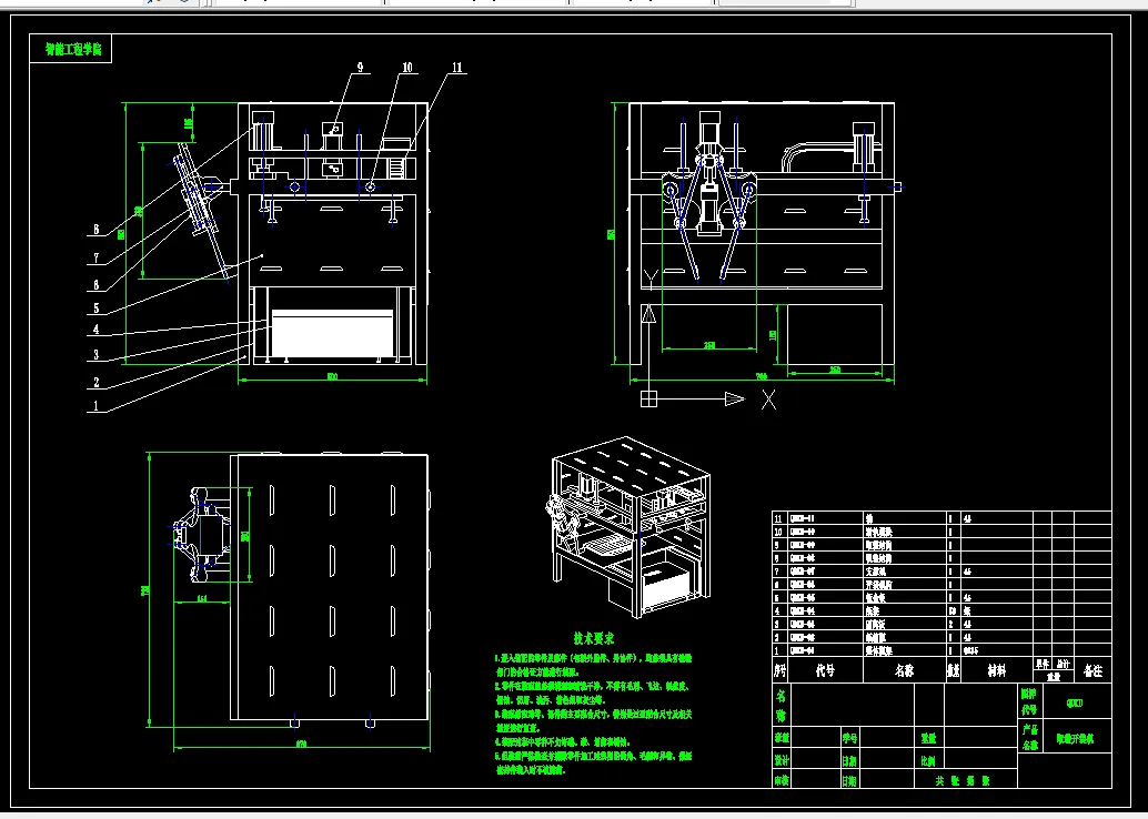
CAD版本图纸,共7张
UG三维图一套

摘要
本文主要针对自动化食品包装流水线中的取袋开袋模块进行了深入研究。该模块是食品包装过程中的关键环节,直接影响到包装效率及食品安全。文章首先分析了现有的取袋开袋技术,接着提出了新型的模块设计方案,并对该方案进行了详细的阐述。此外,还通过实验验证了该模块在提高包装速度、减少故障率和保证食品卫生方面的优势。
关键词:自动化食品包装,取袋开袋模块,包装效率,食品安全
目录
第一章前言
1.1研究背景及意义
1.2设计的目的及范围
1.3研究内容及目标
第二章绪论
2.1自动化食品包装流水线概述
2.2取袋开袋模块的重要性
2.3现有取袋开袋技术分析
第三章设备功能介绍
3.1设备设计原理及功能介绍
3.2取袋结构的实现方式
3.2开袋结构的实现方式
第四章设备设计思路
4.1取袋机构设计
4.2开袋机构设计
4.3气缸计算和选择
4.4钣金外壳设计
4.4框架结构的设计和强度校核
4.5设备可行性验证
第五章设备的不足之处和改进措施
5.1设备不足之处
5.2设备的改进措施
第六章课程设计总结
6.1小组分工以及具体工作内容
6.2心得体会、收获
第七章参考文献
温馨提示:
1、题目前面的备注【字母数字编号】为本站整理分类的编号,与课题内容无关,请选题时忽视;
2、若题目上备注三维,则表示文件里包含三维源文件,由于三维组成零件数量较多,为保证预览截图的简洁性,本站将三维文件夹进行了打包。三维及CAD预览截图,均为本站电脑打开软件进行截图的,保证能够打开,下载原件超高清,下载后解压即可;
3、本站所有资源如无特殊说明,都需要本地电脑安装Office2007。图纸软件为AutoCAD,PROE,UG,SolidWorks,CATIA等;
4、本站所有图文资料仅供用户学习参考,不作为任何商用或其他用途;
5、本站不保证下载资源的准确性、安全性和完整性, 不包修改,不支持退换,同时也不承担用户因使用这些下载资源对自己和他人造成任何形式的伤害或损失;
6、 下载文件中如有侵权或不适当内容,请与我们联系,我们立即纠正。