

作品包括:
Word版说明书1份,共40页,约16000字
CAD版本图纸,共6张
![1743577605522300.webp S@L[7YF]Q}K{Q3$)X~`U[3K.webp](/static/upload/image/20250402/1743577605522300.webp)
摘要
随着国民经济的不断发展,人类科学技术更是越来越先进,每一个行业相较于刚刚改革开放时都有了巨大的进步,越来越多的科技被人们创造使用,用来代替完成相当艰苦危险精细的工作,机械就是其中的一种。机械代表着一个国家的综合实力,机械的水平越高,国家的实力就越强。
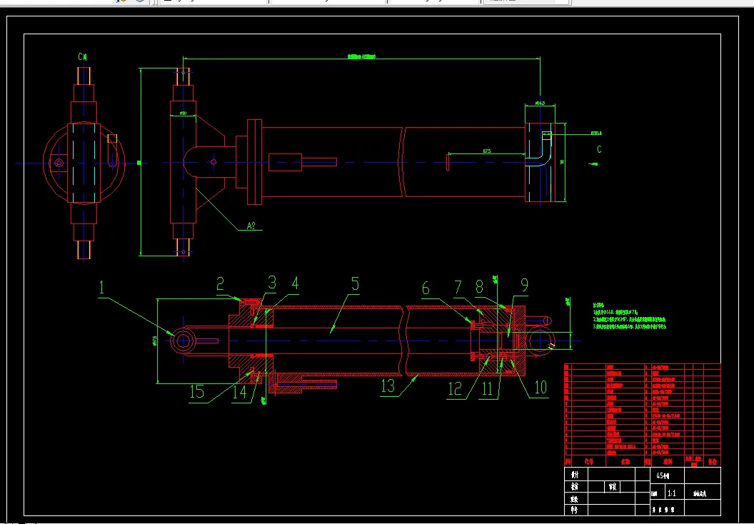
本次设计论文的课题是自卸车液压举升系统设计。该论文首先介绍了自卸车的发展概况,然后又简述了自卸车液压系统的工作原理。自卸车驱动液压举升集装箱,把集装箱斜到一个能卸货的角度,让货物自行掉落达到卸货的目的,然后利用集装箱重量复位。自卸车的结构和性能影响自卸车的性能和安全。我们把自卸车分成了很多机构并且对其进行了非常详细的解释。在这之中,我们也对自卸车中与本文研究的两个成分进行了简单的阐述,然后对这两个成分进行准确的细致的计算与设计。其中我们发现自卸车的液压缸的结构非常复杂,而且他的液压执行机构在大多数这种重型车上都有所应用。除此之外,我们还发现它在设计上也是非常方便与简单。此次毕业设计主要设计液压缸和液压系统设计。
本次毕业设计主要研究设计装载质量为15.22t,最大举升角度为50°~60°的自卸车举升机构及其液压系统。设计内容主要是设计举升机构的液压系统,包括液压缸的选择,液压回路的设计液压泵的选择等,还有举升机构的形式以及其他举升机构中零件的设计,如三角臂的设计和校核,拉杆的设计和校核,还有各铰支点支座和销轴的设计和校核。在设计过程中,我非常注重对一些基本概念及理论的使用,又非常注重将知识落实到实际中来,充分地把学习到的理论和实践生产结合起来,我认为只有这样,才能设计出好的东西。
关键词:自卸汽车;举升系统设计;液压系统设计
目 录
第一章 绪论…………………………………………………………………1
1.1自卸汽车的作用………………………………………………………1
1.2自卸汽车的分类…………………………………………………………2
1.3自卸汽车的举升机构…………………………………………………………3
1.4自卸汽车的结构特点……………………………………………………4
1.5小结…………………………………………………………………………4
第二章 举升机构的设计
2.1 举升形式的选择……………………………………………………………5
2.2 举升机构各各铰点位置坐标确定…………………………………………6
2.3 举升机构受力分析…………………………………………………………9
第三章 液压系统设计…………………………………………………………16
3.1 液压概述…………………………………………………………16
3.1.1 液压技术的发展…………………………………………………16
3.1.2 液压传动………………………………………………………17
3.2 自卸汽车液压系统设计………………………………………………19
3.2.1 液压缸概述……………………………………………………19
3.2.2 液压系统原理图………………………………………………19
3.2.3 液压系统图…………………………………………………………21
3.3 小结…………………………………………………………………23
第四章 举升机构构件尺寸设计与校核……………………………………23
4.1举升油缸设计校核…………………………………………………………23
4.2 拉杆尺寸的确定与校核……………………………………………………26
4.3 对三角臂的校核……………………………………………………………28
4.4 对各销轴的校核……………………………………………………………29
结论…………………………………………………………………………32
致谢…………………………………………………………………………33
参考文献…………………………………………………………………………35
温馨提示:
1、题目前面的备注【字母数字编号】为本站整理分类的编号,与课题内容无关,请选题时忽视;
2、若题目上备注三维,则表示文件里包含三维源文件,由于三维组成零件数量较多,为保证预览截图的简洁性,本站将三维文件夹进行了打包。三维及CAD预览截图,均为本站电脑打开软件进行截图的,保证能够打开,下载原件超高清,下载后解压即可;
3、本站所有资源如无特殊说明,都需要本地电脑安装Office2007。图纸软件为AutoCAD,PROE,UG,SolidWorks,CATIA等;
4、本站所有图文资料仅供用户学习参考,不作为任何商用或其他用途;
5、本站不保证下载资源的准确性、安全性和完整性, 不包修改,不支持退换,同时也不承担用户因使用这些下载资源对自己和他人造成任何形式的伤害或损失;
6、 下载文件中如有侵权或不适当内容,请与我们联系,我们立即纠正。