

作品包括:
Word版说明书1份,共36页,约14000字
CAD版本图纸,共6张
SW三维图一套
仿真动画视频4份

摘要
改革开放以前,我国农业主要以人工方式进行收获,对玉米果穗进行摘取、剥皮、脱粒,这一工作强度大且繁琐,工作效率低。改革开放后,中国农业逐步走向机械化发展道路,玉米机械采伐取代了人工采伐。玉米的机械化收获技术是在玉米成熟时期,根据一些种植方法,使用机械对进行采摘、脱皮和脱粒等一系列过程。
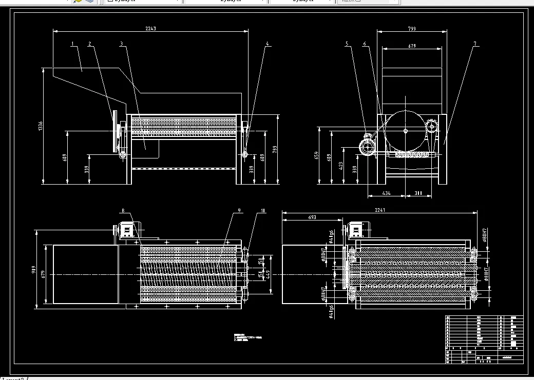
本设计是基于对玉米剥皮机的发展现状、工作原理了解的基础上进行的,主要有总体方案的设计、主要零件的设计,包括带轮、带传动、齿轮传动、剥皮辊、传动辊的设计与计算,并对玉米剥皮机进行三维建模和仿真,出工程图等。本设计结构简单,价格实惠,操作方便,安全性高,效率高,适用于小型农田的玉米剥皮,在很大程度上可以减轻农民的劳动强度,为农民收获玉米提供很好的帮助。
关键词 农业;机械化;玉米果穗;剥皮机;设计
目录
1 绪论 11.1 本课题研究的背景及意义 1
1.1.1本课题研究的背景 1
1.1.2本课题研究的意义 1
1.2 国内外玉米脱皮机的发展概况 1
1.2.1国内玉米剥皮机的发展概况 2
1.2.2国外玉米剥皮机的发展概况 3
1.3 国内外玉米去皮机的缺陷 3
2 总体方案的设计与确定 4
2.1 本课题设计要求的确定 4
2.2 设计参数的确定 4
2.3 玉米剥皮机的组成及工作原理 4
2.4 电机型号的选择与确定 5
3 主要零部件的设计与计算 7
3.1 带传动的设计与计算 7
3.1.1带传动的概述 7
3.1.2带传动主要参数的计算 7
3.1.3带轮结构的设计 9
3.2 齿轮传动的设计与计算 10
3.2.1选择的齿轮类型、精度、材料和齿数 10
3.2.2根据齿面接触疲劳强度设计 11
3.3 剥皮辊的设计与计算 12
3.3.1剥皮辊生产能力的计算 12
3.3.2剥皮辊长度、直径的确定 12
3.3.3剥皮辊结构的设计 12
3.4 传动棍的设计与计算 13
3.5 平键的选型与计算 14
3.6 轴承的选型 15
3.7 各主要零部件强度的校核 17
3.7.1齿轮强度的校核与计算 17
3.7.2轴承强度的校核计算 18
3.8 其他零部件的设计 19
3.8.1机架的设计 19
3.8.2果穗料斗的设计 19
4 玉米去皮机的维护、使用、调整及保管 21
4.1 玉米剥皮机的维护 21
4.2 玉米剥皮机的使用和调整 21
4.3 机器的保管 21
5三维建模及仿真 22
5.1三维建模 22
5.2仿真 23
结论 25
参考文献 26
致谢 27
附录 28
温馨提示:
1、题目前面的备注【字母数字编号】为本站整理分类的编号,与课题内容无关,请选题时忽视;
2、若题目上备注三维,则表示文件里包含三维源文件,由于三维组成零件数量较多,为保证预览截图的简洁性,本站将三维文件夹进行了打包。三维及CAD预览截图,均为本站电脑打开软件进行截图的,保证能够打开,下载原件超高清,下载后解压即可;
3、本站所有资源如无特殊说明,都需要本地电脑安装Office2007。图纸软件为AutoCAD,PROE,UG,SolidWorks,CATIA等;
4、本站所有图文资料仅供用户学习参考,不作为任何商用或其他用途;
5、本站不保证下载资源的准确性、安全性和完整性, 不包修改,不支持退换,同时也不承担用户因使用这些下载资源对自己和他人造成任何形式的伤害或损失;
6、 下载文件中如有侵权或不适当内容,请与我们联系,我们立即纠正。