

作品包括:
Word版说明书1份,共27页,约11000字
CAD版本图纸,共15张
摘要
钢卷转运装置被广泛运用于各大钢铁厂的钢卷运输中。在钢铁行业迅猛发展的今天,高效率的钢卷转运装置显得尤为重要。故设计出完善的钢卷转运装置有其实际意义。
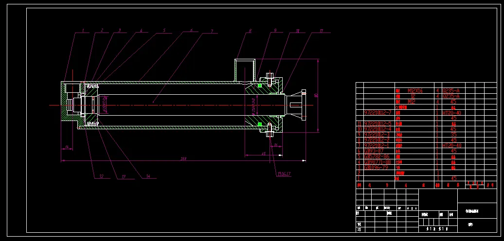
钢卷主要结构包括举升机构和旋转机构。本设计主要负责举升机构的设计,完成举升和旋转动作。首先,确定举升机构的主要方案由于其传动比过大,且负载较大,故采用为液压系统。然后,本设计根据实际需要选择了合理的液压传动系统,并根据所给技术参数计算出液压系统的液压缸等主要零件的尺寸,进行校核。最后,用CAD绘制出各零件图,经过分析合理后,绘制装配图草图,并编写计算说明书草稿。
经过以上的步骤,本设计顺利完成,绘制出了所需零件图、装配图,编写出了较为详细的说明书。
本设计中的举升机构采用液压系统,避免了过于复杂的机械过程,使其保养和维修变得更为简单,操作也更便利。
关键字:钢卷转运装置 ; 举升机构; 液压系统
目 录
1 绪论1
1.1 课题背景1
1.2 钢卷转运装置的基本介绍1
1.3 国内钢卷转运装置现状2
2 钢卷转运装置的总体设计2
2.1 设计参数2
2.2 钢卷转运装置总体机构设计2
2.3 主要设计内容3
3 钢卷转运装置举升机构设计3
3.1 举升机构主要工作原理4
3.2 液压系统主要结构设计计算与校核4
3.2.1 液压系统工况分析4
3.2.2 选定液压系统总体结构4
3.2.3 液压缸尺寸的确定及校核5
3.2.4 液压泵及电动机的选择6
3.2.5 相关液压元件的选择7
3.2.6 举升机构液压系统结构确定7
3.2.7 确定管道尺寸8
3.2.8 液压油箱的容积确定8
3.3 中心立柱尺寸设计计算与校核8
3.4 载体小车主要结构设计计算与校核10
3.4.1 载体小车总体结构设计10
3.4.2 旋转套筒及机械爪尺寸设计计算与校核10
3.4.3 载体小车液压系统设计11
4 钢卷转运装置旋转机构设计14
4.1 旋转机构主要工作原理14
4.2 液压无级变速器的设计14
4.2.1 液压无级变速器工作原理14
4.2.2 液压无级变速器元件选择15
4.3 一级齿轮减速器的设计16
4.3.1 齿轮的设计及校核16
4.3.2 轴的设计及校核19
4.4 载体小车结构设计21
5 总结22
6 参考文献23
7 致谢24
温馨提示:
1、题目前面的备注【字母数字编号】为本站整理分类的编号,与课题内容无关,请选题时忽视;
2、若题目上备注三维,则表示文件里包含三维源文件,由于三维组成零件数量较多,为保证预览截图的简洁性,本站将三维文件夹进行了打包。三维及CAD预览截图,均为本站电脑打开软件进行截图的,保证能够打开,下载原件超高清,下载后解压即可;
3、本站所有资源如无特殊说明,都需要本地电脑安装Office2007。图纸软件为AutoCAD,PROE,UG,SolidWorks,CATIA等;
4、本站所有图文资料仅供用户学习参考,不作为任何商用或其他用途;
5、本站不保证下载资源的准确性、安全性和完整性, 不包修改,不支持退换,同时也不承担用户因使用这些下载资源对自己和他人造成任何形式的伤害或损失;
6、 下载文件中如有侵权或不适当内容,请与我们联系,我们立即纠正。