

作品包括:
Word版说明书1份,共41页,约22000字
CAD版本图纸,共5张
摘 要
随着社会的进步,制造业的发展越来越迅速,数控技术和数控装备是制造工业现代化的重要基础。这个基础是否牢固直接影响到一个国家的经济发展和综合国力,关系到一个国家的战略地位。因此,世界上各工业发达国家均采取重大措施来发展自己的数控技术及其产业。在我国,数控技术与装备的发展亦得到了高度重视,近年来取得了相当大的进步。数控机床发展很快,作为数控机床的重要部分,主轴箱的设计更新也越来越快。
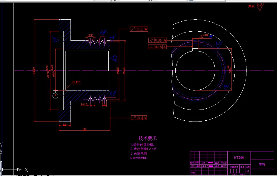
我设计的是YK2050数控磨齿机主轴和主轴箱箱体加工工艺以及数控编程,其中涉及了主轴和箱体加工中刀具、量具、毛坯、定位基准等的选择。设计图为两张零号图纸,一张一号图纸,两张二号图纸。
目 录
摘要:•••••••••••••••••••••••••••••••••••••••••••••••••••••••••••1
Abstract•••••••••••••••••••••••••••••••••••••••••••••••••••••••2
第一章 绪论••••••••••••••••••••••••••••••••••••••••••••••••••••5
第二章 数控加工概念••••••••••••••••••••••••••••••••••••••••••6
2.1高速、高效、高精度、高可靠性•••••••••••••••••••••••••••8
第三章 数控车床•••••••••••••••••••••••••••••••••••••••••••••••9
3.1数控车床的组成••••••••••••••••••••••••••••••••••••••••9
3.2数控车床的特点 •••••••••••••••••••••••••••••••••••••11
3.3数控车床的适用范围及工作原理••••••••••••••••••••••••12
第四章 数控加工工艺分析•••••••••••••••••••••••••••••••••••••15
4.1 毛坯的选择•••••••••••••••••••••••••••••••••••••••••••18
4.2确定数控加工内容•••••••••••••••••••••••••••••••••••••18
4.3数控加工零件的工艺性分析••••••••••••••••••••••••••••18
4.4定位基准的选择•••••••••••••••••••••••••••••••••••••••19
4.4.1精基准的选择••••••••••••••••••••••••••••••••••••19
4.4.2粗基准的选择••••••••••••••••••••••••••••••••••••19
4.5加工方法的选择•••••••••••••••••••••••••••••••••••••••20
4.6刀具的选择••••••••••••••••••••••••••••••••••••••••••••21
4.6.1数控车刀的类型与刀片选择•••••••••••••••••••••••21
4.7夹具的选择•••••••••••••••••••••••••••••••••••••••••••21
4.8量具的选择••••••••••••••••••••••••••••••••••••••••••••22
4.9数控加工工艺路线设计••••••••••••••••••••••••••••••••22
4.9.1外圆表面的加工方法的选择••••••••••••••••••••••22
第五章 工序的划分••••••••••••••••••••••••••••••••••••••••••••24
5.1加工顺序的安排•••••••••••••••••••••••••••••••••••••••25
5.1.1切削加工工序安排••••••••••••••••••••••••••••••••25
5.1.2热处理工序安排•••••••••••••••••••••••••••••••••••25
5.1.3辅助工序安排•••••••••••••••••••••••••••••••••••••26
5.2数控加工工序设计••••••••••••••••••••••••••••••••••••26
5.3走刀路线和工步顺序的确定••••••••••••••••••••••••••••26
5.4主轴机械加工工艺规程卡片••••••••••••••••••••••••••••27
5.5主轴的工艺分析•••••••••••••••••••••••••••••••••••••••27
5.6箱体机械加工工艺规程卡片••••••••••••••••••••••••••••27
5.7箱体的工艺分析•••••••••••••••••••••••••••••••••••••••28
第六章 数控加工程序••••••••••••••••••••••••••••••••••••••••••29
6.1主轴数控加工程序•••••••••••••••••••••••••••••••••••••29
6.2箱体数控加工部分的程序••••••••••••••••••••••••••••••31
6.2.1安装面的数控加工••••••••••••••••••••••••••••••••31
6.2.2主轴孔的数控加工程序••••••••••••••••••••••••••••33
第七章 毕业设计总结••••••••••••••••••••••••••••••••••••••••••37
7.1成本分析••••••••••••••••••••••••••••••••••••••••••••••37 7.2经济效益分析•••••••••••••••••••••••••••••••••••••••••37
7.3前景预测•••••••••••••••••••••••••••••••••••••••••••••37
结论••••••••••••••••••••••••••••••••••••••••••••••••••••••••••38
参考文献••••••••••••••••••••••••••••••••••••••••••••••••••••••39
致谢•••••••••••••••••••••••••••••••••••••••••••••••••••••••••••40
温馨提示:
1、题目前面的备注【字母数字编号】为本站整理分类的编号,与课题内容无关,请选题时忽视;
2、若题目上备注三维,则表示文件里包含三维源文件,由于三维组成零件数量较多,为保证预览截图的简洁性,本站将三维文件夹进行了打包。三维及CAD预览截图,均为本站电脑打开软件进行截图的,保证能够打开,下载原件超高清,下载后解压即可;
3、本站所有资源如无特殊说明,都需要本地电脑安装Office2007。图纸软件为AutoCAD,PROE,UG,SolidWorks,CATIA等;
4、本站所有图文资料仅供用户学习参考,不作为任何商用或其他用途;
5、本站不保证下载资源的准确性、安全性和完整性, 不包修改,不支持退换,同时也不承担用户因使用这些下载资源对自己和他人造成任何形式的伤害或损失;
6、 下载文件中如有侵权或不适当内容,请与我们联系,我们立即纠正。