

作品包括:
Word版说明书1份,共70页,约29000字
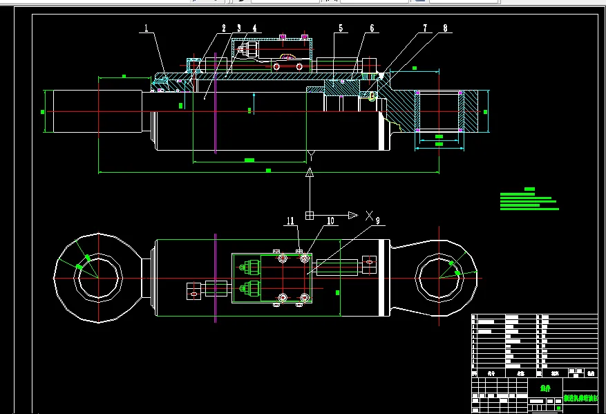
CAD版本图纸,共6张
摘要
悬臂式掘进机是集截割、行走、装载及运输于一体的巷道掘进的综合化机组,是井下巷道掘进的主要产品。悬臂式掘进机液压系统作为掘进机控制系统中的核心技术之一,其控制性能的优劣直接决定了掘进机整体性能的优越与否。因此,对悬臂式掘进机液压系统的研究对推动我国掘进机的发展具有重要的意义。
论文通过对EBZ260型悬臂式掘进机液压系统进行分析与设计,简单对掘进机的工况进行了分析并对各个执行机构的参数进行了计算和液压缸简单设计并且对马达进行了选型,针对恒功率控制、负载敏感、压力补偿控制原理进行分析研究,并对其液压回路进行优化设计,通过对工况分析所得参数对其各部分执行元件的参数进行合理的计算,经过各个厂家液压元件的优缺点对比,合理的完成液压系统所需的主要液压元件的选型。并对截割升降回路进行简单仿真分析,最终设计出一套带负载敏感和压力补偿的掘进机液压系统。此外,通过对EBZ260型悬臂式掘进机液压系统进行分析与设计,明确液压系统在整体控制中的作用以及相互联系,为整体控制系统设计提供依据。
关键词:掘进机;液压系统;工况分析;选型;
目录
前言 1
1绪论 2
1.1悬臂式掘进机概述 2
1.1.1悬臂式掘进机的分类、组成及工作原理 2
1.1.2悬臂式掘进机的国内外发展动态及研究现状[8] [19] 5
1.2悬臂式掘进机液压系统研究现状 7
1.3本课题研究的意义及主要内容 9
1.3.1本课题研究的意义 9
1.3.2本课题研究的主要内容 10
2掘进机工作过程介绍及回路设计 11
2.1悬臂式掘进机的工作过程介绍 11
2.2液压系统额定压力的确定 12
2.3液压系统的液压控制分析 12
2.3.1负载敏感控制[11] 12
2.3.2压力补偿[15] 14
2.3.3恒功率控制 15
2.4液压系统基本回路设计 16
2.4.1行走部回路设计 16
2.4.2截割部回路设计 17
2.4.3铲板部回路设计 18
2.4.4后支撑部回路设计 19
2.4.5第一运输机回路设计 20
2.4.6多负载回路设计 20
2.5拟订液压系统原理图 21
3EBZ260型掘进机工况分析及液压系统主要技术参数计算 22
3.1行走部的参数计算 22
3.3.1单侧履带行走机构装置所需最小功率 22
3.3.2行走部最大牵引力计算 23
3.3.3单侧履带行走机构输出扭矩与输出转速的确定 24
3.3.4行走马达参数的确定 25
3.2截割部的参数计算 25
3.2.1截割部升降时截割头上产生的截割切向力 25
3.2.2截割部升降油缸伸出力的计算 27
3.3.3截割部升降油缸的设计 28
3.2.4截割部回转时截割头上产生的截割切向力 32
3.3后支撑部的参数计算 33
3.3.1后支撑油缸的输出力计算 33
3.3.2后支撑部液压缸的设计 35
3.4铲板部的参数计算 39
3.4.1铲板部星轮的参数计算 39
3.4.2铲板油缸的输出力计算 40
3.5第一运输机的参数计算 41
3.5.1第一运输机马达的参数计算 42
3.6工作元件的主要参数 42
3.6.1各液压马达的主要计算参数 42
3.6.2各液压缸的主要计算参数 43
4液压系统的元件选型 44
4.1液压泵的选型 44
4.2泵站电机的选型 46
4.3液压马达的选型 47
4.4液压控制阀的选型 49
4.5过滤器的选择 51
4.6管件的选定 51
4.7管路的布置 52
4.8液压油的选择及邮箱的初步估算 52
5EBZ260掘进机截割升降回路液压系统的仿真 54
5.1 截割升降回路液压系统仿真模型的建立及仿真 54
5.1.1 变量泵仿真模型的建立 54
5.1.2 压力补偿阀仿真模型的建立 58
5.1.3 截割升降回路系统模型的建立 58
5.2 截割升降回路系统的仿真研究 60
5.2.1 系统输出特性研究 60
5.2.2负载变化对泵出口压力的影响 60
6技术经济性分析 62
7总结 63
致谢 64
参考文献 65
附录A 译文 66
掘进机在采矿和掘进工业的应用 66
附录B 外文文献 75
温馨提示:
1、题目前面的备注【字母数字编号】为本站整理分类的编号,与课题内容无关,请选题时忽视;
2、若题目上备注三维,则表示文件里包含三维源文件,由于三维组成零件数量较多,为保证预览截图的简洁性,本站将三维文件夹进行了打包。三维及CAD预览截图,均为本站电脑打开软件进行截图的,保证能够打开,下载原件超高清,下载后解压即可;
3、本站所有资源如无特殊说明,都需要本地电脑安装Office2007。图纸软件为AutoCAD,PROE,UG,SolidWorks,CATIA等;
4、本站所有图文资料仅供用户学习参考,不作为任何商用或其他用途;
5、本站不保证下载资源的准确性、安全性和完整性, 不包修改,不支持退换,同时也不承担用户因使用这些下载资源对自己和他人造成任何形式的伤害或损失;
6、 下载文件中如有侵权或不适当内容,请与我们联系,我们立即纠正。