

作品包括:
Word版设计说明书1份
CAD版本图纸,共22张
SW三维图一套
摘要
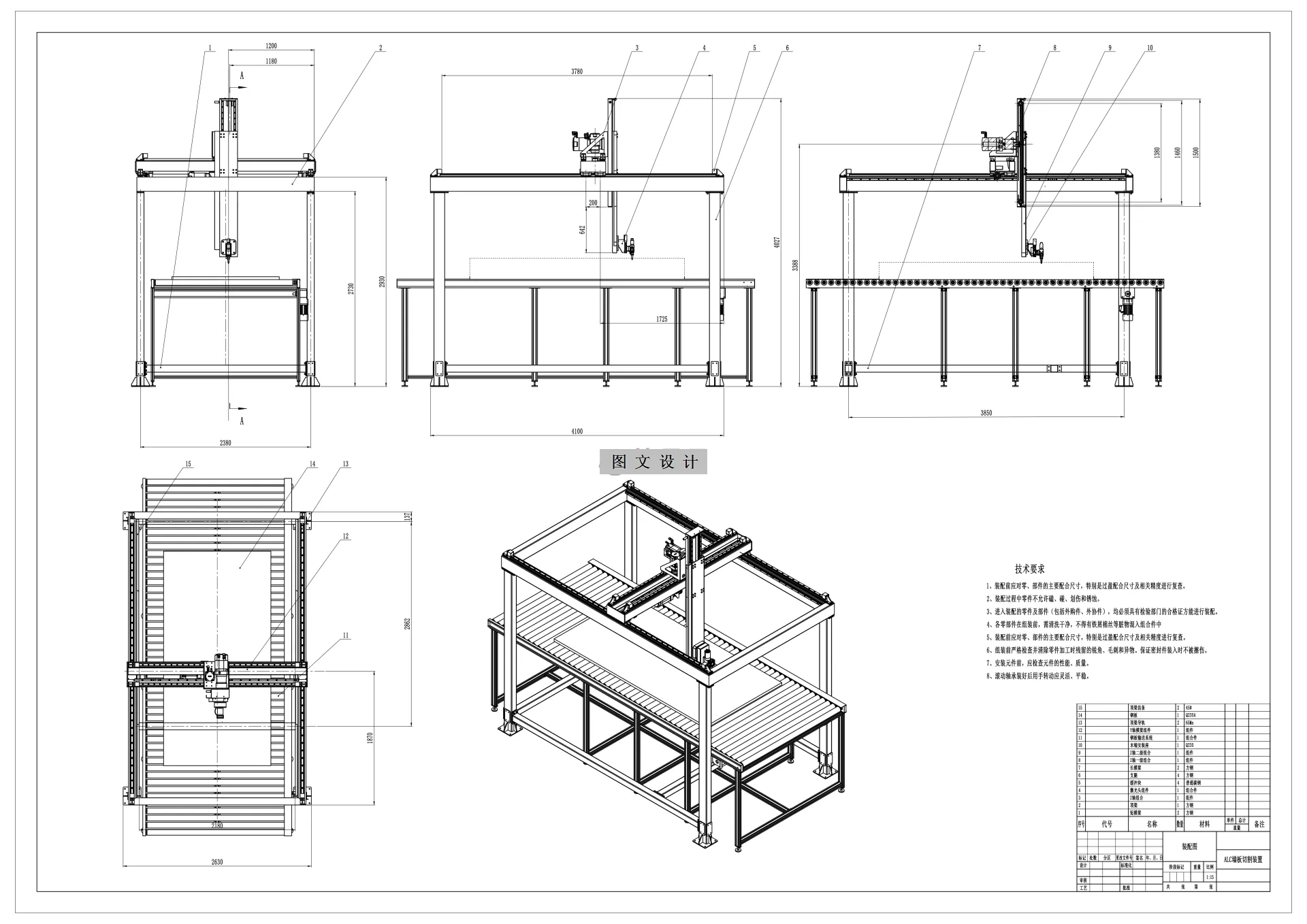
在当今的大型制造业中,为了提高生产效率,保证产品质量,工业装置的技术水平和应用水平在一定程度上反映了一个国家的工业自动化水平,工业装置满足行业内的重型及轻量型多种搭建配置组合使用,是现代自动控制领域的尖端技术,是机械、机械、电、液压化技术、自动控制技术、传感器技术、单芯片微机技术和计算机技术,它已经成为现代机械制造生产系统的重要组成部分,其优势在于通过编程可以完成各种期望任务。 通过了解切割机的应用情况,对ALC墙板切割机的设计提出了具体的要求,根据三维线性运动原则制定了墙板切割机各部分的设计原则,拟定系统方案:主体的详细机械结构,即龙门传动X、Y、Z方向的具体机械结构,包括传动结构、支撑结构,驱动结构及相关必要附件,实现末端激光切割头的运动方式。对现有的机械结构提出了新的改善,将目前的新技术应用到本课题中,使墙板切割装置更适合现在的工业作业环境。 本文设计了ALC墙板切割机的机械部分,主要包括龙门架、传动系统等方面,通过对ALC墙板切割机的龙门式移动机构的设计,选用电动机、传动装置的设计,并利用三维软件Solidworks完成三维模型建立,然后对关键零部件的校核,在参数优化的基础上对其绘制二维Auto CAD图纸,本文对于ALC墙板切割机的设计具有一定的参考价值。
温馨提示:
1、题目前面的备注【字母数字编号】为本站整理分类的编号,与课题内容无关,请选题时忽视;
2、若题目上备注三维,则表示文件里包含三维源文件,由于三维组成零件数量较多,为保证预览截图的简洁性,本站将三维文件夹进行了打包。三维及CAD预览截图,均为本站电脑打开软件进行截图的,保证能够打开,下载原件超高清,下载后解压即可;
3、本站所有资源如无特殊说明,都需要本地电脑安装Office2007。图纸软件为AutoCAD,PROE,UG,SolidWorks,CATIA等;
4、本站所有图文资料仅供用户学习参考,不作为任何商用或其他用途;
5、本站不保证下载资源的准确性、安全性和完整性, 不包修改,不支持退换,同时也不承担用户因使用这些下载资源对自己和他人造成任何形式的伤害或损失;
6、 下载文件中如有侵权或不适当内容,请与我们联系,我们立即纠正。