

作品包括:
Word版设计说明书1份
CAD版本图纸,共7张
SW三维图一套
摘要
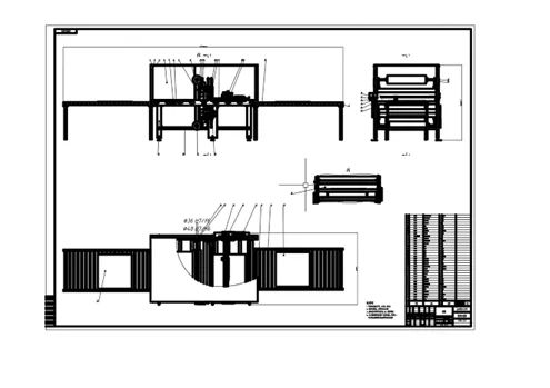
整机由放卷机构、覆膜机构、间距调整机构、加热机构、收卷机构及电气系统组成,放卷及收卷机构均采用恒张力实现膜材的平缓输送;覆膜机构采用上下辊热压机构实现膜材与彩钢板的贴合;间距调整机构采用步进电机带动滚珠丝杠,并与PID控制算法实现准确调整;电气控制系统选用PLC与人机界面,实现控制参数设定与自动控制;部分关键零部件传动系统的各传动部件同步带、齿轮以及滚珠丝杠的计算与校核,最终确定了设备稳定可靠的传动机构;滚珠丝杠与滑动丝杠性能比较,分析了滚珠丝杠控制的精度及效率;切割装置的齿轮齿条传动及双导轨设置,为定长切割提供保障。
本文件为机械本科,包含三维二维及论文,三维为solidworks格式,二维为CAD,论文有1.8w字数。
温馨提示:
1、题目前面的备注【字母数字编号】为本站整理分类的编号,与课题内容无关,请选题时忽视;
2、若题目上备注三维,则表示文件里包含三维源文件,由于三维组成零件数量较多,为保证预览截图的简洁性,本站将三维文件夹进行了打包。三维及CAD预览截图,均为本站电脑打开软件进行截图的,保证能够打开,下载原件超高清,下载后解压即可;
3、本站所有资源如无特殊说明,都需要本地电脑安装Office2007。图纸软件为AutoCAD,PROE,UG,SolidWorks,CATIA等;
4、本站所有图文资料仅供用户学习参考,不作为任何商用或其他用途;
5、本站不保证下载资源的准确性、安全性和完整性, 不包修改,不支持退换,同时也不承担用户因使用这些下载资源对自己和他人造成任何形式的伤害或损失;
6、 下载文件中如有侵权或不适当内容,请与我们联系,我们立即纠正。